Let's take an overview
Ad reference : 1916VHUDEM
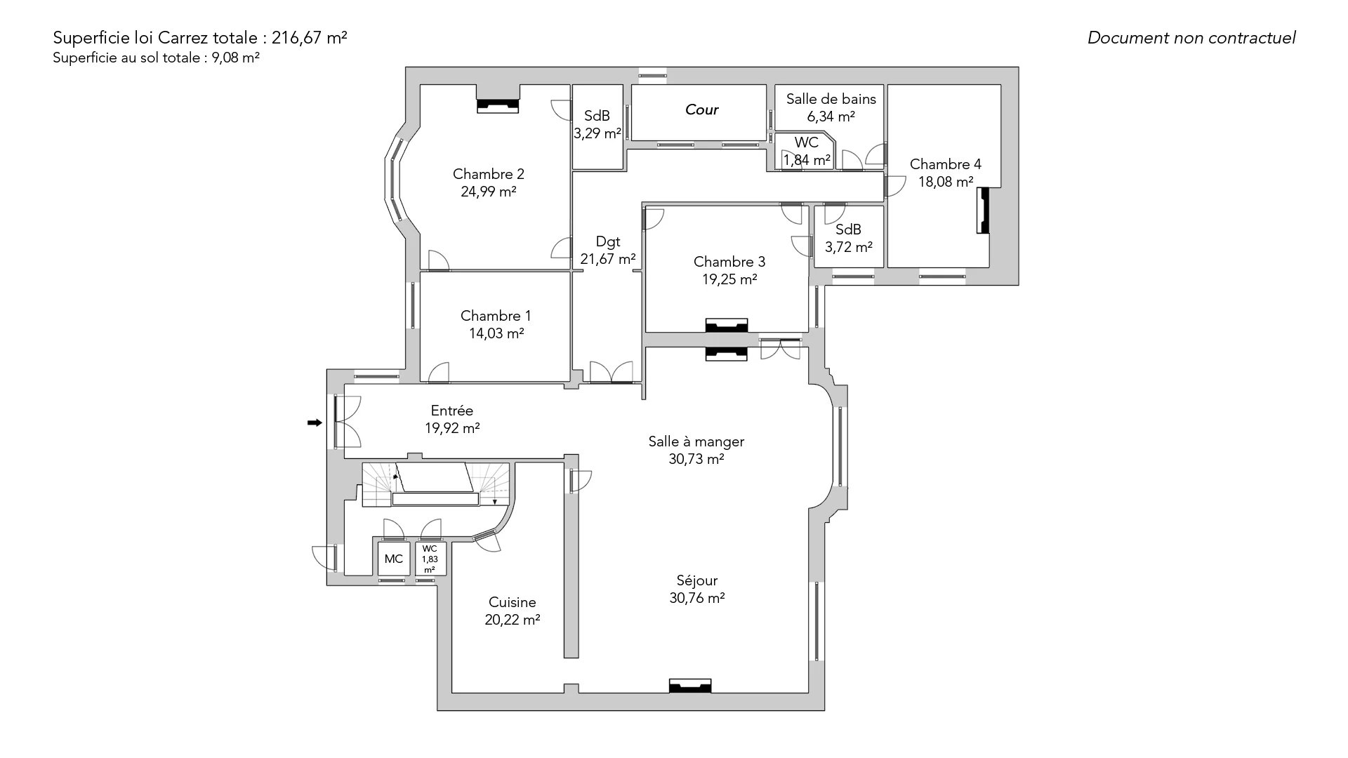
Avenue Victor Hugo, a stone's throw from the Lycée Janson de Sailly. On the third floor of a stone building with magnificent communal areas, accessible by lift, this 216.67sqm Carrez apartment has been tastefully renovated in a contemporary style, preserving its charming old character and offering exceptional volumes (3.47m high ceilings).
In a peaceful location, it comprises a bright entrance hall, an elegant 61sqm double reception room offering unobstructed views of the garden, a large fitted kitchen with dining area, three beautiful bedrooms including a master suite with shower room and huge dressing room (or fourth bedroom), a laundry room, a shower room and two separate toilets.
A huge double cellar completes this wonderfully located, high-quality property.
Live-in caretaker.
Maid's room possible.
Janson de Sailly school catchment area.
You are sure to fall in love with this beautifully preserved property with its ideal layout.
- Habitable : 2 332,21 Sq Ft
- 6 rooms
- 4 bedrooms
- 2 shower rooms
- Floor 3/6
- Fireplace
- Orientation South East, North West
- Excellent condition
What seduced us
- Highly sought-after address
- Exceptional services
- Guardian
- Luminous
- Calm
- Elevator
- Cellar
- Open view
We say more
Regulations & financial information
Information on the risks to which this property is exposed is available on the Géorisques website. : www.georisques.gouv.fr
| Diagnostics |
|---|
| Financial elements |
|---|
Property tax : 4 217,00 € /an
Interior & exterior details
| Room | Surface | Detail |
|---|---|---|
| 1x Bathroom | 19.81 Sq Ft | |
| 1x Bathroom | ||
| 1x Clearance | ||
| 1x Cellar | Floor : Basement | |
| 1x Entrance | 214.42 Sq Ft | Floor : 3rd |
| 1x Bedroom | 151.02 Sq Ft | Floor : 3rd |
| 1x Bathroom | 19.7 Sq Ft | Floor : 3rd |
| 1x Stay | 331.1 Sq Ft |
Floor : 3rd Exposure : North West Ceiling : 3.47m |
| 1x Dining room | 330.77 Sq Ft |
Floor : 3rd Exposure : North West Ceiling : 3.47m |
| 1x Kitchen | 217.65 Sq Ft |
Floor : 3rd Exposure : South East |
| 1x Bedroom | 268.99 Sq Ft | Floor : 3rd |
| 1x Bathroom | 35.41 Sq Ft | Floor : 3rd |
| 1x Bedroom | 207.21 Sq Ft | Floor : 3rd |
| 1x Bedroom | 194.61 Sq Ft | Floor : 3rd |
| 1x Bathroom | 68.24 Sq Ft | Floor : 3rd |
| 1x Laundry room | 40.04 Sq Ft | Floor : 3rd |
| 1x Clearance | 233.25 Sq Ft | Floor : 3rd |
Services
Building & Co-ownership
| Building |
|---|
-
Built in : 1906
-
Type : cut stone
-
Number of floors : 6
-
Quality level : Luxury
| Co-ownership |
|---|
Average annual amount of the share of current charges : 10 728 €
Procedure in progress : Non
Meet your agency
Simulator financing
Calculate the amount of the monthly payments on your home loan corresponding to the loan you wish to make.
FAI property price
3 650 000 €
€
per month
Do you have to sell to buy?
Our real estate consultants are at your disposal to estimate the value of your property. All our estimates are free of charge.
Estimate my propertyA living space to suit you
Junot takes you on a tour of the neighborhoods in which our agencies welcome you, and presents the specific features and good addresses.
Explore the neighborhoods










