Let's take an overview
Ad reference : M2900MONVIQ
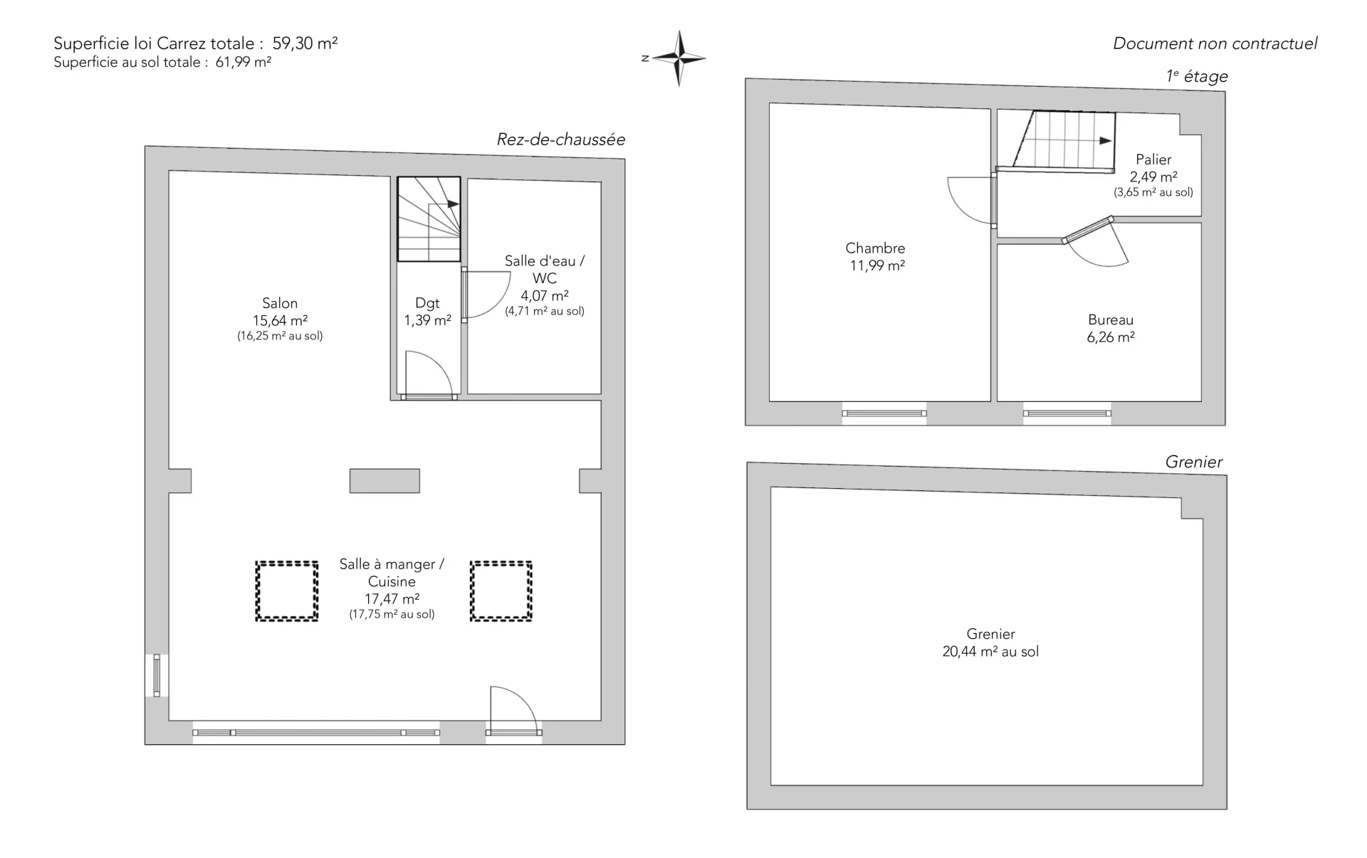
In the heart of a quiet, leafy cul-de-sac, fully renovated 59.30sqm house.
This charming house, totally renovated in 2025, comprises a double living room with open fitted kitchen opening onto a large bay window, and a shower room with toilet.
Upstairs, two bedrooms.
Two cellars and a large attic (suitable for conversion) complete this property.
Possibility of raising the house and creating a master suite on the third floor.
- Habitable : 638,30 Sq Ft
- 4 rooms
- 2 bedrooms
- 1 shower room
- Orientation West
- Nine
What seduced us
- Last floor
- Luminous
- Calm
- Cellar
We say more
Regulations & financial information
Information on the risks to which this property is exposed is available on the Géorisques website. : www.georisques.gouv.fr
| Diagnostics |
|---|
Final energy consumption : B - 92 kWh/m²/an.
Estimated annual energy costs for standard use: between 1 018,00 € and 1 378,00 € /year (including subscription).
Average energy price indexed to 01/01/2023.
| Financial elements |
|---|
Property tax : 521,00 € /an
Interior & exterior details
| Room | Surface | Detail |
|---|---|---|
| 1x Cellar | 21.1 Sq Ft | Floor : -1 |
| 1x Cellar | Floor : -1 | |
| 1x Living room/kitchen | 356.39 Sq Ft |
Floor : Ground floor Exposure : West Coating : Parquet Ceiling : 3m |
| 1x Shower room/toilet | 43.81 Sq Ft | Floor : Ground floor |
| 1x Clearance | 14.96 Sq Ft |
Floor : Ground floor Coating : Parquet |
| 1x Bedroom | 129.06 Sq Ft |
Floor : 1st Exposure : West Coating : Parquet |
| 1x Children's room | 67.38 Sq Ft |
Floor : 1st Exposure : West Coating : Parquet |
| 1x Clearance | 26.8 Sq Ft | Floor : 1st |
| 1x Attic | 220.01 Sq Ft | Floor : 2nd |
Services
Building & Co-ownership
| Building |
|---|
-
Built in : 2025
-
Number of floors : 1
| Co-ownership |
|---|
Procedure in progress : Non
Meet your agency
Simulator financing
Calculate the amount of the monthly payments on your home loan corresponding to the loan you wish to make.
FAI property price
875 000 €
€
per month
Do you have to sell to buy?
Our real estate consultants are at your disposal to estimate the value of your property. All our estimates are free of charge.
Estimate my propertyA living space to suit you
Junot takes you on a tour of the neighborhoods in which our agencies welcome you, and presents the specific features and good addresses.
Explore the neighborhoods














