Let's take an overview
Ad reference : 3477STGMIC
Rue Condorcet, in the heart of the Martyrs district.
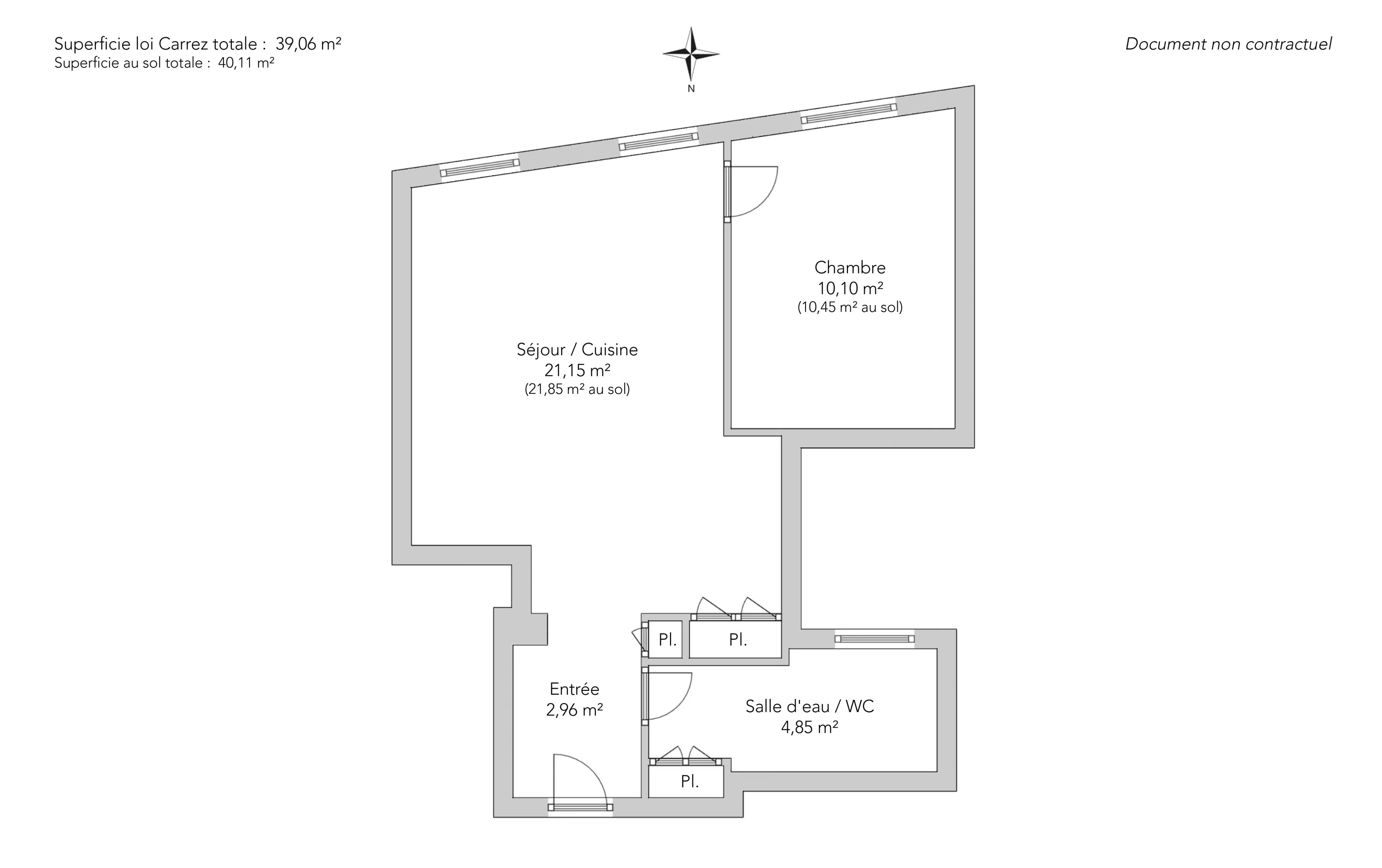
Beautiful two-room apartment of 39.06sqm loi Carrez, entirely renovated by an architect.
On the second floor of an old building, this flawless apartment comprises an entrance hall leading to a living room, an open-plan fitted kitchen, a bedroom with built-in dressing room and a shower room with toilet.
The apartment has been renovated to a very high standard.
A cellar completes this offer.
EXCLUSIVITY.
- Habitable : 420,44 Sq Ft Total : 431,74 Sq Ft
- 2 rooms
- 1 bedroom
- 1 shower room
- Floor 1/6
- Orientation South
- Excellent condition
What seduced us
- Highly sought-after address
- Luminous
- Cellar
We say more
Regulations & financial information
Information on the risks to which this property is exposed is available on the Géorisques website. : www.georisques.gouv.fr
| Diagnostics |
|---|
Final energy consumption : a - 206 kWh/m²/an.
Estimated annual energy costs for standard use: between 910,00 € and 1 270,00 € /year (including subscription).
Average energy price indexed to 01/01/2023.
| Financial elements |
|---|
Property tax : 894,00 € /an
Interior & exterior details
| Room | Surface | Detail |
|---|---|---|
| 1x Cellar | Floor : -1 | |
| 1x Entrance | 31.86 Sq Ft |
Floor : 1st Exposure : South |
| 1x Stay | 227.66 Sq Ft |
Floor : 1st Exposure : South |
| 1x Bedroom | 108.72 Sq Ft |
Floor : 1st Exposure : South |
| 1x Shower room/toilet | 52.2 Sq Ft | Floor : 1st |
Services
Building & Co-ownership
| Building |
|---|
-
Built in : 1867
-
Type : Rock
-
Number of floors : 6
-
Quality level : Normal
| Co-ownership |
|---|
57 housing lots
Average annual amount of the share of current charges : 1 872 €
Procedure in progress : Non
Meet your agency
Simulator financing
Calculate the amount of the monthly payments on your home loan corresponding to the loan you wish to make.
FAI property price
550 000 €
€
per month
Do you have to sell to buy?
Our real estate consultants are at your disposal to estimate the value of your property. All our estimates are free of charge.
Estimate my propertyA living space to suit you
Junot takes you on a tour of the neighborhoods in which our agencies welcome you, and presents the specific features and good addresses.
Explore the neighborhoods











