Let's take an overview
Ad reference : 3537BRECOU
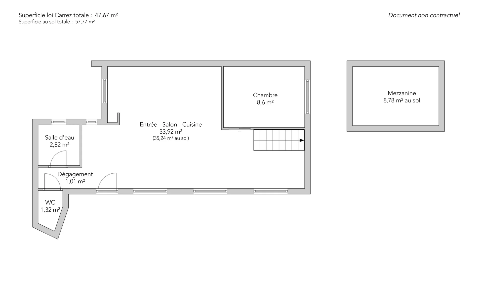
Ideally located in a quiet street in the Marais, nestled on the fourth and top floor of a charming, well-maintained building, a very attractive 47.67sqm loi Carrez apartment. Entirely renovated with care, it comprises a tastefully decorated living room, an open-plan fitted kitchen, a small second bedroom that could be used as an office, as well as a mezzanine offering additional sleeping space, a shower room and separate toilet. Flooded with light thanks to its numerous openings and windows, you'll be seduced by its very pleasant volumes (between 3m and 4m high ceilings), its calm and its sought-after location.
- Habitable : 559,72 Sq Ft Total : 621,83 Sq Ft
- 2 rooms
- 1 bedroom
- 1 shower room
- Orientation North, West
- Excellent condition
What seduced us
- Highly sought-after address
- Last floor
- Luminous
- Calm
- Crossing
- Cellar
We say more
Regulations & financial information
Information on the risks to which this property is exposed is available on the Géorisques website. : www.georisques.gouv.fr
| Diagnostics |
|---|
Final energy consumption : a - 141 kWh/m²/an.
Estimated annual energy costs for standard use: between 1 210,00 € and 1 690,00 € /year (including subscription).
Average energy price indexed to 01/01/2023.
| Financial elements |
|---|
Property tax : 613,00 € /an
Interior & exterior details
| Room | Surface | Detail |
|---|---|---|
| 1x Cellar |
Floor : Basement Coating : Clay |
|
| 1x Living room/kitchen | 365.11 Sq Ft |
Floor : 4th Coating : Parquet |
| 1x Bedroom | 92.57 Sq Ft |
Floor : 4th Coating : Parquet |
| 1x Mezzanine | 94.51 Sq Ft |
Floor : 4th Coating : Parquet |
| 1x Clearance | 10.87 Sq Ft |
Floor : 4th Coating : Parquet |
| 1x Bathroom | 30.35 Sq Ft |
Floor : 4th Coating : Floor tile |
| 1x Bathroom | 14.21 Sq Ft |
Floor : 4th Coating : Floor tile |
Services
Building & Co-ownership
| Co-ownership |
|---|
26 housing lots
Average annual amount of the share of current charges : 1 232 €
Procedure in progress : Non
Meet your agency
Simulator financing
Calculate the amount of the monthly payments on your home loan corresponding to the loan you wish to make.
FAI property price
715 000 €
€
per month
Do you have to sell to buy?
Our real estate consultants are at your disposal to estimate the value of your property. All our estimates are free of charge.
Estimate my propertyA living space to suit you
Junot takes you on a tour of the neighborhoods in which our agencies welcome you, and presents the specific features and good addresses.
Explore the neighborhoods











