Let's take an overview
Ad reference : 1175POIGAR
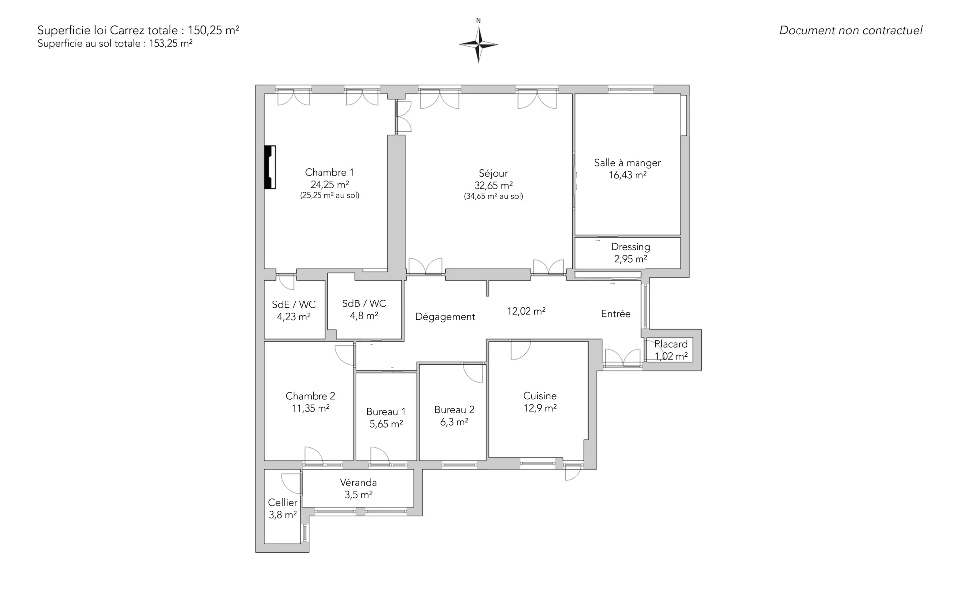
Located on a sought-after street in the 10th arrondissement, just steps from the Poissonnière metro and local shops, this apartment offers 150sqm within a well-maintained old building with elevator.
Crossing and bright, it features generous volumes and a layout offering various possibilities for renovation. It includes a large entrance, a double living room of over 51m², an independent kitchen with the possibility of opening onto the living room, four bedrooms (including two for children) with potential for a fifth, two shower rooms including one with a bathtub and shower, two separate toilets with the possibility of a third, a laundry room, and a veranda. A cellar completes the property. The building has a secure bike storage.
Quiet, bright, and adaptable, this apartment has great potential for optimization and represents a quality family property in a central and dynamic environment.
- Habitable : 1 617,28 Sq Ft Total : 1 649,57 Sq Ft
- 5 rooms
- 4 bedrooms
- 1 bathroom
- 1 shower room
- Floor 1/6
- Fireplace
- Orientation North, South
- To refresh
What seduced us
- Crossing
- Elevator
- Cellar
We say more
Regulations & financial information
Information on the risks to which this property is exposed is available on the Géorisques website. : www.georisques.gouv.fr
| Diagnostics |
|---|
Final energy consumption : a - 220 kWh/m²/an.
Climate class: D - estimated emissions 49 kg CO₂/m²·yr
Estimated annual energy costs for standard use: between 2 820,00 € and 3 820,00 € /year (including subscription).
Average energy price indexed to 01/01/2021.
| Financial elements |
|---|
Property tax : 2 358,00 € /an
Interior & exterior details
| Room | Surface | Detail |
|---|---|---|
| 1x Cellar | ||
| 1x Bedroom | 261.02 Sq Ft | Floor : 1st |
| 1x Bathroom/toilet | 51.67 Sq Ft | Floor : 1st |
| 1x Bathroom | 45.53 Sq Ft | Floor : 1st |
| 1x Dining room | 176.85 Sq Ft | Floor : 1st |
| 1x Kitchen | 138.85 Sq Ft | Floor : 1st |
| 1x Bedroom | 122.17 Sq Ft | Floor : 1st |
| 1x Bedroom | 60.82 Sq Ft | Floor : 1st |
| 1x Bedroom | 67.81 Sq Ft | Floor : 1st |
| 1x Veranda | 37.67 Sq Ft | Floor : 1st |
| 1x Laundry room | 40.9 Sq Ft | Floor : 1st |
| 1x Closet | 10.98 Sq Ft | Floor : 1st |
| 1x Entrance | 129.38 Sq Ft | Floor : 1st |
| 1x Clearance | 90.42 Sq Ft | Floor : 1st |
| 1x Dressing room | 31.75 Sq Ft | Floor : 1st |
| 1x Stay | 351.44 Sq Ft |
Floor : 1st Exposure : North West Coating : Parquet Ceiling : 3m |
Services
Building & Co-ownership
| Building |
|---|
-
Type : cut stone
-
Number of floors : 6
-
Quality level : Standing
| Co-ownership |
|---|
38 housing lots
Average annual amount of the share of current charges : 3 540 €
Procedure in progress : Non
Meet your agency
Simulator financing
Calculate the amount of the monthly payments on your home loan corresponding to the loan you wish to make.
FAI property price
1 495 000 €
€
per month
Do you have to sell to buy?
Our real estate consultants are at your disposal to estimate the value of your property. All our estimates are free of charge.
Estimate my propertyA living space to suit you
Junot takes you on a tour of the neighborhoods in which our agencies welcome you, and presents the specific features and good addresses.
Explore the neighborhoods














