Let's take an overview
Ad reference : 3486ABBLEV
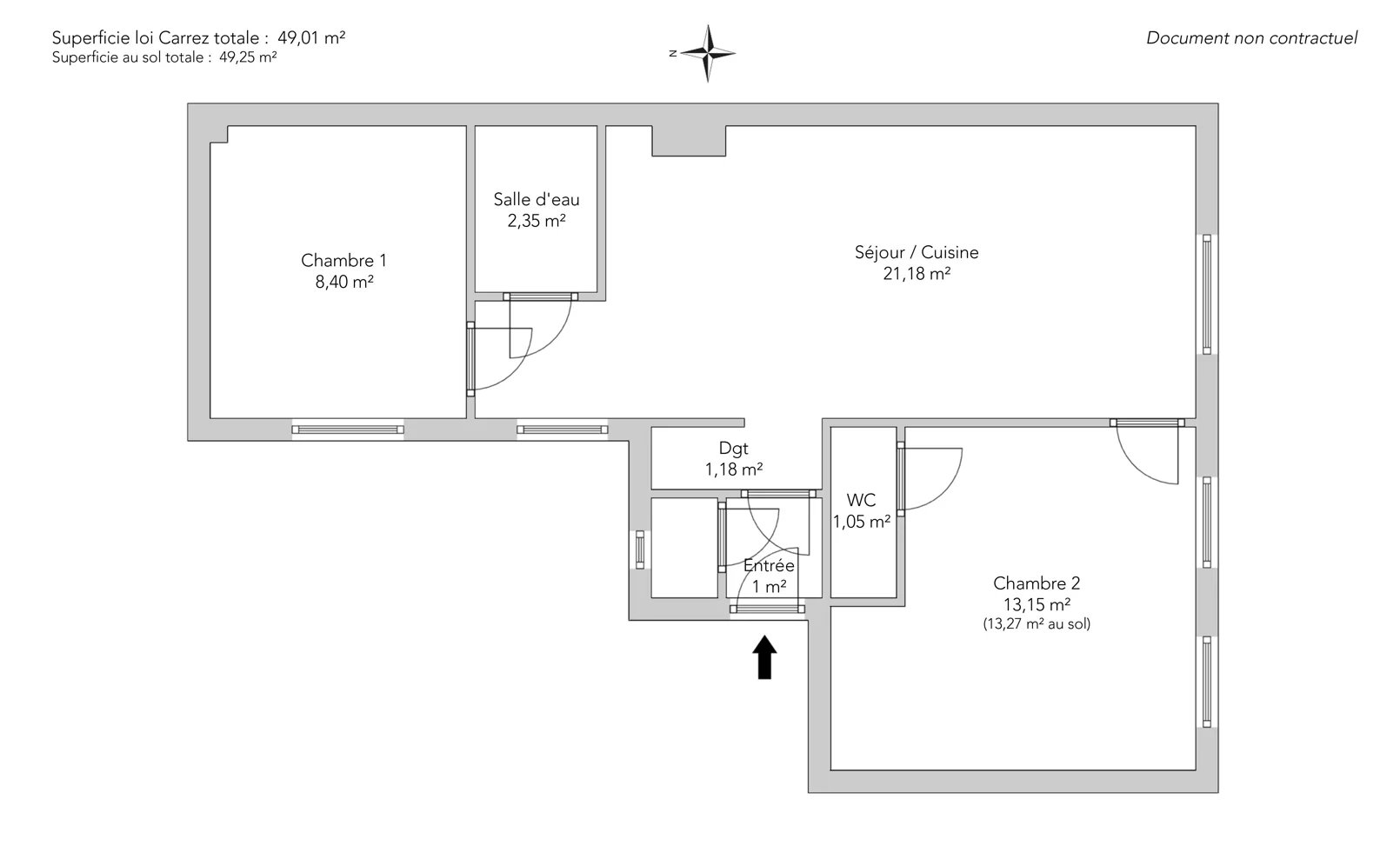
In a charming, private and secure cul-de-sac, out of sight and out of mind, we offer this beautiful 49.01sqm apartment located on the 3rd floor by staircase.
Perfectly optimized, it benefits from an ideal layout without any loss of space. It comprises an entrance hall, a pleasant living room with open kitchen, two bedrooms, a bathroom and separate toilet.
Calm and functionality are the hallmarks of this property, which also boasts plenty of built-in storage space. A harmonious place to live, ideal as a main residence or pied-à-terre.
- Habitable : 527,54 Sq Ft
- 3 rooms
- 2 bedrooms
- 1 shower room
- Floor 3/5
- Orientation South
- To refresh
What seduced us
- Highly sought-after address
- Calm
- Crossing
We say more
Regulations & financial information
Information on the risks to which this property is exposed is available on the Géorisques website. : www.georisques.gouv.fr
| Diagnostics |
|---|
Final energy consumption : B - 93 kWh/m²/an.
Estimated annual energy costs for standard use: between 706,00 € and 954,00 € /year (including subscription).
Average energy price indexed to 01/01/2021.
| Financial elements |
|---|
Property tax : 1 100,00 € /an
Interior & exterior details
| Room | Surface | Detail |
|---|---|---|
| 1x Entrance | 10.76 Sq Ft |
Floor : 2nd Coating : Parquet |
| 1x Clearance | 12.7 Sq Ft |
Floor : 2nd Coating : Parquet |
| 1x Living room/kitchen | 227.98 Sq Ft |
Floor : 2nd Coating : Parquet |
| 1x Bedroom | 90.42 Sq Ft |
Floor : 2nd Coating : Parquet |
| 1x Bathroom | 25.3 Sq Ft |
Floor : 2nd Coating : Floor tile |
| 1x Bedroom | 141.55 Sq Ft |
Floor : 2nd Coating : Parquet |
| 1x Bathroom | 11.3 Sq Ft |
Floor : 2nd Coating : Floor tile |
| 1x Cellar | 7.53 Sq Ft | Floor : 2nd |
Services
Building & Co-ownership
| Building |
|---|
-
Built in : 1860
-
Number of floors : 5
| Co-ownership |
|---|
21 housing lots
Average annual amount of the share of current charges : 1 440 €
Procedure in progress : Non
Meet your agency
Simulator financing
Calculate the amount of the monthly payments on your home loan corresponding to the loan you wish to make.
FAI property price
570 000 €
€
per month
Do you have to sell to buy?
Our real estate consultants are at your disposal to estimate the value of your property. All our estimates are free of charge.
Estimate my propertyA living space to suit you
Junot takes you on a tour of the neighborhoods in which our agencies welcome you, and presents the specific features and good addresses.
Explore the neighborhoods











