Faisons un tour d'horizon
Référence de l’annonce : 3486ABBLEV
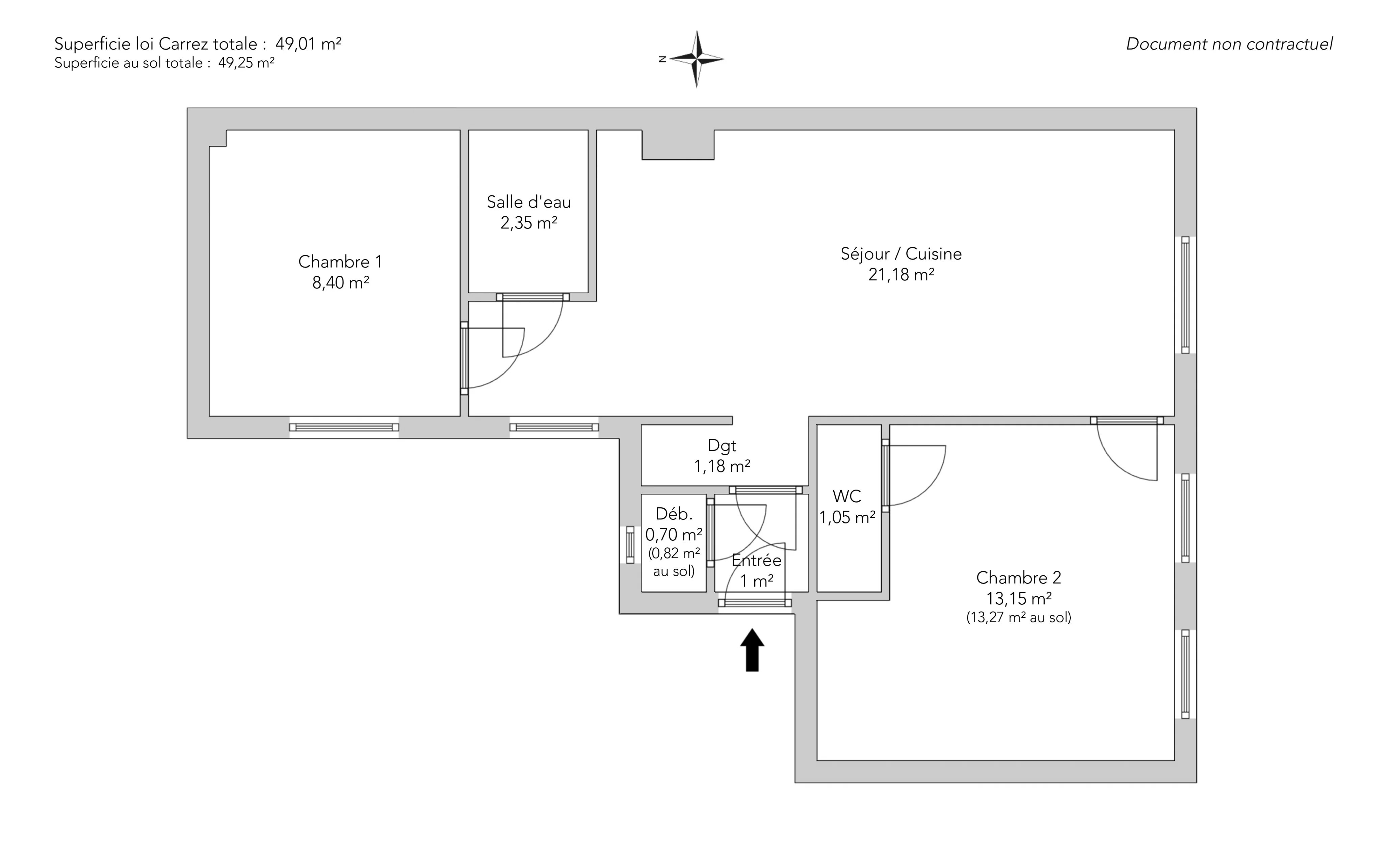
Au sein d’une charmante impasse privée et sécurisée, à l’abri des regards et de toute nuisance, nous vous proposons ce bel appartement de 49,01 m² loi Carrez situé au troisième étage par escalier.
Parfaitement optimisé, le plan idéal sans aucune perte de place comprend une entrée, un agréable séjour avec cuisine ouverte, deux chambres, une salle de bains ainsi que des toilettes séparées.
Calme et fonctionnalité caractérisent ce bien qui dispose également de nombreux rangements intégrés.
Un lieu de vie harmonieux, idéal en résidence principale comme en pied-à-terre.
- Habitable : 49,01 m²
- 3 pièces
- 2 chambres
- 1 salle de douche
- Étage 3/5
- Exposition Sud
- À rafraîchir
Ce qui nous séduit
- Adresse très recherchée
- Calme
- Traversant
On vous en dit plus
Réglementations & éléments financiers
Les informations sur les risques auxquels ce bien est exposé sont disponibles sur le site Géorisques : www.georisques.gouv.fr
| Diagnostics |
|---|
Consommation énergie finale : B - 93 kWh/m²/an.
Montant estimé des dépenses annuelles d’énergie pour un usage standard : entre 706,00 € et 954,00 € /an (abonnement compris).
Prix moyen des énergies indexées au 01/01/2021.
| Éléments financiers |
|---|
Taxe foncière : 1 100,00 € /an
Détails de l’intérieur & de l’extérieur
| Pièce | Surface | Détail |
|---|---|---|
| 1x Entrée | 1 m² |
Étage : 2ème Revêtement : Parquet |
| 1x Dégagement | 1.18 m² |
Étage : 2ème Revêtement : Parquet |
| 1x Séjour/cuisine | 21.18 m² |
Étage : 2ème Revêtement : Parquet |
| 1x Chambre | 8.4 m² |
Étage : 2ème Revêtement : Parquet |
| 1x Salle de douche | 2.35 m² |
Étage : 2ème Revêtement : Carrelage |
| 1x Chambre | 13.15 m² |
Étage : 2ème Revêtement : Parquet |
| 1x Toilettes | 1.05 m² |
Étage : 2ème Revêtement : Carrelage |
| 1x Cellier | 0.7 m² | Étage : 2ème |
Prestations
Bâtiment & Copropriété
| Bâtiment |
|---|
-
Construit en : 1860
-
Nombre d'étages : 5
| Copropriété |
|---|
21 lots d'habitation
Montant moyen annuel de la quote part de charges courantes : 1 440 €
Procédure en cours : Non
Rencontrez votre agence
Simulateur de financement
Calculez le montant des mensualités de votre prêt immobilier correspondant à l'emprunt que vous souhaitez effectuer.
Prix du bien HAI
570 000 €
€
par mois
Vous devez vendre pour acheter ?
Nos consultants immobiliers se tiennent à votre disposition pour réaliser une estimation de la valeur de votre bien. Toutes nos estimations sont offertes.
Je fais estimer mon bienUn lieu de vie à votre image
Junot vous fait visiter les quartiers dans lesquels nos agences vous accueillent, et vous présente les spécificités et bonnes adresses.
Parcourir les quartiers











