Let's take an overview
Ad reference : 5854JASJOU/3519BTL
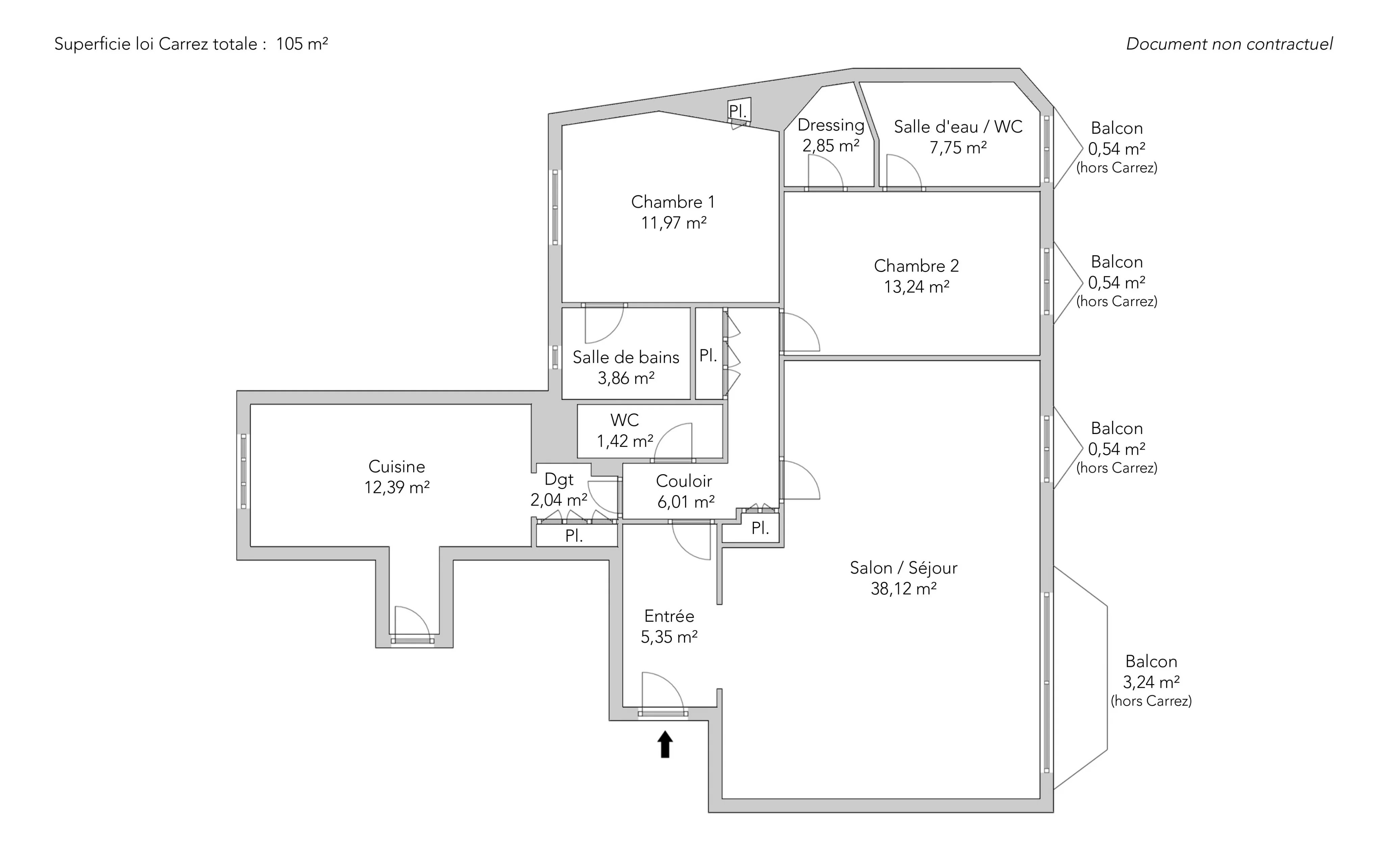
In the immediate vicinity of the Invalides, with a view of the dome, this 105sqm Carrez apartment is located on the third floor of a perfectly maintained recent building.
It opens onto an entrance hall leading to a vast 38sqm living room, bathed in light thanks to its southeast exposure and large bay windows. This reception area extends onto a pleasant 3sqm balcony offering an unobstructed, privileged view of the Invalides dome.
The layout is particularly well thought-out, distinguishing the reception areas from the night space. The latter includes two comfortable bedrooms, a bathroom and a shower room. The independent kitchen is fully fitted and equipped, and includes a dining area.
This apartment, in excellent condition, will seduce you with the quality of its features and its exceptional setting.
A cellar completes the property.
A large garage is also available.
- Habitable : 1 130,21 Sq Ft
- 4 rooms
- 2 bedrooms
- 1 bathroom
- 1 shower room
- Floor 3/7
- Orientation South East
- Excellent condition
What seduced us
- Balcony/Terrace
- Elevator
- Cellar
We say more
Regulations & financial information
Information on the risks to which this property is exposed is available on the Géorisques website. : www.georisques.gouv.fr
| Diagnostics |
|---|
Final energy consumption : a - 150 kWh/m²/an.
Estimated annual energy costs for standard use: between 2 760,00 € and 3 740,00 € /year (including subscription).
Average energy price indexed to 01/01/2021.
| Financial elements |
|---|
Interior & exterior details
| Room | Surface | Detail |
|---|---|---|
| 1x Cellar | Floor : Basement | |
| 1x Box | Floor : Basement | |
| 1x Entrance | 57.59 Sq Ft | Floor : 3rd |
| 1x Stay | 410.32 Sq Ft | Floor : 3rd |
| 1x Balcony | 34.88 Sq Ft | Floor : 3rd |
| 1x Kitchen | 133.36 Sq Ft | Floor : 3rd |
| 1x Bedroom | 142.51 Sq Ft | Floor : 3rd |
| 1x Bedroom | 128.84 Sq Ft | Floor : 3rd |
| 1x Dressing room | 30.68 Sq Ft | Floor : 3rd |
| 1x Shower room/toilet | 83.42 Sq Ft | Floor : 3rd |
| 1x Bathroom | 41.55 Sq Ft | Floor : 3rd |
| 1x Bathroom | 15.28 Sq Ft | Floor : 3rd |
| 1x Corridor | 64.69 Sq Ft | Floor : 3rd |
| 1x Clearance | 21.96 Sq Ft | Floor : 3rd |
Services
Building & Co-ownership
| Building |
|---|
-
Built in : 1865
-
Type : Rock
-
Number of floors : 7
-
Quality level : Standing
| Co-ownership |
|---|
40 housing lots
Average annual amount of the share of current charges : 1 992 €
Procedure in progress : Non
Meet your agency
Simulator financing
Calculate the amount of the monthly payments on your home loan corresponding to the loan you wish to make.
FAI property price
1 800 000 €
€
per month
Do you have to sell to buy?
Our real estate consultants are at your disposal to estimate the value of your property. All our estimates are free of charge.
Estimate my propertyA living space to suit you
Junot takes you on a tour of the neighborhoods in which our agencies welcome you, and presents the specific features and good addresses.
Explore the neighborhoods








