Faisons un tour d'horizon
Référence de l’annonce : 5809JASPAS
Idéalement situé rue du Docteur Blanche, au cœur d’un environnement résidentiel recherché du 16ᵉ arrondissement, à proximité immédiate des commerces, des transports et du parc du Ranelagh.
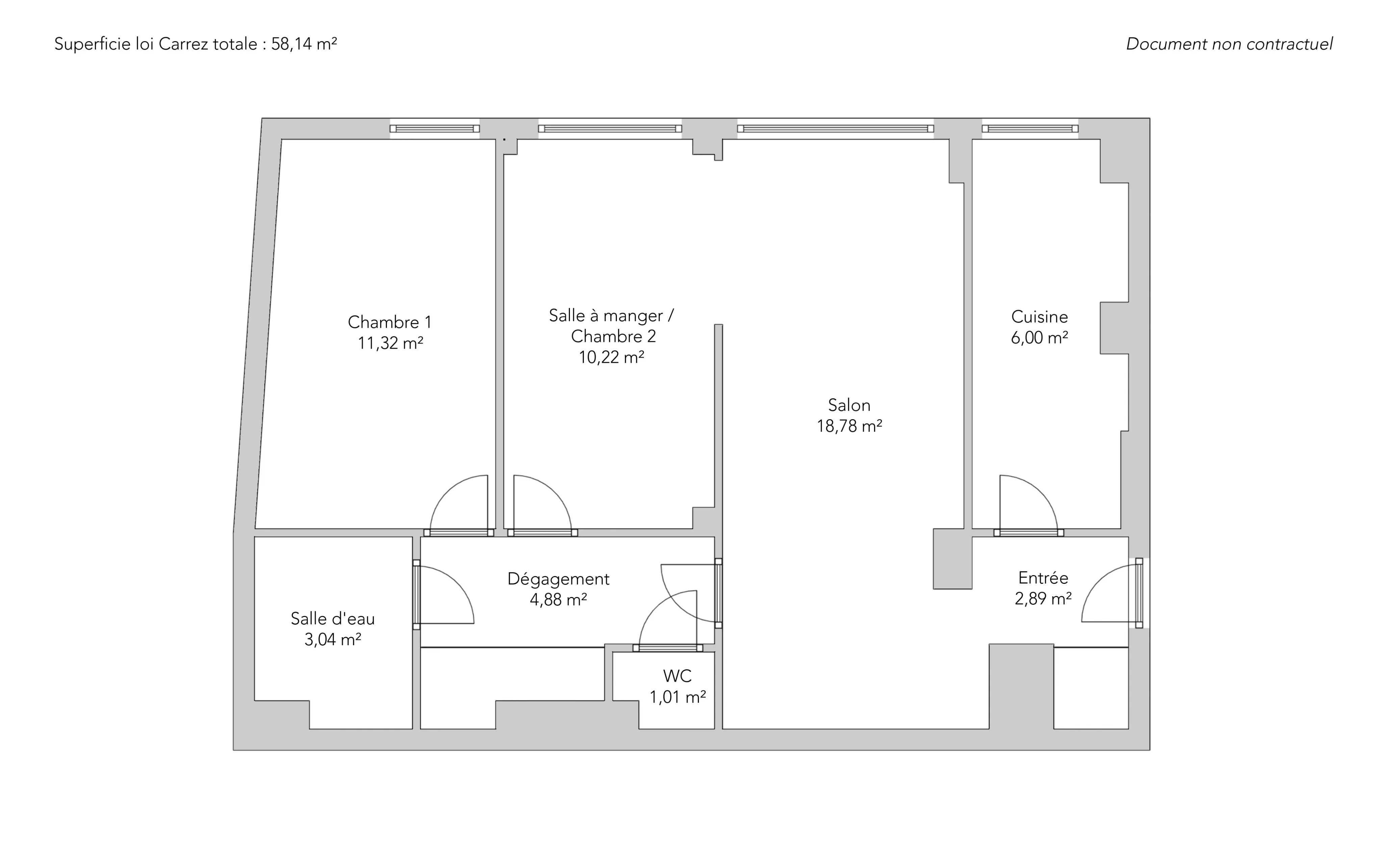
Au premier étage avec ascenseur d’un immeuble bien entretenu, cet appartement de 58,14m² loi Carrez a fait l’objet d’une rénovation récente.
Il comporte, côté réception, un double séjour doté de 4 fenêtres apportant luminosité, et une cuisine fermée fonctionnelle.
La partie nuit dessert une grande chambre avec une salle de douche et des toilettes séparées ainsi que de nombreux rangements.
Le plan modulable permet la création d'une deuxième chambre au niveau du double séjour.
Ce bien se distingue par ses belles proportions pour un deux pièces, sa rénovation soignée, sa proximité des commodités, ce qui en fait un pied-à-terre ou une résidence principale au confort absolu pour un primo accédant ou bien pour un investissement locatif.
Une cave complète cette offre.
EXCLUSIVITÉ
- Habitable : 58,14 m²
- 3 pièces
- 1 chambre
- 1 salle de bains
- Étage 1/8
- Exposition Ouest
- Bon état
Ce qui nous séduit
- Gardien
- Ascenseur
- Cave
On vous en dit plus
Réglementations & éléments financiers
Les informations sur les risques auxquels ce bien est exposé sont disponibles sur le site Géorisques : www.georisques.gouv.fr
| Diagnostics |
|---|
Consommation énergie finale : a - 208 kWh/m²/an.
Montant estimé des dépenses annuelles d’énergie pour un usage standard : entre 1 030,00 € et 1 410,00 € /an (abonnement compris).
Prix moyen des énergies indexées au 01/01/2021.
| Éléments financiers |
|---|
Détails de l’intérieur & de l’extérieur
| Pièce | Surface | Détail |
|---|---|---|
| 1x Cave | ||
| 1x Entrée | 2.89 m² | Étage : 1er |
| 1x Séjour | 18.78 m² | Étage : 1er |
| 1x Salle à manger | 10.22 m² | Étage : 1er |
| 1x Cuisine | 6 m² | Étage : 1er |
| 1x Chambre | 11.32 m² | Étage : 1er |
| 1x Salle de bains | 3.04 m² | Étage : 1er |
| 1x Dégagement | 4.88 m² | Étage : 1er |
| 1x Toilettes | 1.01 m² | Étage : 1er |
Prestations
Bâtiment & Copropriété
| Bâtiment |
|---|
-
Construit en : 1890
-
Nombre d'étages : 8
| Copropriété |
|---|
62 lots d'habitation
Montant moyen annuel de la quote part de charges courantes : 4 320 €
Procédure en cours : Non
Rencontrez votre agence
Simulateur de financement
Calculez le montant des mensualités de votre prêt immobilier correspondant à l'emprunt que vous souhaitez effectuer.
Prix du bien HAI
550 000 €
€
par mois
Vous devez vendre pour acheter ?
Nos consultants immobiliers se tiennent à votre disposition pour réaliser une estimation de la valeur de votre bien. Toutes nos estimations sont offertes.
Je fais estimer mon bienUn lieu de vie à votre image
Junot vous fait visiter les quartiers dans lesquels nos agences vous accueillent, et vous présente les spécificités et bonnes adresses.
Parcourir les quartiers














