• Vendu

Appartement
Paris 9e - NOUVELLE ATHÈNES / JEAN-BAPTISTE PIGALLE

Estimer mon bien

Faisons un tour d'horizon

Référence de l’annonce : OA3455STGRAT

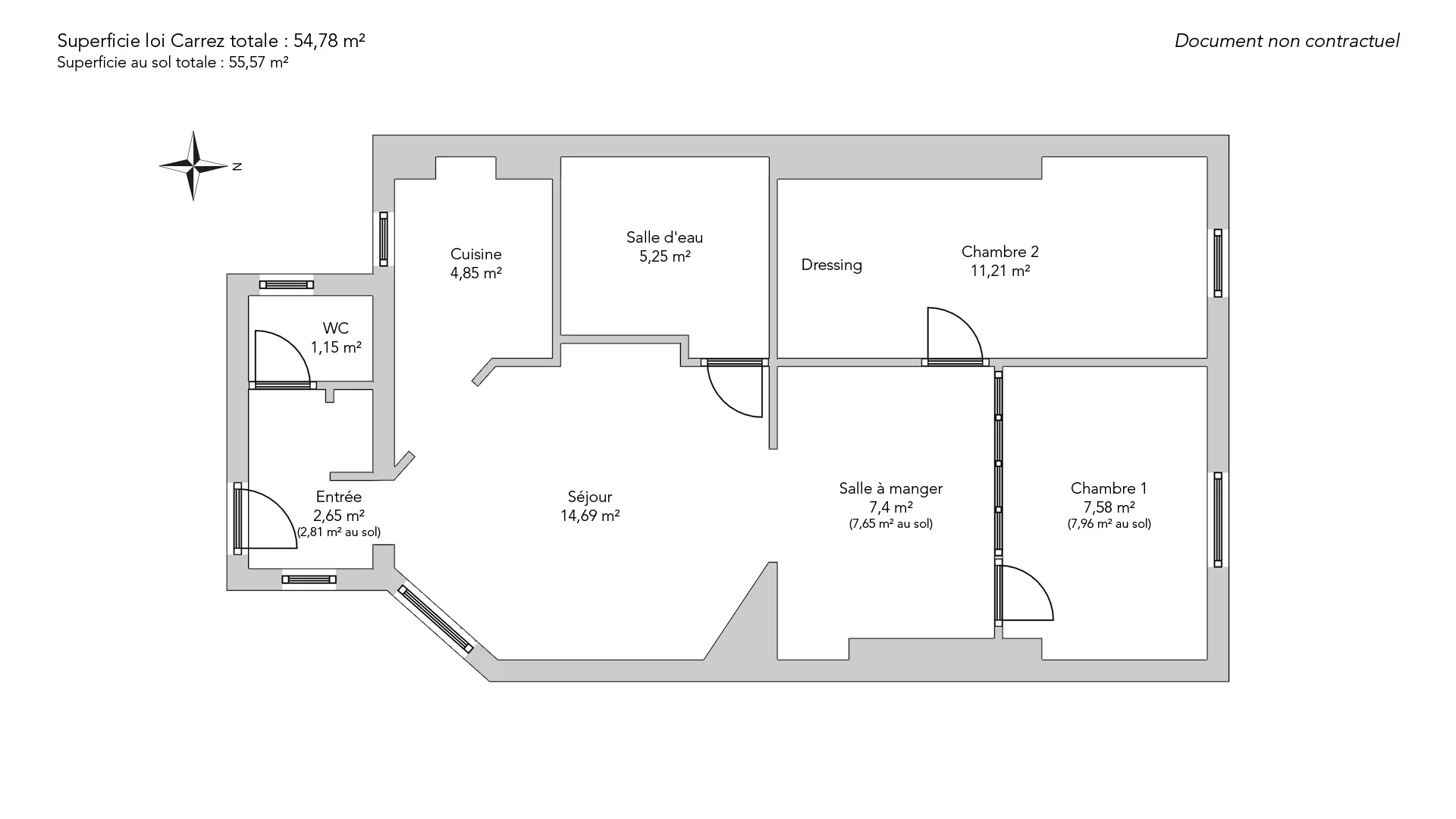
Idéalement situé au cœur du très prisé quartier Saint-Georges, au quatrième étage par escalier, bel appartement en parfait état de 54,78m² loi Carrez, 55,57m² au sol.

Le plan sans perte de place comprend une entrée, un beau séjour avec cuisine ouverte exposé sud-est, une salle à manger, deux chambres, une salle de douche et des toilettes séparées.

Charme de l’ancien conservé. Calme absolu. Plan compact.

EXCLUSIVITÉ.

  • Habitable : 54,78 m² Total : 55,57 m²
  • 3 pièces
  • 2 chambres
  • 1 salle de douche
  • Étage 4/6
  • Exposition Sud-est
  • Bon état

Ce qui nous séduit

  • Gardien
  • Calme
  • Cave

    Vous devez vendre pour acheter ?

    Nos consultants immobiliers se tiennent à votre disposition pour réaliser une estimation de la valeur de votre bien. Toutes nos estimations sont offertes.

    Je fais estimer mon bien

    Un lieu de vie à votre image

    Junot vous fait visiter les quartiers dans lesquels nos agences vous accueillent, et vous présente les spécificités et bonnes adresses.

    Parcourir les quartiers
Je souhaite visiter
Souhaitez-vous vraiment quitter la page ?
Souhaitez-vous vraiment quitter la page ?
Souhaitez-vous vraiment quitter la page ?
Souhaitez-vous vraiment quitter la page ?
Souhaitez-vous vraiment quitter la page ?
Souhaitez-vous vraiment quitter la page ?
Souhaitez-vous vraiment quitter la page ?
Souhaitez-vous vraiment quitter la page ?
Souhaitez-vous vraiment quitter la page ?
Souhaitez-vous vraiment quitter la page ?
Souhaitez-vous vraiment quitter la page ?