Faisons un tour d'horizon
Référence de l’annonce : 1719VHUVID4CH
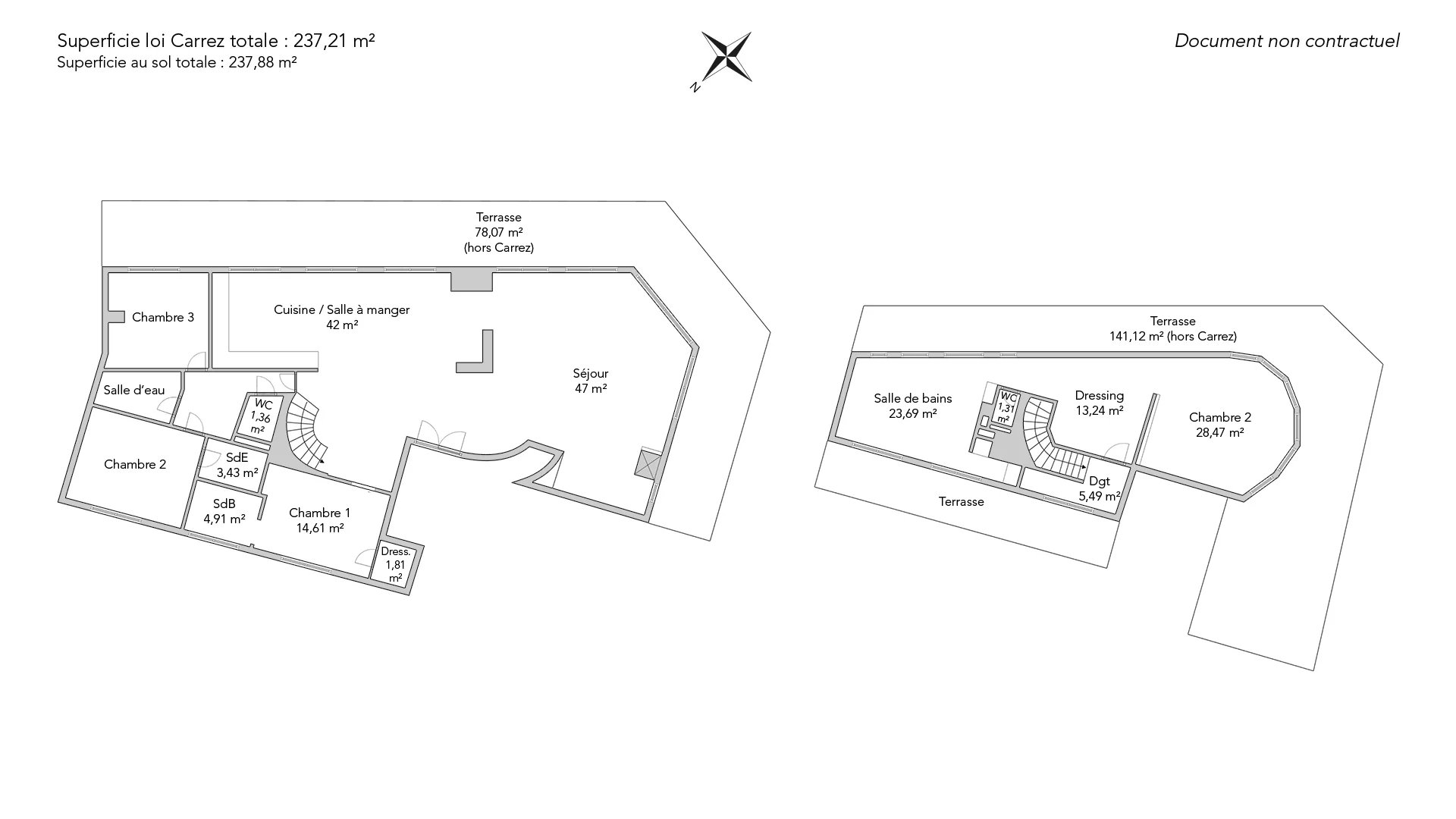
Idéalement situé au cœur de l'OCDE, ce sublime penthouse en duplex de 237,21m² loi Carrez s’ouvre sur 219,19m² de terrasses paysagées, offrant un cadre de vie unique entre ciel et verdure. Niché aux deux derniers étages d’un bel immeuble, il séduit par ses volumes, sa luminosité et ses vues dégagées, notamment sur la tour Eiffel.
L’appartement se compose, au premier niveau, d’un vaste séjour et d’une salle à manger baignés de lumière grâce aux larges baies vitrées s’ouvrant sur une terrasse arborée à l’abri des regards. La cuisine ouverte, entièrement équipée, complète cet espace de réception convivial. Ce niveau comprend également une première chambre avec dressing et salle de bains attenante.
À l’étage supérieur, une somptueuse suite parentale profite d’un dressing sur-mesure, d’une salle de bains luxueuse et d’un accès direct à une deuxième terrasse panoramique, idéale pour admirer la tour Eiffel.
Grâce à ses généreux volumes et ses espaces modulables, il est aisément possible de reconfigurer l’appartement pour une quatrième chambre, tout en préservant la fluidité et l’élégance des lieux.
Trois caves complètent ce bien.
Possibilité d’acquérir en supplément deux parking cloisonnables (100.000€ H.A.I chacun).
Un bien rare sur le marché, offrant un art de vivre exceptionnel au cœur du 16e arrondissement.
- Habitable : 237,21 m² Total : 237,88 m²
- 6 pièces
- 4 chambres
- 2 salles de bains
- Étage 7/7
- Exposition Sud-est
- Excellent état
Ce qui nous séduit
- Balcon/Terrasse
- Adresse très recherchée
- Dernier étage
- Gardien
- Vue monument historique
- Lumineux
- Calme
- Ascenseur
- Vue dégagée
On vous en dit plus
Réglementations & éléments financiers
Les informations sur les risques auxquels ce bien est exposé sont disponibles sur le site Géorisques : www.georisques.gouv.fr
| Diagnostics |
|---|
Consommation énergie finale : E - 253.9 kWh/m²/an.
Montant estimé des dépenses annuelles d’énergie pour un usage standard : entre 3 376,00 € et 4 567,00 € /an (abonnement compris).
Prix moyen des énergies indexées au 01/01/2021.
| Éléments financiers |
|---|
Taxe foncière : 5 109,00 € /an
Détails de l’intérieur & de l’extérieur
| Pièce | Surface | Détail |
|---|---|---|
| 1x Chambre | 14.61 m² | |
| 1x Dressing | 1.81 m² | |
| 1x Salle de bains | 4.91 m² | |
| 1x Toilettes | 1.36 m² | |
| 1x Cuisine | 20.42 m² | |
| 1x Buanderie | 3.43 m² | |
| 1x Dégagement | 5.49 m² | |
| 1x Dressing | 13.24 m² | |
| 1x Chambre | 28.47 m² | |
| 1x Toilettes | 1.31 m² | |
| 1x Salle de bains | 23.69 m² | |
| 1x Dégagement | 1.08 m² | |
| 1x Terrasse | 141.12 m² | |
| 1x Terrasse | 78.07 m² | |
| 1x Chambre | 14 m² | |
| 1x Chambre | 14 m² | |
| 1x Triple réception | 89.39 m² |
Étage : 7ème Exposition : Sud-est |
Prestations
Bâtiment & Copropriété
| Bâtiment |
|---|
-
Construit en : 1963
-
Type : Béton
-
Nombre d'étages : 7
-
Niveau de qualité : Standing
| Copropriété |
|---|
54 lots d'habitation
Montant moyen annuel de la quote part de charges courantes : 21 636 €
Procédure en cours : Non
Rencontrez votre agence
Simulateur de financement
Calculez le montant des mensualités de votre prêt immobilier correspondant à l'emprunt que vous souhaitez effectuer.
Prix du bien HAI
6 200 000 €
€
par mois
Vous devez vendre pour acheter ?
Nos consultants immobiliers se tiennent à votre disposition pour réaliser une estimation de la valeur de votre bien. Toutes nos estimations sont offertes.
Je fais estimer mon bienUn lieu de vie à votre image
Junot vous fait visiter les quartiers dans lesquels nos agences vous accueillent, et vous présente les spécificités et bonnes adresses.
Parcourir les quartiers






