Faisons un tour d'horizon
Référence de l’annonce : 2825MONRAS
Idéalement situé à proximité de l'avenue Trudaine et de la rue des Martyrs, au sein d'un bel immeuble en pierre de taille dont le ravalement est voté, cet appartement de 99,38m² loi Carrez se situe au premier étage par escalier.
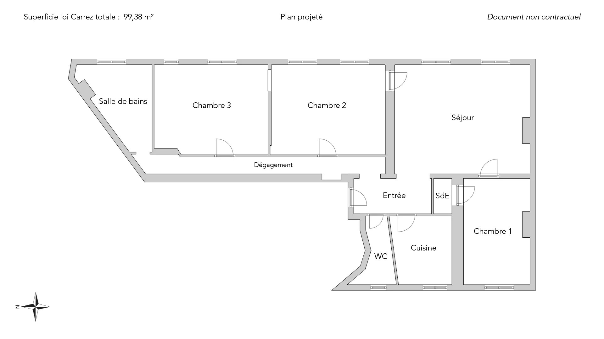
Il se compose d'une entrée, un beau séjour sur rue, deux ou trois chambres, une cuisine indépendante, une salle de bains et des toilettes séparées.
Ce bien dispose de beaux volumes et d'une belle luminosité.
Plan modulable en deux ou trois chambres.
Travaux de rénovation à prévoir.
EXCLUSIVITÉ.
- Habitable : 99,38 m²
- 4 pièces
- 3 chambres
- 1 salle de bains
- Étage 1/6
- Cheminée
- Exposition Est
- À rénover
Ce qui nous séduit
- Gardien
- Traversant
On vous en dit plus
Réglementations & éléments financiers
Les informations sur les risques auxquels ce bien est exposé sont disponibles sur le site Géorisques : www.georisques.gouv.fr
| Diagnostics |
|---|
Consommation énergie finale : D - 235 kWh/m²/an.
Montant estimé des dépenses annuelles d’énergie pour un usage standard : entre 2 110,00 € et 2 900,00 € /an (abonnement compris).
Prix moyen des énergies indexées au 01/01/2021.
| Éléments financiers |
|---|
Détails de l’intérieur & de l’extérieur
| Pièce | Surface | Détail |
|---|---|---|
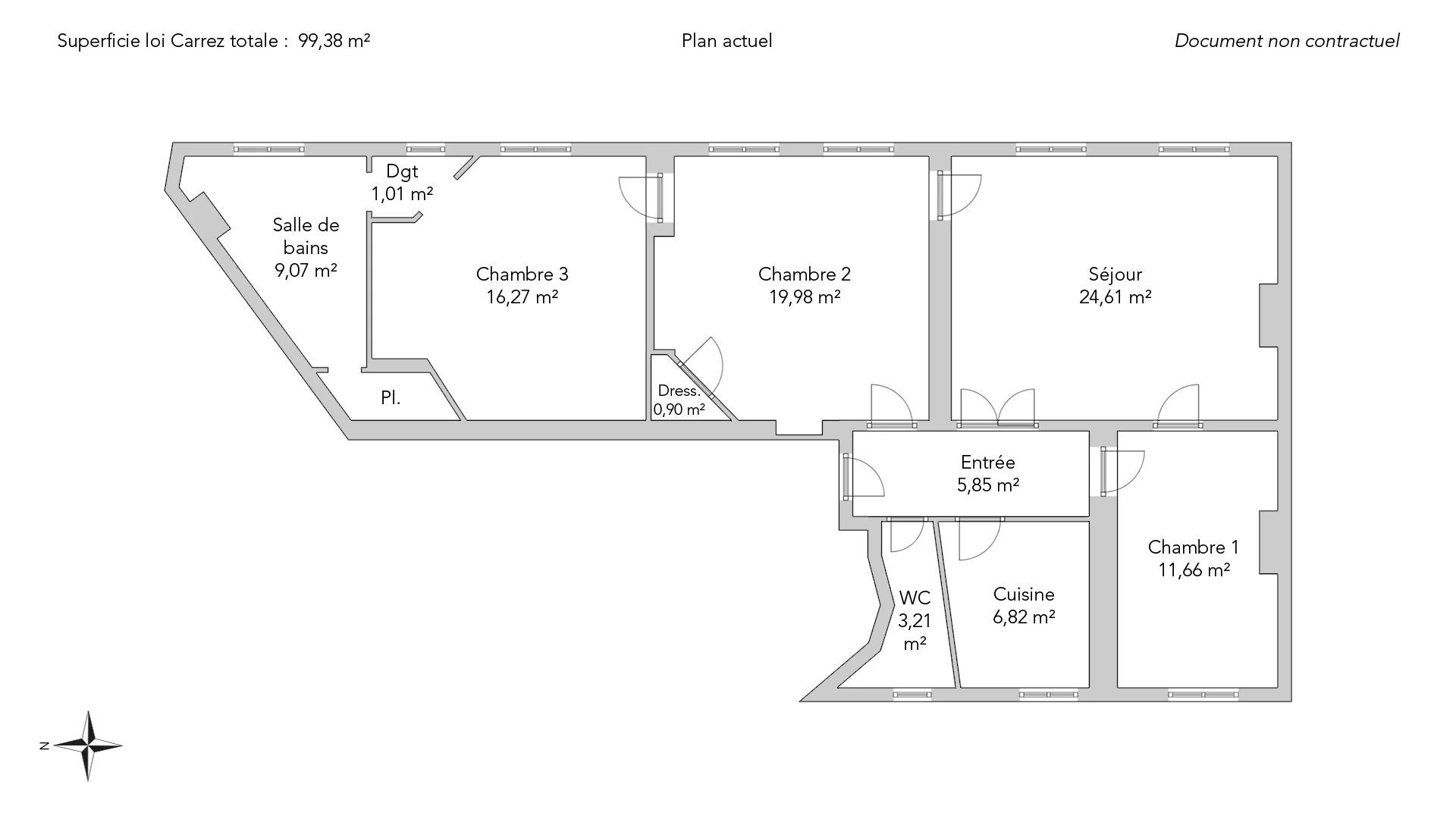
| 1x Entrée | 5.85 m² | Étage : 1er |
| 1x Toilettes | 3.21 m² | Étage : 1er |
| 1x Cuisine | 6.82 m² | Étage : 1er |
| 1x Chambre | 11.66 m² | Étage : 1er |
| 1x Séjour | 26.61 m² | Étage : 1er |
| 1x Chambre | 19.98 m² | Étage : 1er |
| 1x Chambre | 16.27 m² | Étage : 1er |
| 1x Dressing | 0.9 m² | Étage : 1er |
| 1x Dégagement | 1.01 m² | Étage : 1er |
| 1x Salle de bains | 9.07 m² | Étage : 1er |
Prestations
Bâtiment & Copropriété
| Bâtiment |
|---|
-
Construit en : 1870
-
Nombre d'étages : 6
| Copropriété |
|---|
43 lots d'habitation
Montant moyen annuel de la quote part de charges courantes : 2 933 €
Procédure en cours : Non
Rencontrez votre agence
Simulateur de financement
Calculez le montant des mensualités de votre prêt immobilier correspondant à l'emprunt que vous souhaitez effectuer.
Prix du bien HAI
1 050 000 €
€
par mois
Vous devez vendre pour acheter ?
Nos consultants immobiliers se tiennent à votre disposition pour réaliser une estimation de la valeur de votre bien. Toutes nos estimations sont offertes.
Je fais estimer mon bienUn lieu de vie à votre image
Junot vous fait visiter les quartiers dans lesquels nos agences vous accueillent, et vous présente les spécificités et bonnes adresses.
Parcourir les quartiers













