• Exclusivité

Appartement en Viager
Paris 16e - JASMIN

1 500 000 €

1 500 000 € HAI (Honoraires d’Agence Inclus)

Barème des prestations Simuler votre financement

Ce bien vous plaît ?

Faisons un tour d'horizon

Référence de l’annonce : 5767JASPEI

VIAGER OCCUPÉ – HOMME 77 ANS ET FEMME 77 ANS

En bénéficiant d'une réduction immédiate de 49,6%, vous achetez ce bien sur la base d'une valeur occupée de 756 000 € et versez un capital immédiat de 340 000 € le jour de la vente, puis une rente de 2 872 € durant toute la vie des vendeurs. Horizon d'investissement 17 ans.

Idéalement situé au cœur du quartier Jasmin.
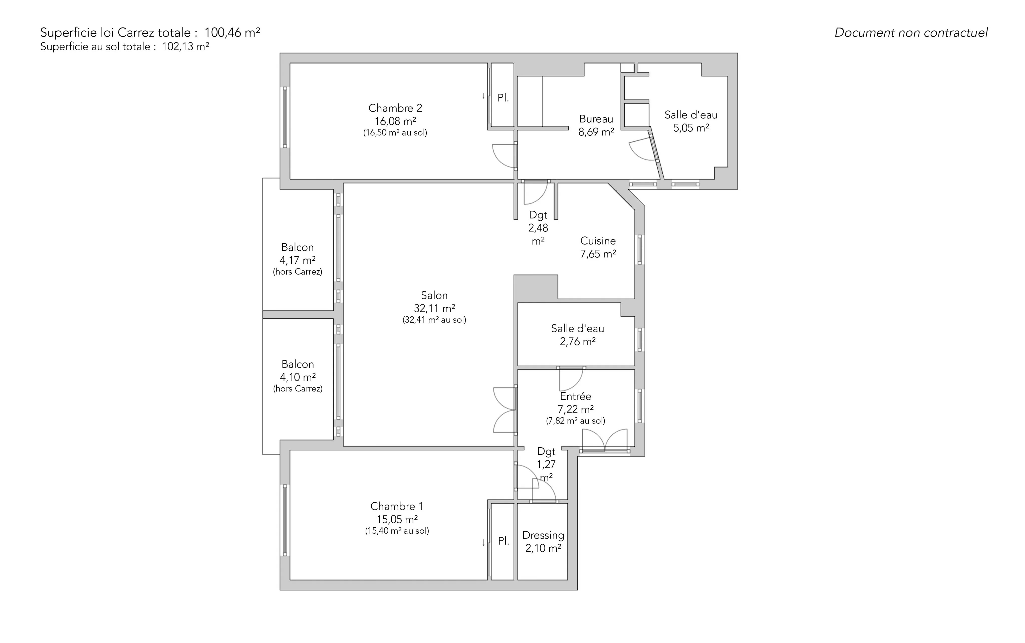
Dans un immeuble de standing en pierre de taille signé Jean Boussard, appartement de réception et de collection de 110,46m² loi Carrez, lumineux, traversant et élégant.

Situé au quatrième étage avec ascenseur, son plan comprend une galerie d’entrée qui mène à un vaste double séjour ouvrant sur deux balcons sculptés, baigné de lumière grâce à de larges ouvertures et agrémenté d’une cheminée. La cuisine est entièrement équipée.
Côté nuit, il offre deux chambres avec dressing ainsi que deux salles de bains avec toilettes.

Le charme de l’ancien a été préservé : parquet, moulures, trumeaux, cheminées et façade sculptée, qui en font un appartement au caractère marqué.

Bénéficiez d'un double effet de levier embarqué, je suis à votre disposition pour vous l'expliquer.
Photos complémentaires sur demande.

Une cave complète ce bien.

EXCLUSIVITÉ

  • Habitable : 100,46 m² Total : 102,13 m²
  • 4 pièces
  • 2 chambres
  • 2 salles de douche
  • Étage 4/6
  • Cheminée
  • Exposition Nord-est, Sud-ouest
  • Bon état

Ce qui nous séduit

  • Balcon/Terrasse
  • Lumineux
  • Calme
  • Traversant
  • Ascenseur
  • Cave

On vous en dit plus

Réglementations & éléments financiers

Les informations sur les risques auxquels ce bien est exposé sont disponibles sur le site Géorisques : www.georisques.gouv.fr


Diagnostics

DPE Graph GES Graph

Consommation énergie finale : E - 268 kWh/m²/an.
Montant estimé des dépenses annuelles d’énergie pour un usage standard : entre 2 590,00 € et 3 510,00 € /an (abonnement compris).
Prix moyen des énergies indexées au 01/01/2021.


Éléments financiers
Montant moyen annuel de la quote part de charges courantes : 6 028 €

Taxe foncière : 1 996,00 € /an

Détails de l’intérieur & de l’extérieur

Pièce Surface Détail
1x Cave Étage : Sous-sol
1x Entrée 7.22 m² Étage : 4ème
1x Séjour 32.11 m² Étage : 4ème
1x Balcon 4.17 m² Étage : 4ème
1x Balcon 4.1 m² Étage : 4ème
1x Chambre 15.05 m² Étage : 4ème
1x Chambre 16.08 m² Étage : 4ème
1x Bureau 8.69 m² Étage : 4ème
1x Dressing 2.1 m² Étage : 4ème
1x Salle de douche 5.05 m² Étage : 4ème
1x Salle de douche 2.76 m² Étage : 4ème
1x Cuisine 7.65 m² Étage : 4ème
1x Dégagement 1.27 m² Étage : 4ème
1x Dégagement 2.48 m² Étage : 4ème

Prestations

☑ Cheminée
☑ Ascenseur
☑ Double vitrage
☑ Interphone
☑ Digicode

Bâtiment & Copropriété

Bâtiment
  • Construit en : 1894
  • Type : Brique, Pierre de taille
  • Nombre d'étages : 6
  • Niveau de qualité : Luxe

Copropriété

11 lots d'habitation
Montant moyen annuel de la quote part de charges courantes : 6 028 €
Procédure en cours : Non

Rencontrez votre agence

Simulateur de financement

Calculez le montant des mensualités de votre prêt immobilier correspondant à l'emprunt que vous souhaitez effectuer.

Prix du bien HAI

1 500 000 €

Ce calcul prend en compte des droits d'enregistrement de 7 %.

par mois

Ceci est une simulation, seule votre banque peut vous donner une valeur précise. Nos consultants sont à votre disposition pour vous accompagner.
Être recontacté

    Vous devez vendre pour acheter ?

    Nos consultants immobiliers se tiennent à votre disposition pour réaliser une estimation de la valeur de votre bien. Toutes nos estimations sont offertes.

    Je fais estimer mon bien

    Un lieu de vie à votre image

    Junot vous fait visiter les quartiers dans lesquels nos agences vous accueillent, et vous présente les spécificités et bonnes adresses.

    Parcourir les quartiers
Je souhaite visiter
Souhaitez-vous vraiment quitter la page ?
Souhaitez-vous vraiment quitter la page ?
Souhaitez-vous vraiment quitter la page ?
Souhaitez-vous vraiment quitter la page ?
Souhaitez-vous vraiment quitter la page ?
Souhaitez-vous vraiment quitter la page ?
Souhaitez-vous vraiment quitter la page ?
Souhaitez-vous vraiment quitter la page ?
Souhaitez-vous vraiment quitter la page ?
Souhaitez-vous vraiment quitter la page ?
Souhaitez-vous vraiment quitter la page ?