Faisons un tour d'horizon
Référence de l’annonce : 3421MARGRA
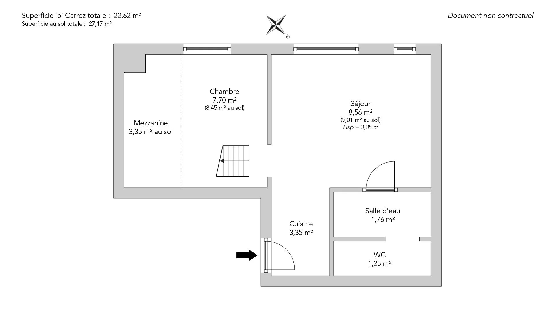
Au sein d'un bel immeuble en pierre, au cœur du quartier du Marais, charmant deux pièces de 22,62m² loi Carrez et 27,17m² au sol, entièrement rénové au deuxième étage par ascenseur.
Il comprend une cuisine entièrement équipée s'ouvrant sur un joli salon à la hauteur sous plafond de 3,22 mètres, une chambre avec dressing, une salle de douche et des toilettes indépendantes.
Il saura séduire par son emplacement extrêmement prisé, sa vue dégagée sur le ciel, son ensoleillement assuré avec son exposition sud-ouest, son calme absolu, sa rénovation soignée et sa hauteur sous plafond. RARE!
EXCLUSIVITÉ
- Habitable : 22,62 m² Total : 27,17 m²
- 2 pièces
- 1 chambre
- 1 salle de douche
- Étage 2/4
- Exposition Sud-ouest
- Excellent état
Ce qui nous séduit
- Adresse très recherchée
- Lumineux
- Calme
- Ascenseur
- Vue dégagée
On vous en dit plus
Réglementations & éléments financiers
Les informations sur les risques auxquels ce bien est exposé sont disponibles sur le site Géorisques : www.georisques.gouv.fr
| Diagnostics |
|---|
Consommation énergie finale : E - 328 kWh/m²/an.
Montant estimé des dépenses annuelles d’énergie pour un usage standard : entre 821,00 € et 1 111,00 € /an (abonnement compris).
Prix moyen des énergies indexées au 01/01/2023.
| Éléments financiers |
|---|
Taxe foncière : 567,00 € /an
Détails de l’intérieur & de l’extérieur
| Pièce | Surface | Détail |
|---|---|---|
| 1x Cuisine | 3.35 m² |
Étage : 2ème Exposition : Sud-ouest Revêtement : Carrelage Plafond : 3.22m |
| 1x Séjour | 8.56 m² |
Étage : 2ème Exposition : Sud-ouest Revêtement : Carrelage Plafond : 3.35m |
| 1x Chambre | 7.72 m² |
Étage : 2ème Exposition : Sud-ouest Revêtement : Moquette Plafond : 3.22m |
| 1x Salle de douche | 1.76 m² |
Étage : 2ème Exposition : Sud-ouest Revêtement : Carrelage Plafond : 3.22m |
| 1x Toilettes | 1.25 m² |
Étage : 2ème Revêtement : Carrelage Plafond : 3.22m |
| 1x Mezzanine | 3.35 m² |
Étage : 2ème Exposition : Sud-ouest Revêtement : Parquet |
Prestations
Bâtiment & Copropriété
| Bâtiment |
|---|
-
Construit en : 1631
-
Type : Pierre
-
Nombre d'étages : 4
-
Niveau de qualité : Normal
| Copropriété |
|---|
35 lots d'habitation
Montant moyen annuel de la quote part de charges courantes : 888 €
Procédure en cours : Non
Rencontrez votre agence
Simulateur de financement
Calculez le montant des mensualités de votre prêt immobilier correspondant à l'emprunt que vous souhaitez effectuer.
Prix du bien HAI
350 000 €
€
par mois
Vous devez vendre pour acheter ?
Nos consultants immobiliers se tiennent à votre disposition pour réaliser une estimation de la valeur de votre bien. Toutes nos estimations sont offertes.
Je fais estimer mon bienUn lieu de vie à votre image
Junot vous fait visiter les quartiers dans lesquels nos agences vous accueillent, et vous présente les spécificités et bonnes adresses.
Parcourir les quartiers









