Faisons un tour d'horizon
Référence de l’annonce : 3280BTLGRA
Surplombant la magnifique Place de Breteuil, un très bel appartement de 42,21m² au cinquième étage avec ascenseur d’un immeuble haussmannien de standing. Ce bien ensoleillé, exposé sud-ouest, bénéficie d’un charme authentique avec parquet d’origine et cheminée. Il se compose d’une agréable chambre, d’un séjour ouvrant sur un balcon filant et bénéficiant d'une vue impressionnante au-dessus de la place, d’une cuisine séparée et d’une salle de douche. Un petit cagibi situé à mi- étage, vient compléter l’ensemble et offre un espace de rangement pratique. Balcon filant de 9m², Calme, lumineux, cet appartement conjugue élégance de l’ancien et adresse recherchée au cœur de la rive gauche parisienne. Une cave complète ce bien.
EXCLUSIVITÉ.
- Habitable : 42,21 m²
- 2 pièces
- 1 chambre
- 1 salle de douche
- Étage 5/7
- Exposition Sud-ouest
- Bon état
Ce qui nous séduit
- Vue exceptionnelle
- Balcon/Terrasse
- Adresse très recherchée
- Gardien
- Vue monument historique
- Lumineux
- Calme
- Ascenseur
- Cave
- Vue dégagée
On vous en dit plus
Réglementations & éléments financiers
Les informations sur les risques auxquels ce bien est exposé sont disponibles sur le site Géorisques : www.georisques.gouv.fr
| Diagnostics |
|---|
Consommation énergie finale : D - 214 kWh/m²/an.
Montant estimé des dépenses annuelles d’énergie pour un usage standard : entre 920,00 € et 1 290,00 € /an (abonnement compris).
Prix moyen des énergies indexées au 01/01/2021.
| Éléments financiers |
|---|
Taxe foncière : 1 214,00 € /an
Détails de l’intérieur & de l’extérieur
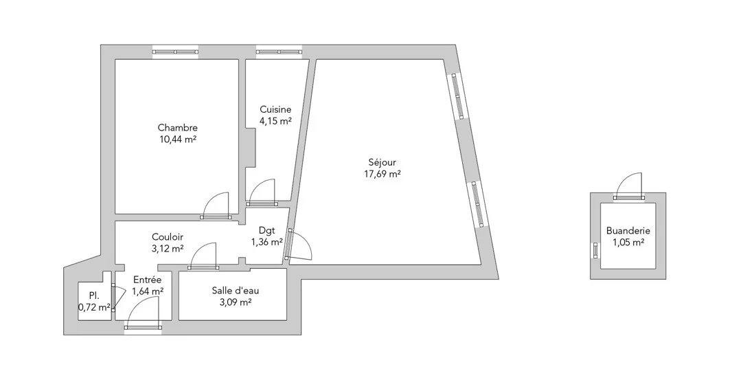
| Pièce | Surface | Détail |
|---|---|---|
| 1x Cave | ||
| 1x Buanderie | ||
| 1x Balcon | ||
| 1x Balcon | 8.94 m² | |
| 1x Entrée | 1.64 m² | Étage : 5ème |
| 1x Placard | 0.72 m² | Étage : 5ème |
| 1x Cuisine | 4.15 m² | Étage : 5ème |
| 1x Couloir | 3.12 m² | Étage : 5ème |
| 1x Salle de douche | 3.09 m² | Étage : 5ème |
| 1x Dégagement | 1.36 m² | Étage : 5ème |
| 1x Chambre | 10.44 m² | Étage : 5ème |
| 1x Séjour | 17.69 m² | Étage : 5ème |
Prestations
Bâtiment & Copropriété
| Bâtiment |
|---|
-
Construit en : 1887
-
Nombre d'étages : 7
| Copropriété |
|---|
30 lots d'habitation
Montant moyen annuel de la quote part de charges courantes : 1 560 €
Procédure en cours : Non
Rencontrez votre agence
Simulateur de financement
Calculez le montant des mensualités de votre prêt immobilier correspondant à l'emprunt que vous souhaitez effectuer.
Prix du bien HAI
760 000 €
€
par mois
Vous devez vendre pour acheter ?
Nos consultants immobiliers se tiennent à votre disposition pour réaliser une estimation de la valeur de votre bien. Toutes nos estimations sont offertes.
Je fais estimer mon bienUn lieu de vie à votre image
Junot vous fait visiter les quartiers dans lesquels nos agences vous accueillent, et vous présente les spécificités et bonnes adresses.
Parcourir les quartiers












