Faisons un tour d'horizon
Référence de l’annonce : 159COMGRE
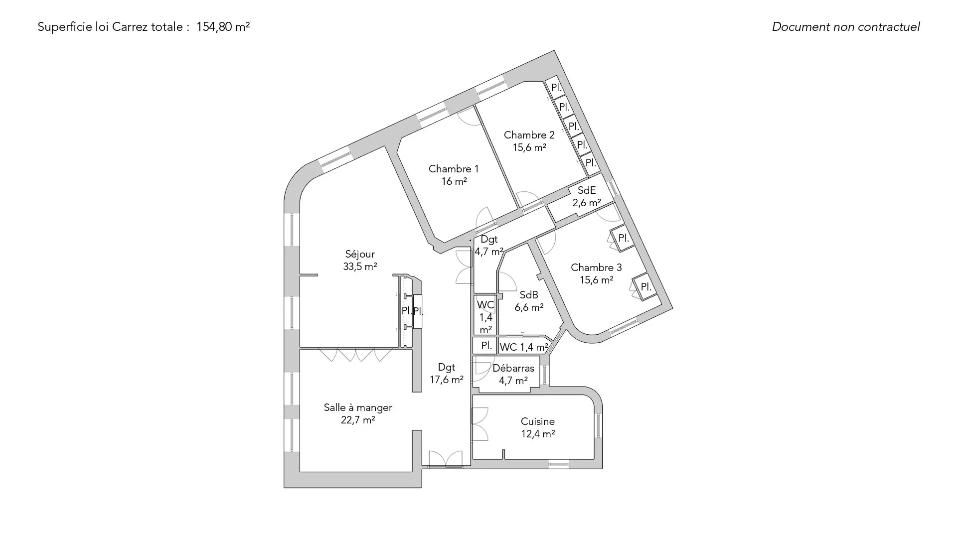
Au cœur d’un quartier résidentiel prisé, à proximité des commerces, des écoles de renom et des transports, découvrez ce très bel appartement de 152,73m² loi Carrez, situé au premier étage d’un immeuble de standing parfaitement entretenu.
Ce bien comporte une entrée accueillante, un double séjour lumineux exposé sud-ouest, offrant une agréable vue dégagée sur des arbres et un jardin privé, créant une atmosphère paisible et verdoyante en plein Paris. La cuisine indépendante est fonctionnelle et bien agencée.
L’espace nuit comprend actuellement trois belles chambres, avec la possibilité d’en créer une quatrième selon vos besoins, ainsi que deux salles de bains et de nombreux espaces de rangement.
Le bien est en très bon état général.
Une cave complète cette offre.
Un bien rare dans un cadre privilégié, idéal pour une famille ou pour un pied-à-terre de standing.
- Habitable : 152,73 m² Total : 153,08 m²
- 6 pièces
- 4 chambres
- 2 salles de bains
- Étage 1/7
- Exposition Sud-ouest
- Excellent état
Ce qui nous séduit
- Adresse très recherchée
- Lumineux
- Calme
- Traversant
- Ascenseur
On vous en dit plus
Réglementations & éléments financiers
Les informations sur les risques auxquels ce bien est exposé sont disponibles sur le site Géorisques : www.georisques.gouv.fr
| Diagnostics |
|---|
Montant estimé des dépenses annuelles d’énergie pour un usage standard : entre 3 460,00 € et 4 720,00 € /an (abonnement compris).
Prix moyen des énergies indexées au 01/01/2025.
| Éléments financiers |
|---|
Détails de l’intérieur & de l’extérieur
| Pièce | Surface | Détail |
|---|---|---|
| 1x Entrée | 16.1 m² | |
| 1x Séjour | 22.47 m² | |
| 1x Salon | 12.97 m² | |
| 1x Salle à manger | 20.07 m² | |
| 1x Dégagement | 4.73 m² | |
| 1x Chambre | 15.97 m² | |
| 1x Chambre | 15.87 m² | |
| 1x Chambre | 15.87 m² | |
| 1x Salle de bains | 2.3 m² | |
| 1x Salle de bains / toilettes | 8.24 m² | |
| 1x Toilettes | 1.45 m² | |
| 1x Buanderie | 4.33 m² | |
| 1x Cuisine | 12.36 m² | |
| 1x Chambre |
Prestations
Bâtiment & Copropriété
| Bâtiment |
|---|
-
Construit en : 1907
-
Type : Pierre de taille
-
Nombre d'étages : 7
-
Niveau de qualité : Normal
| Copropriété |
|---|
Montant moyen annuel de la quote part de charges courantes : 6 557 €
Procédure en cours : Non
Rencontrez votre agence
Simulateur de financement
Calculez le montant des mensualités de votre prêt immobilier correspondant à l'emprunt que vous souhaitez effectuer.
Prix du bien HAI
1 990 000 €
€
par mois
Vous devez vendre pour acheter ?
Nos consultants immobiliers se tiennent à votre disposition pour réaliser une estimation de la valeur de votre bien. Toutes nos estimations sont offertes.
Je fais estimer mon bienUn lieu de vie à votre image
Junot vous fait visiter les quartiers dans lesquels nos agences vous accueillent, et vous présente les spécificités et bonnes adresses.
Parcourir les quartiers











