Faisons un tour d'horizon
Référence de l’annonce : 1905VHUVID
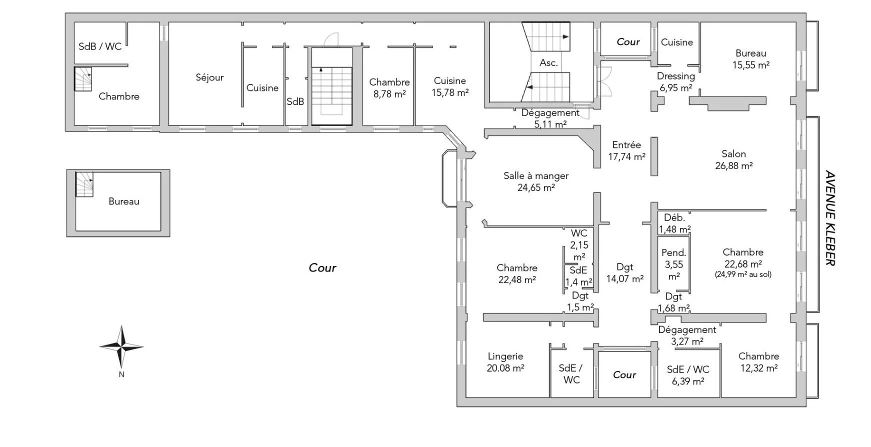
Au sein d'un sublime immeuble bâti en 1880 avec gardien, au deuxième étage par ascenseur, seul sur le palier, cet appartement de réception de 291,29m² loi Carrez s'adapte également à une vie de famille dans un cadre exceptionnel.
Traversant, il bénéficie de superbes volumes grâce à 3,60m de hauteur sous plafond et a conservé le charme de l'ancien: boiseries, moulures, cheminées et un parquet d'origine.
Son plan en étoile comporte une première galerie d'entrée desservant une réception sur rue exposée ouest, une salle à manger avec verrière, une cuisine dînatoire mitoyenne et un bureau.
La seconde partie du bien est composée de quatre belles chambres pouvant avoir chacune leur point d’eau et toilettes.
A la suite de la cuisine se raccorde une cinquième chambre (de service) avec salle de douche et toilette.
Un deux pièces de 50m² est proposé avec l'appartement sur le même palier.
Une rénovation est à prévoir. Elle permettra de rendre toute sa splendeur à ce lieu au cachet incontestable.
Possibilité d’acquérir en option un box en rez-de-chaussée ainsi qu’une place de parking pour 70.000€ et 50.000€ respectivement.
Trois cave viennent compléter cette offre rare.
- Habitable : 291,29 m² Total : 300,10 m²
- 8 pièces
- 7 chambres
- 4 salles de bains
- 1 salle de douche
- Étage 2/6
- Cheminée
- Exposition Ouest
- À rafraîchir
Ce qui nous séduit
- Balcon/Terrasse
- Adresse très recherchée
- Gardien
- Lumineux
- Calme
- Traversant
- Ascenseur
- Cave
- Vue dégagée
On vous en dit plus
Réglementations & éléments financiers
Les informations sur les risques auxquels ce bien est exposé sont disponibles sur le site Géorisques : www.georisques.gouv.fr
| Diagnostics |
|---|
Consommation énergie finale : a - 290 kWh/m²/an.
Montant estimé des dépenses annuelles d’énergie pour un usage standard : entre 7 394,00 € et 10 004,00 € /an (abonnement compris).
Prix moyen des énergies indexées au 01/01/2021.
| Éléments financiers |
|---|
Taxe foncière : 7 867,00 € /an
Détails de l’intérieur & de l’extérieur
| Pièce | Surface | Détail |
|---|---|---|
| 1x Cave | Étage : Sous-sol | |
| 1x Cave | Étage : Sous-sol | |
| 1x Box | Étage : Rez-de-chaussée | |
| 1x Appartement | Étage : 2ème | |
| 1x Chambre de service | Étage : 2ème | |
| 1x Entrée | 18.22 m² | Étage : 2ème |
| 1x Dégagement | 3.35 m² | Étage : 2ème |
| 1x Buanderie | 4.03 m² | Étage : 2ème |
| 1x Salon | 15.6 m² | Étage : 2ème |
| 1x Séjour | 31.32 m² | Étage : 2ème |
| 1x Dégagement | 14.12 m² | Étage : 2ème |
| 1x Dégagement | 1.5 m² | Étage : 2ème |
| 1x Dressing | 3.62 m² | Étage : 2ème |
| 1x Chambre | 24.1 m² | Étage : 2ème |
| 1x Dégagement | 3.55 m² | Étage : 2ème |
| 1x Salle de bains / toilettes | 6.08 m² | Étage : 2ème |
| 1x Chambre | 12.85 m² | Étage : 2ème |
| 1x Dégagement | 2.28 m² | Étage : 2ème |
| 1x Salle de bains / toilettes | 4.38 m² | Étage : 2ème |
| 1x Chambre | 13.78 m² | Étage : 2ème |
| 1x Dégagement | 1.85 m² | Étage : 2ème |
| 1x Chambre | 18.1 m² | Étage : 2ème |
| 1x Dressing | 1.42 m² | Étage : 2ème |
| 1x Salle de douche | 2.15 m² | Étage : 2ème |
| 1x Dégagement | 0.35 m² | Étage : 2ème |
| 1x Salle à manger | 25.8 m² | Étage : 2ème |
| 1x Cuisine | 18.31 m² | Étage : 2ème |
| 1x Penderie | 3.7 m² | Étage : 2ème |
| 1x Chambre | 8.82 m² | Étage : 2ème |
| 1x Salle de bains / toilettes | 2.53 m² | Étage : 2ème |
| 1x Séjour | 23.63 m² | Étage : 2ème |
| 1x Cuisine | 3.9 m² | Étage : 2ème |
| 1x Dégagement | 2.75 m² | Étage : 2ème |
| 1x Toilettes | 0.92 m² | Étage : 2ème |
| 1x Salle de bains | 2.98 m² | Étage : 2ème |
| 1x Chambre | 10.15 m² | Étage : 2ème |
| 1x Chambre | 5.15 m² | Étage : 2ème |
| 1x Balcon | Étage : 2ème | |
| 1x Balcon | Étage : 2ème | |
| 1x Cave | Étage : 2ème |
Prestations
Bâtiment & Copropriété
| Bâtiment |
|---|
-
Construit en : 1880
-
Type : Béton armé
-
Nombre d'étages : 6
-
Niveau de qualité : Grand ensemble
| Copropriété |
|---|
Montant moyen annuel de la quote part de charges courantes : 17 332 €
Procédure en cours : Non
Rencontrez votre agence
Simulateur de financement
Calculez le montant des mensualités de votre prêt immobilier correspondant à l'emprunt que vous souhaitez effectuer.
Prix du bien HAI
3 875 000 €
€
par mois
Vous devez vendre pour acheter ?
Nos consultants immobiliers se tiennent à votre disposition pour réaliser une estimation de la valeur de votre bien. Toutes nos estimations sont offertes.
Je fais estimer mon bienUn lieu de vie à votre image
Junot vous fait visiter les quartiers dans lesquels nos agences vous accueillent, et vous présente les spécificités et bonnes adresses.
Parcourir les quartiers











