Faisons un tour d'horizon
Référence de l’annonce : 3403BRECHA-5TG
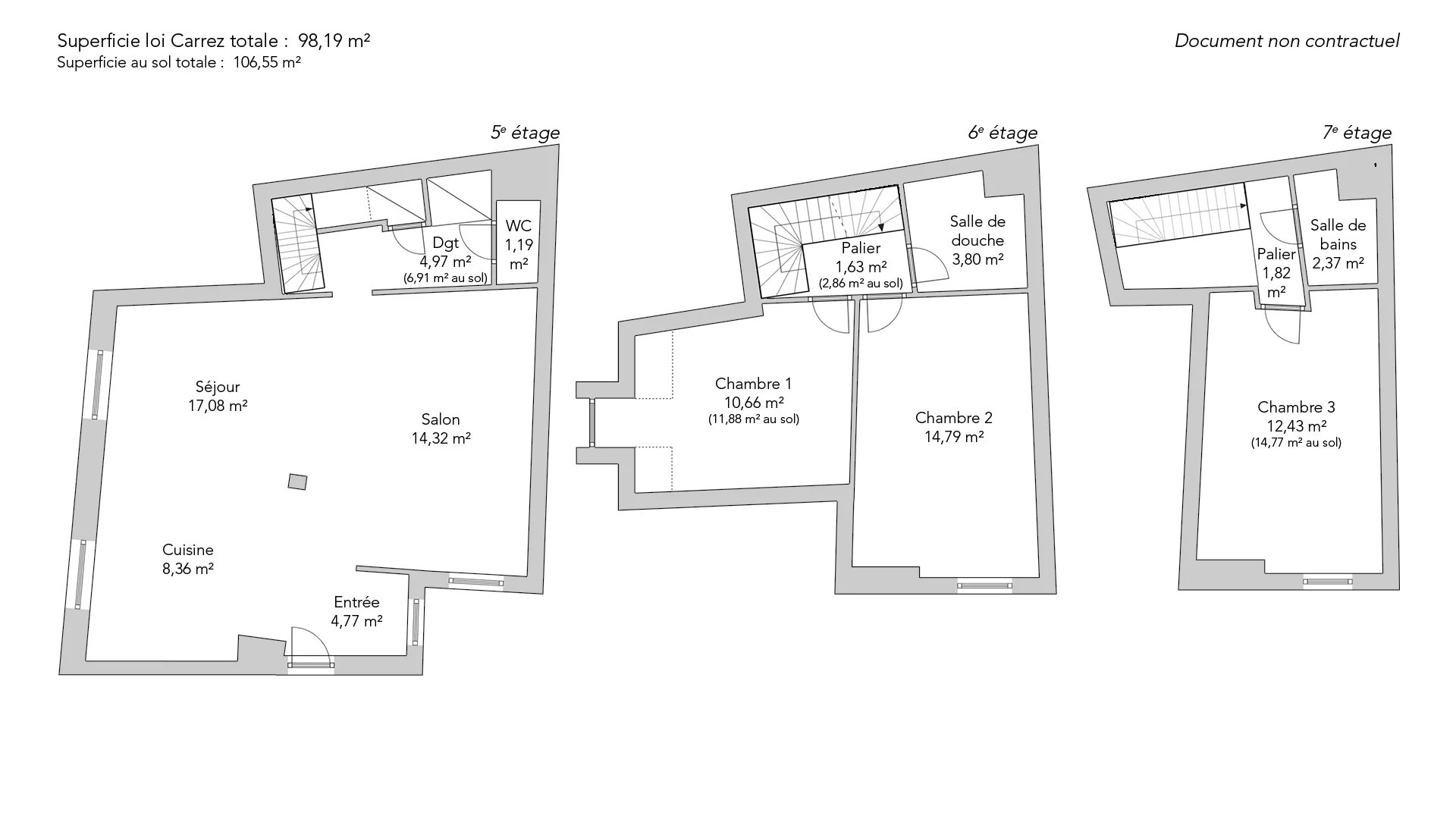
Idéalement situé à Hôtel de Ville, dans un immeuble récemment rénové, un appartement accessible au cinquième étage par ascenseur d'une surface de 99,5m² loi Carrez (107,55m² au sol). Il se compose d'une agréable pièce à vivre lumineuse, d'une cuisine ouverte, de trois chambres au deuxième et troisième niveaux, ainsi que de salles de douche et de toilettes à chaque étage. Vous serez séduits par son emplacement très central, son format familial et sa luminosité.
- Habitable : 107,55 m²
- 5 pièces
- 3 chambres
- 2 salles de douche
- Étage 5/5
- Exposition Est, Nord
- Excellent état
Ce qui nous séduit
- Adresse très recherchée
- Dernier étage
- Lumineux
- Traversant
- Ascenseur
- Vue dégagée
On vous en dit plus
Réglementations & éléments financiers
Les informations sur les risques auxquels ce bien est exposé sont disponibles sur le site Géorisques : www.georisques.gouv.fr
| Diagnostics |
|---|
Consommation énergie finale : B - 91 kWh/m²/an.
Montant estimé des dépenses annuelles d’énergie pour un usage standard : entre 1 600,00 € et 2 230,00 € /an (abonnement compris).
Prix moyen des énergies indexées au 01/01/2021.
| Éléments financiers |
|---|
Détails de l’intérieur & de l’extérieur
| Pièce | Surface | Détail |
|---|---|---|
| 1x Séjour | 44.66 m² |
Étage : 5ème Exposition : Est Revêtement : Parquet Plafond : 2.35m |
| 1x Dégagement | 3.59 m² |
Étage : 5ème Revêtement : Parquet |
| 1x Toilettes | 1.18 m² |
Étage : 5ème Revêtement : Parquet |
| 1x Placard | 1 m² | Étage : 5ème |
| 1x Placard | 0.77 m² | Étage : 5ème |
| 1x Chambre | 14.55 m² |
Étage : 6ème Exposition : Est Revêtement : Parquet |
| 1x Palier | 1.71 m² |
Étage : 6ème Revêtement : Carrelage |
| 1x Chambre | 11 m² |
Étage : 6ème Revêtement : Parquet |
| 1x Salle de douche / toilettes | 3.89 m² |
Étage : 6ème Revêtement : Carrelage |
| 1x Palier | 1.79 m² |
Étage : 7ème Revêtement : Parquet |
| 1x Chambre | 12.81 m² |
Étage : 7ème Revêtement : Parquet |
| 1x Salle de douche | 2.55 m² |
Étage : 7ème Revêtement : Carrelage |
Prestations
Bâtiment & Copropriété
| Bâtiment |
|---|
-
Construit en : 1930
-
Type : Béton
-
Nombre d'étages : 5
| Copropriété |
|---|
22 lots d'habitation
Procédure en cours : Non
Rencontrez votre agence
Simulateur de financement
Calculez le montant des mensualités de votre prêt immobilier correspondant à l'emprunt que vous souhaitez effectuer.
Prix du bien HAI
1 470 000 €
€
par mois
Vous devez vendre pour acheter ?
Nos consultants immobiliers se tiennent à votre disposition pour réaliser une estimation de la valeur de votre bien. Toutes nos estimations sont offertes.
Je fais estimer mon bienUn lieu de vie à votre image
Junot vous fait visiter les quartiers dans lesquels nos agences vous accueillent, et vous présente les spécificités et bonnes adresses.
Parcourir les quartiers










