
Faisons un tour d'horizon
Référence de l’annonce : 3376STGMIC
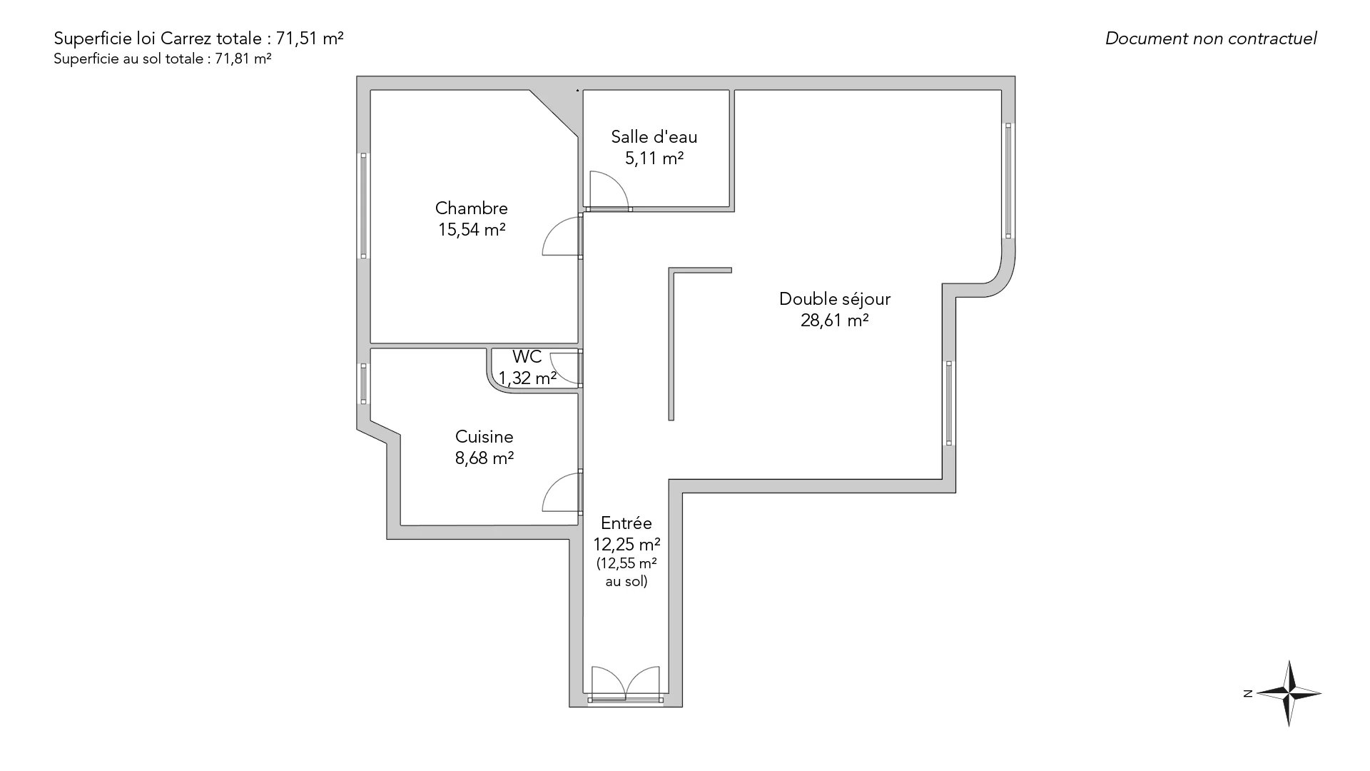
Au deuxième étage par ascenseur d'un bel immeuble en pierre de taille parfaitement entretenu, superbe trois pièces traversant de 71,51m² loi Carrez, en parfait état.
Il bénéficie d'une jolie galerie d'entrée desservant un double séjour de 28,61m² exposé sud, une cuisine indépendante équipée, une chambre confortable à la vue dégagée, une salle de douche et des toilettes indépendantes.
Ce bien saura vous séduire par son environnement privilégié, au calme d'une large cour, son charme ancien, son agencement parfaitement optimisé et son état irréprochable.
Une cave saine complète ce bien.
Possibilité d'acquérir un emplacement de parking en sus.
EXCLUSIVITÉ
- Habitable : 71,51 m² Total : 71,81 m²
- 3 pièces
- 1 chambre
- 1 salle de douche
- Étage 2/7
- Cheminée
- Exposition Nord, Sud
- Excellent état
Ce qui nous séduit
- Gardien
- Calme
- Traversant
- Ascenseur
- Cave
On vous en dit plus
Réglementations & éléments financiers
Les informations sur les risques auxquels ce bien est exposé sont disponibles sur le site Géorisques : www.georisques.gouv.fr
Diagnostics |
---|
Consommation énergie finale : D - 193 kWh/m²/an.
Montant estimé des dépenses annuelles d’énergie pour un usage standard : entre 1 340,00 € et 1 880,00 € /an (abonnement compris).
Prix moyen des énergies indexées au 01/01/2023.
Éléments financiers |
---|
Taxe foncière : 1 545,00 € /an
Détails de l’intérieur & de l’extérieur
Pièce | Surface | Détail |
---|---|---|
1x Cave | ||
1x Entrée | 12.25 m² |
Étage : 2ème Revêtement : Parquet |
1x Double réception | 28.61 m² |
Étage : 2ème Exposition : Sud Revêtement : Parquet |
1x Cuisine | 8.68 m² |
Étage : 2ème Exposition : Nord Revêtement : Carrelage |
1x Chambre | 15.54 m² |
Étage : 2ème Exposition : Nord Revêtement : Parquet |
1x Salle de douche | 5.11 m² |
Étage : 2ème Revêtement : Carrelage |
1x Toilettes | 1.32 m² |
Étage : 2ème Revêtement : Carrelage |
Prestations
Bâtiment & Copropriété
Bâtiment |
---|
-
Construit en : 1922
-
Nombre d'étages : 7
-
Niveau de qualité : Luxe
Copropriété |
---|
189 lots d'habitation
Montant moyen annuel de la quote part de charges courantes : 2 400 €
Procédure en cours : Non
Rencontrez votre agence

Simulateur de financement
Calculez le montant des mensualités de votre prêt immobilier correspondant à l'emprunt que vous souhaitez effectuer.
Prix du bien HAI
875 000 €
€
par mois
Vous devez vendre pour acheter ?
Nos consultants immobiliers se tiennent à votre disposition pour réaliser une estimation de la valeur de votre bien. Toutes nos estimations sont offertes.
Je fais estimer mon bienUn lieu de vie à votre image
Junot vous fait visiter les quartiers dans lesquels nos agences vous accueillent, et vous présente les spécificités et bonnes adresses.
Parcourir les quartiers