Faisons un tour d'horizon
Référence de l’annonce : 5713JUNVAG
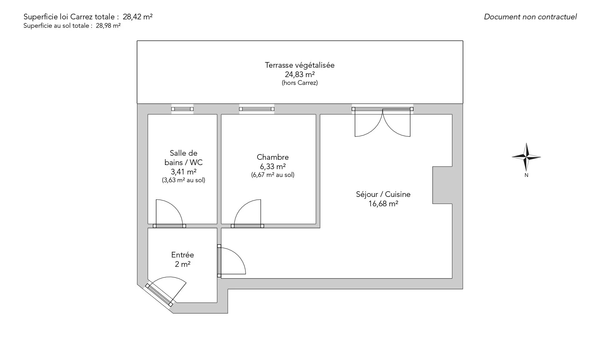
Au sein d'une petite copropriété dans un passage privé, charmant deux pièces de 28,42m² loi Carrez, agrémenté d'un jardin/terrasse en jouissance exclusive d'environ 25m².
Le plan optimisé comporte une entrée, une salle de bains avec toilettes, une chambre, le séjour avec cuisine ouverte donnant accès à la terrasse végétalisée.
Toutes les pièces sont orientées sud sur l'espace extérieur. Au calme, véritable cocon à proximité des commerces et du métro Lamarck-Caulaincourt.
EXCLUSIVITÉ.
- Habitable : 28,42 m² Total : 28,98 m²
- 2 pièces
- 1 chambre
- 1 salle de bains
- Cheminée
- Exposition Sud
- Bon état
Ce qui nous séduit
- Balcon/Terrasse
- Calme
On vous en dit plus
Réglementations & éléments financiers
Les informations sur les risques auxquels ce bien est exposé sont disponibles sur le site Géorisques : www.georisques.gouv.fr
| Diagnostics |
|---|
Consommation énergie finale : C - 151 kWh/m²/an.
Montant estimé des dépenses annuelles d’énergie pour un usage standard : entre 820,00 € et 1 130,00 € /an (abonnement compris).
Prix moyen des énergies indexées au 01/01/2021.
| Éléments financiers |
|---|
Taxe foncière : 497,00 € /an
Détails de l’intérieur & de l’extérieur
| Pièce | Surface | Détail |
|---|---|---|
| 1x Entrée | 2 m² | Étage : Rez-de-jardin |
| 1x Chambre | 6.33 m² |
Étage : Rez-de-jardin Exposition : Sud Revêtement : Parquet |
| 1x Séjour/cuisine | 16.68 m² |
Étage : Rez-de-jardin Exposition : Sud Revêtement : Parquet Plafond : 2.7m |
| 1x Salle de bains / toilettes | 3.41 m² |
Étage : Rez-de-jardin Exposition : Sud |
| 1x Terrasse | 24.83 m² |
Étage : Rez-de-jardin Exposition : Sud Revêtement : Teck |
Prestations
Bâtiment & Copropriété
| Bâtiment |
|---|
-
Construit en : 1820
-
Type : Pierre
-
Nombre d'étages : 4
-
Niveau de qualité : Normal
| Copropriété |
|---|
Montant moyen annuel de la quote part de charges courantes : 1 228 €
Procédure en cours : Non
Rencontrez votre agence
Simulateur de financement
Calculez le montant des mensualités de votre prêt immobilier correspondant à l'emprunt que vous souhaitez effectuer.
Prix du bien HAI
390 000 €
€
par mois
Vous devez vendre pour acheter ?
Nos consultants immobiliers se tiennent à votre disposition pour réaliser une estimation de la valeur de votre bien. Toutes nos estimations sont offertes.
Je fais estimer mon bienUn lieu de vie à votre image
Junot vous fait visiter les quartiers dans lesquels nos agences vous accueillent, et vous présente les spécificités et bonnes adresses.
Parcourir les quartiers










