Faisons un tour d'horizon
Référence de l’annonce : 1110POIFAS
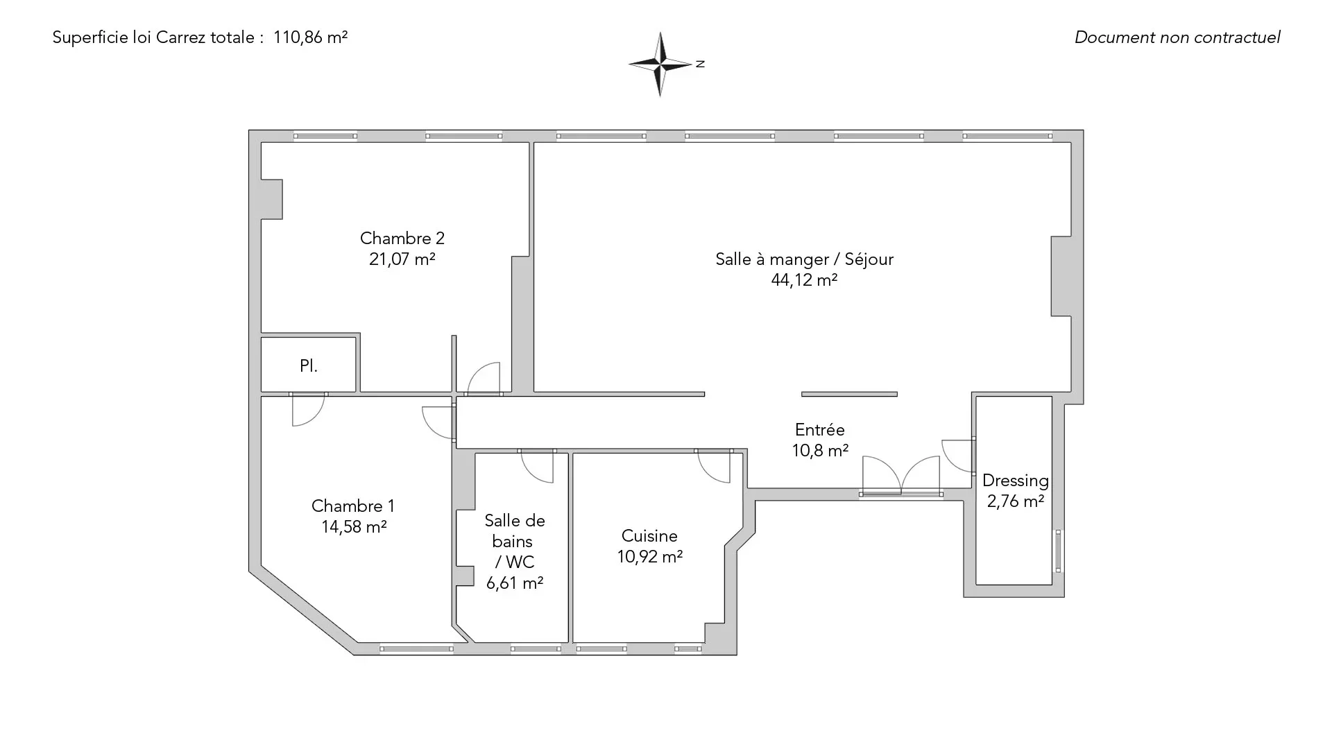
À proximité immédiate du marché Saint-Quentin, boulevard Magenta, au troisième étage d’un immeuble en pierre de taille avec ascenseur, cet appartement familial de 110,86m² loi Carrez bénéficie d’une double exposition est-ouest. L’entrée distribue une vaste pièce de vie, deux chambres, une cuisine indépendante ainsi qu’une salle de bains avec toilettes. Traversant et lumineux, il offre un cadre de vie agréable au cœur du 10ᵉ arrondissement.
Une cave complète ce bien.
- Habitable : 110,86 m²
- 5 pièces
- 3 chambres
- 1 salle de bains
- Étage 3/6
- Exposition Est, Ouest
- Bon état
Ce qui nous séduit
- Ascenseur
- Cave
On vous en dit plus
Réglementations & éléments financiers
Les informations sur les risques auxquels ce bien est exposé sont disponibles sur le site Géorisques : www.georisques.gouv.fr
| Diagnostics |
|---|
Consommation énergie finale : D - 193 kWh/m²/an.
Montant estimé des dépenses annuelles d’énergie pour un usage standard : entre 1 970,00 € et 2 670,00 € /an (abonnement compris).
Prix moyen des énergies indexées au 01/01/2021.
| Éléments financiers |
|---|
Taxe foncière : 1 573,00 € /an
Détails de l’intérieur & de l’extérieur
| Pièce | Surface | Détail |
|---|---|---|
| 1x Chambre | ||
| 1x Cave |
Étage : Sous-sol Revêtement : Terre battue |
|
| 1x Entrée | 10.8 m² |
Étage : 3ème Revêtement : Parquet |
| 1x Séjour | 44.12 m² |
Étage : 3ème Revêtement : Parquet |
| 1x Cuisine | 10.92 m² |
Étage : 3ème Revêtement : Carrelage |
| 1x Chambre | 14.58 m² |
Étage : 3ème Revêtement : Parquet |
| 1x Chambre | 21.07 m² |
Étage : 3ème Revêtement : Parquet |
| 1x Salle de bains / toilettes | 6.61 m² |
Étage : 3ème Revêtement : Carrelage |
| 1x Débarras | 2.76 m² |
Étage : 3ème Revêtement : Parquet |
Prestations
Bâtiment & Copropriété
| Bâtiment |
|---|
-
Construit en : 1890
-
Type : Pierre de taille
-
Nombre d'étages : 6
| Copropriété |
|---|
45 lots d'habitation
Montant moyen annuel de la quote part de charges courantes : 3 276 €
Procédure en cours : Non
Rencontrez votre agence
Simulateur de financement
Calculez le montant des mensualités de votre prêt immobilier correspondant à l'emprunt que vous souhaitez effectuer.
Prix du bien HAI
1 100 000 €
€
par mois
Vous devez vendre pour acheter ?
Nos consultants immobiliers se tiennent à votre disposition pour réaliser une estimation de la valeur de votre bien. Toutes nos estimations sont offertes.
Je fais estimer mon bienUn lieu de vie à votre image
Junot vous fait visiter les quartiers dans lesquels nos agences vous accueillent, et vous présente les spécificités et bonnes adresses.
Parcourir les quartiers













