Faisons un tour d'horizon
Référence de l’annonce : 3328BTLSLA
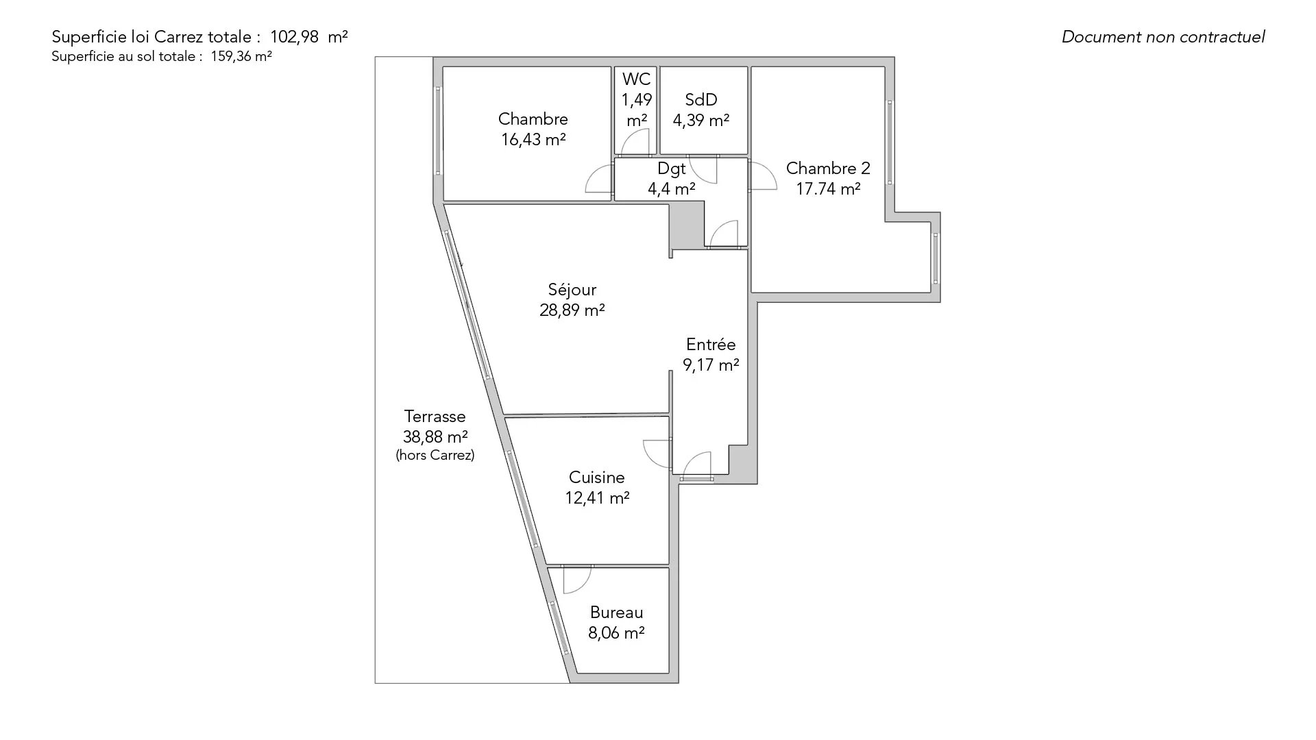
Situé dans une résidence de bon standing construite en 1967, le bien de 102,98m² Carrez est au septième et dernier étage par ascenseur. Il bénéficie d’une terrasse de 39m² de plain-pied sur le séjour. Aménagée et végétalisée elle est orientée Est, Sud et Ouest et offre des vues dégagées plein ciel et sans vis à vis.
L’appartement propose l’agencement suivant : une galerie d’entrée, une grande cuisine dînatoire donnant sur la terrasse, avec à sa suite une pièce d’environ 10m² alimentée en eau et pouvant faire office de chambre d’appoint, de bureau ou de buanderie. La galerie d'entrée ouvre sur le séjour et la terrasse. Dans la partie nuit nous avons deux belles chambres, l'une sur cour avec une vue Tour Eiffel, l’autre côté terrasse. Une salle de douche avec vasque. Une toilette séparée.
Le plan actuel est facilement modulable, notamment en trois vraies chambres.
Une cave au 1er sous-sol complète l’offre. Possibilité d'acquérir un emplacement de parking boxé au 1er sous-sol.
EXCLUSIVITÉ
- Habitable : 102,98 m² Total : 123,00 m²
- 5 pièces
- 2 chambres
- 1 salle de douche
- Étage 7/8
- Exposition Sud-est
- À rafraîchir
Ce qui nous séduit
- Vue exceptionnelle
- Balcon/Terrasse
- Adresse très recherchée
- Gardien
- Vue monument historique
- Lumineux
- Calme
- Traversant
- Ascenseur
- Cave
- Vue dégagée
On vous en dit plus
Réglementations & éléments financiers
Les informations sur les risques auxquels ce bien est exposé sont disponibles sur le site Géorisques : www.georisques.gouv.fr
| Diagnostics |
|---|
Consommation énergie finale : E - 286 kWh/m²/an.
Montant estimé des dépenses annuelles d’énergie pour un usage standard : entre 2 390,00 € et 3 280,00 € /an (abonnement compris).
Prix moyen des énergies indexées au 01/01/2021.
| Éléments financiers |
|---|
Détails de l’intérieur & de l’extérieur
| Pièce | Surface | Détail |
|---|---|---|
| 1x Cave | ||
| 1x Box | Étage : -1 | |
| 1x Galerie | 9.17 m² |
Étage : 7ème Exposition : Sud-est Revêtement : Parquet |
| 1x Cuisine | 12.41 m² |
Étage : 7ème Exposition : Sud-est Revêtement : Mosaïque |
| 1x Bureau | 8.06 m² |
Étage : 7ème Exposition : Sud-est |
| 1x Séjour | 28.89 m² |
Étage : 7ème Exposition : Sud-est Revêtement : Parquet Plafond : 2.7m |
| 1x Terrasse |
Étage : 7ème Exposition : Sud-est |
|
| 1x Dégagement | 4.4 m² |
Étage : 7ème Revêtement : Parquet |
| 1x Chambre | 16.43 m² |
Étage : 7ème Exposition : Nord Revêtement : Parquet |
| 1x Chambre | 17.74 m² |
Étage : 7ème Exposition : Sud-est Revêtement : Parquet |
| 1x Salle de douche | 4.39 m² |
Étage : 7ème Revêtement : Carrelage |
| 1x Toilettes | 1.49 m² |
Étage : 7ème Revêtement : Carrelage |
Prestations
Bâtiment & Copropriété
| Bâtiment |
|---|
-
Construit en : 1967
-
Type : Béton armé
-
Nombre d'étages : 8
-
Niveau de qualité : Standing
| Copropriété |
|---|
Montant moyen annuel de la quote part de charges courantes : 8 160 €
Procédure en cours : Non
Rencontrez votre agence
Simulateur de financement
Calculez le montant des mensualités de votre prêt immobilier correspondant à l'emprunt que vous souhaitez effectuer.
Prix du bien HAI
2 400 000 €
€
par mois
Vous devez vendre pour acheter ?
Nos consultants immobiliers se tiennent à votre disposition pour réaliser une estimation de la valeur de votre bien. Toutes nos estimations sont offertes.
Je fais estimer mon bienUn lieu de vie à votre image
Junot vous fait visiter les quartiers dans lesquels nos agences vous accueillent, et vous présente les spécificités et bonnes adresses.
Parcourir les quartiers











