Faisons un tour d'horizon
Référence de l’annonce : 3260GREGEN
En première ligne du Champ de Mars, cet appartement d'exception bénéficie d'une vue imprenable sur la tour Eiffel et le dôme des Invalides.
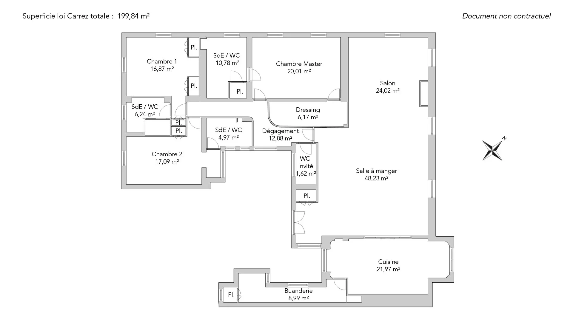
Au dernier étage d'un somptueux immeuble avec ascenseur et concierge, cet appartement entièrement rénové de 199,84m² loi Carrez comporte une triple pièce de vie donnant directement sur le Champ de Mars avec sa cuisine ouverte, une master dotée d'une vue sur la tour Eiffel et d'une salle de bains, de toilettes et d'un dressing, deux chambres en suite avec leur salle de douche et toilettes, une buanderie et des toilettes indépendantes.
Ce bien est équipé du chauffage au sol et de la climatisation.
Une grande cave complète cette offre rare et unique dans le quartier.
EXCLUSIVITÉ.
- Habitable : 199,84 m² Total : 200,00 m²
- 8 pièces
- 3 chambres
- 1 salle de bains
- 2 salles de douche
- Cheminée
- Exposition Est, Sud-ouest, Nord-ouest
- Neuf
Ce qui nous séduit
- Vue exceptionnelle
- Adresse très recherchée
- Prestations exceptionnelles
- Dernier étage
- Gardien
- Vue monument historique
- Lumineux
- Calme
- Traversant
- Ascenseur
- Cave
- Vue dégagée
On vous en dit plus
Réglementations & éléments financiers
Les informations sur les risques auxquels ce bien est exposé sont disponibles sur le site Géorisques : www.georisques.gouv.fr
| Diagnostics |
|---|
Consommation énergie finale : E - 305 kWh/m²/an.
Montant estimé des dépenses annuelles d’énergie pour un usage standard : entre 4 960,00 € et 6 760,00 € /an (abonnement compris).
| Éléments financiers |
|---|
Détails de l’intérieur & de l’extérieur
| Pièce | Surface | Détail |
|---|---|---|
| 1x Cave | ||
| 1x Salle à manger | 48.23 m² | Étage : 4ème |
| 1x Salon | 24.02 m² | Étage : 4ème |
| 1x Dégagement | 12.88 m² | Étage : 4ème |
| 1x Buanderie | 8.99 m² | Étage : 4ème |
| 1x Chambre | 20.01 m² | Étage : 4ème |
| 1x Chambre | 17.09 m² | Étage : 4ème |
| 1x Chambre | 16.87 m² | Étage : 4ème |
| 1x Toilettes | 1.62 m² | Étage : 4ème |
| 1x Salle de bains / toilettes | 10.78 m² | Étage : 4ème |
| 1x Dressing | 6.17 m² | Étage : 4ème |
| 1x Cuisine | 21.97 m² | Étage : 4ème |
| 1x Salle de douche / toilettes | 6.24 m² | Étage : 4ème |
| 1x Salle de douche / toilettes | 4.97 m² | Étage : 4ème |
Prestations
Bâtiment & Copropriété
| Bâtiment |
|---|
-
Construit en : 1911
-
Type : Pierre de taille
-
Nombre d'étages : 4
-
Niveau de qualité : Standing
| Copropriété |
|---|
12 lots d'habitation
Montant moyen annuel de la quote part de charges courantes : 11 436 €
Procédure en cours : Non
Rencontrez votre agence
Simulateur de financement
Calculez le montant des mensualités de votre prêt immobilier correspondant à l'emprunt que vous souhaitez effectuer.
Prix du bien HAI
7 990 000 €
€
par mois
Vous devez vendre pour acheter ?
Nos consultants immobiliers se tiennent à votre disposition pour réaliser une estimation de la valeur de votre bien. Toutes nos estimations sont offertes.
Je fais estimer mon bienUn lieu de vie à votre image
Junot vous fait visiter les quartiers dans lesquels nos agences vous accueillent, et vous présente les spécificités et bonnes adresses.
Parcourir les quartiers




