• Vendu

Appartement
Paris 6e - RUE DU CHERCHE-MIDI

Estimer mon bien

Faisons un tour d'horizon

Référence de l’annonce : OA1868CHMSAR

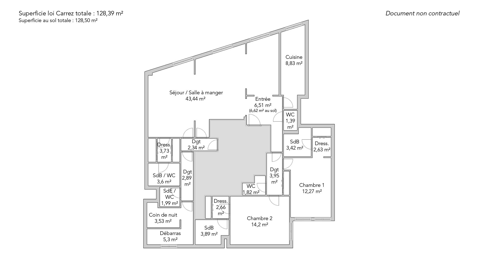
Rue du Cherche-Midi, au cœur du 6e arrondissement, dans un immeuble de six étages, ce superbe appartement de 128,39m² loi Carrez, issu de la réunion d’un appartement et d’un studio, se distingue par ses volumes généreux et sa distribution idéale.
Dès l’entrée, le regard est attiré par le double séjour baigné de lumière naturelle, prolongé par de larges fenêtres. Des toilettes invités. Trois chambres, toutes bien agencées et dotées de vues apaisantes, composent l’espace nuit, sont accompagnées de trois salles de bains dont une avec des toilettes, d’une salle de douche avec des toilettes, et de toilettes séparées, répondant avec aisance aux exigences d’une vie familiale confortable.
L’appartement conjugue fonctionnalité et élégance, et offre des espaces à vivre fluides, des circulations agréables et un potentiel rare de rénovation et de personnalisation.
Une place de parking en supplément pour 30 000€ vient compléter ce bien d’exception, des atouts précieux et rares dans ce quartier recherché. Et une cave.
EXCLUSIVITÉ.

  • Habitable : 128,39 m² Total : 128,50 m²
  • 5 pièces
  • 3 chambres
  • 3 salles de bains
  • 1 salle de douche
  • Étage 4/6
  • Exposition Nord-ouest
  • À rénover

Ce qui nous séduit

  • Adresse très recherchée
  • Lumineux
  • Traversant
  • Parking
  • Ascenseur
  • Cave

    Vous devez vendre pour acheter ?

    Nos consultants immobiliers se tiennent à votre disposition pour réaliser une estimation de la valeur de votre bien. Toutes nos estimations sont offertes.

    Je fais estimer mon bien

    Un lieu de vie à votre image

    Junot vous fait visiter les quartiers dans lesquels nos agences vous accueillent, et vous présente les spécificités et bonnes adresses.

    Parcourir les quartiers
Je souhaite visiter
Souhaitez-vous vraiment quitter la page ?
Souhaitez-vous vraiment quitter la page ?
Souhaitez-vous vraiment quitter la page ?
Souhaitez-vous vraiment quitter la page ?
Souhaitez-vous vraiment quitter la page ?
Souhaitez-vous vraiment quitter la page ?
Souhaitez-vous vraiment quitter la page ?
Souhaitez-vous vraiment quitter la page ?
Souhaitez-vous vraiment quitter la page ?
Souhaitez-vous vraiment quitter la page ?
Souhaitez-vous vraiment quitter la page ?