Faisons un tour d'horizon
Référence de l’annonce : 2228PASDRI
Idéalement situé au cœur du quartier recherché de La Muette Passy, cet appartement familial de 154,55m² loi Carrez se trouve au deuxième étage par ascenseur d’un bel immeuble en pierre de taille datant de 1907.
Il s’ouvre sur une vaste galerie d’entrée qui distribue une triple réception d’angle bordée d'un balcon filant et baignée de lumière, aux beaux volumes et aux éléments d’époque préservés — moulures et cheminées. La grande cuisine indépendante et les toilettes invités complètent la partie réception.
Le coin nuit, bien distinct, comprend trois chambres spacieuses, une salle de bains, une salle de douche, des toilettes séparées ainsi qu’une buanderie.
Son plan parfaitement équilibré, ses vues dégagées et sa situation privilégiée en font une adresse rare au cœur du 16eme arrondissement.
Une grande cave complète ce bien.
EXCLUSIVITÉ
- Habitable : 154,55 m²
- 6 pièces
- 3 chambres
- 1 salle de bains
- 1 salle de douche
- Étage 2/7
- Cheminée
- Exposition Sud-ouest
- Bon état
Ce qui nous séduit
- Balcon/Terrasse
- Adresse très recherchée
- Lumineux
- Calme
- Traversant
- Ascenseur
- Cave
- Vue dégagée
On vous en dit plus
Réglementations & éléments financiers
Les informations sur les risques auxquels ce bien est exposé sont disponibles sur le site Géorisques : www.georisques.gouv.fr
| Diagnostics |
|---|
Consommation énergie finale : E - 273 kWh/m²/an.
Montant estimé des dépenses annuelles d’énergie pour un usage standard : entre 3 770,00 € et 5 120,00 € /an (abonnement compris).
Prix moyen des énergies indexées au 01/01/2021.
| Éléments financiers |
|---|
Détails de l’intérieur & de l’extérieur
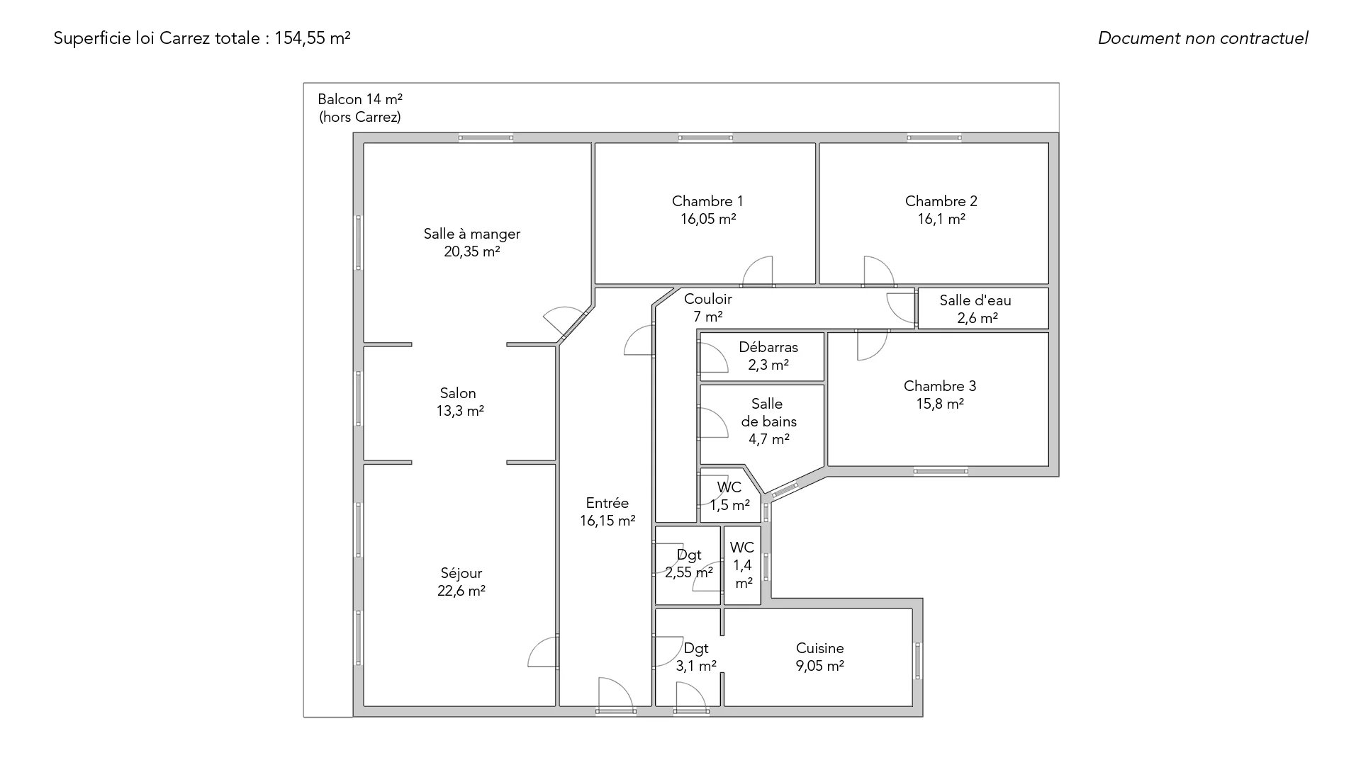
| Pièce | Surface | Détail |
|---|---|---|
| 1x Cave | ||
| 1x Entrée | 16.15 m² | Étage : 2ème |
| 1x Séjour | 22.6 m² |
Étage : 2ème Exposition : Sud-ouest |
| 1x Balcon | 14 m² | Étage : 2ème |
| 1x Salon | 13.3 m² | Étage : 2ème |
| 1x Salle à manger | 20.35 m² | Étage : 2ème |
| 1x Cuisine | 9.05 m² | Étage : 2ème |
| 1x Chambre | 16.05 m² | Étage : 2ème |
| 1x Chambre | 16.1 m² | Étage : 2ème |
| 1x Chambre | 15.8 m² | Étage : 2ème |
| 1x Salle de bains | 4.7 m² | Étage : 2ème |
| 1x Salle de douche | 2.6 m² | Étage : 2ème |
| 1x Toilettes | 1.4 m² | Étage : 2ème |
| 1x Toilettes | 1.5 m² | Étage : 2ème |
| 1x Buanderie | 2.3 m² | Étage : 2ème |
| 1x Couloir | 7 m² | Étage : 2ème |
| 1x Dégagement | 3.1 m² | Étage : 2ème |
| 1x Dégagement | 2.55 m² | Étage : 2ème |
Prestations
Bâtiment & Copropriété
| Bâtiment |
|---|
-
Construit en : 1907
-
Nombre d'étages : 7
| Copropriété |
|---|
14 lots d'habitation
Montant moyen annuel de la quote part de charges courantes : 9 480 €
Procédure en cours : Non
Rencontrez votre agence
Simulateur de financement
Calculez le montant des mensualités de votre prêt immobilier correspondant à l'emprunt que vous souhaitez effectuer.
Prix du bien HAI
2 200 000 €
€
par mois
Vous devez vendre pour acheter ?
Nos consultants immobiliers se tiennent à votre disposition pour réaliser une estimation de la valeur de votre bien. Toutes nos estimations sont offertes.
Je fais estimer mon bienUn lieu de vie à votre image
Junot vous fait visiter les quartiers dans lesquels nos agences vous accueillent, et vous présente les spécificités et bonnes adresses.
Parcourir les quartiers











