Faisons un tour d'horizon
Référence de l’annonce : 2864MONRAS
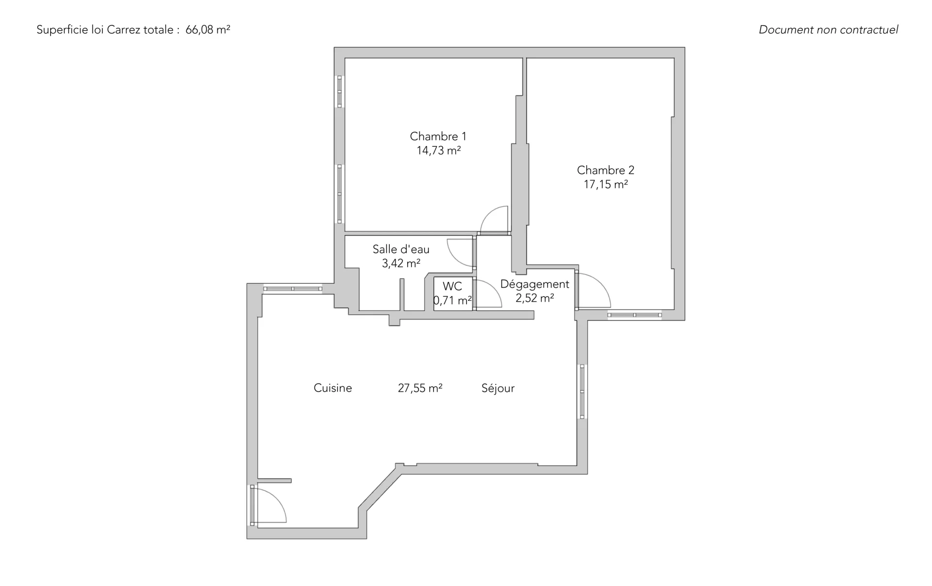
Idéalement situé en plein cœur des Batignolles, au sein d'une très jolie copropriété bien entretenue et gardiennée, bel appartement de 66,08m² loi Carrez situé au deuxième étage par ascenseur.
Au calme absolu et en parfait état, il a récemment été rénové avec goût et élégance.
Son plan compact offre une belle pièce de vie avec cuisine ouverte, deux grandes chambres avec dressing, une salle de douche et des toilettes séparées.
Une cave complète ce bien.
Local vélos.
EXCLUSIVITÉ.
- Habitable : 66,05 m²
- 3 pièces
- 2 chambres
- 1 salle de douche
- Étage 2/6
- Cheminée
- Exposition Nord-ouest
- Excellent état
Ce qui nous séduit
- Adresse très recherchée
- Gardien
- Calme
- Ascenseur
- Cave
On vous en dit plus
Réglementations & éléments financiers
Les informations sur les risques auxquels ce bien est exposé sont disponibles sur le site Géorisques : www.georisques.gouv.fr
| Diagnostics |
|---|
Consommation énergie finale : D - 226 kWh/m²/an.
Montant estimé des dépenses annuelles d’énergie pour un usage standard : entre 1 470,00 € et 2 040,00 € /an (abonnement compris).
Prix moyen des énergies indexées au 01/01/2021.
| Éléments financiers |
|---|
Taxe foncière : 1 470,00 € /an
Détails de l’intérieur & de l’extérieur
| Pièce | Surface | Détail |
|---|---|---|
| 1x Cave | ||
| 1x Séjour/cuisine | 27.55 m² | Étage : 1er |
| 1x Dégagement | 2.52 m² | Étage : 1er |
| 1x Toilettes | 0.71 m² | Étage : 1er |
| 1x Salle de douche | 3.42 m² | Étage : 1er |
| 1x Chambre | 14.73 m² | Étage : 1er |
| 1x Chambre | 17.15 m² | Étage : 1er |
Prestations
Bâtiment & Copropriété
| Bâtiment |
|---|
-
Construit en : 1895
-
Nombre d'étages : 6
| Copropriété |
|---|
251 lots d'habitation
Montant moyen annuel de la quote part de charges courantes : 1 860 €
Procédure en cours : Non
Rencontrez votre agence
Simulateur de financement
Calculez le montant des mensualités de votre prêt immobilier correspondant à l'emprunt que vous souhaitez effectuer.
Prix du bien HAI
800 000 €
€
par mois
Vous devez vendre pour acheter ?
Nos consultants immobiliers se tiennent à votre disposition pour réaliser une estimation de la valeur de votre bien. Toutes nos estimations sont offertes.
Je fais estimer mon bienUn lieu de vie à votre image
Junot vous fait visiter les quartiers dans lesquels nos agences vous accueillent, et vous présente les spécificités et bonnes adresses.
Parcourir les quartiers










