Faisons un tour d'horizon
Référence de l’annonce : 3499MARLAC09
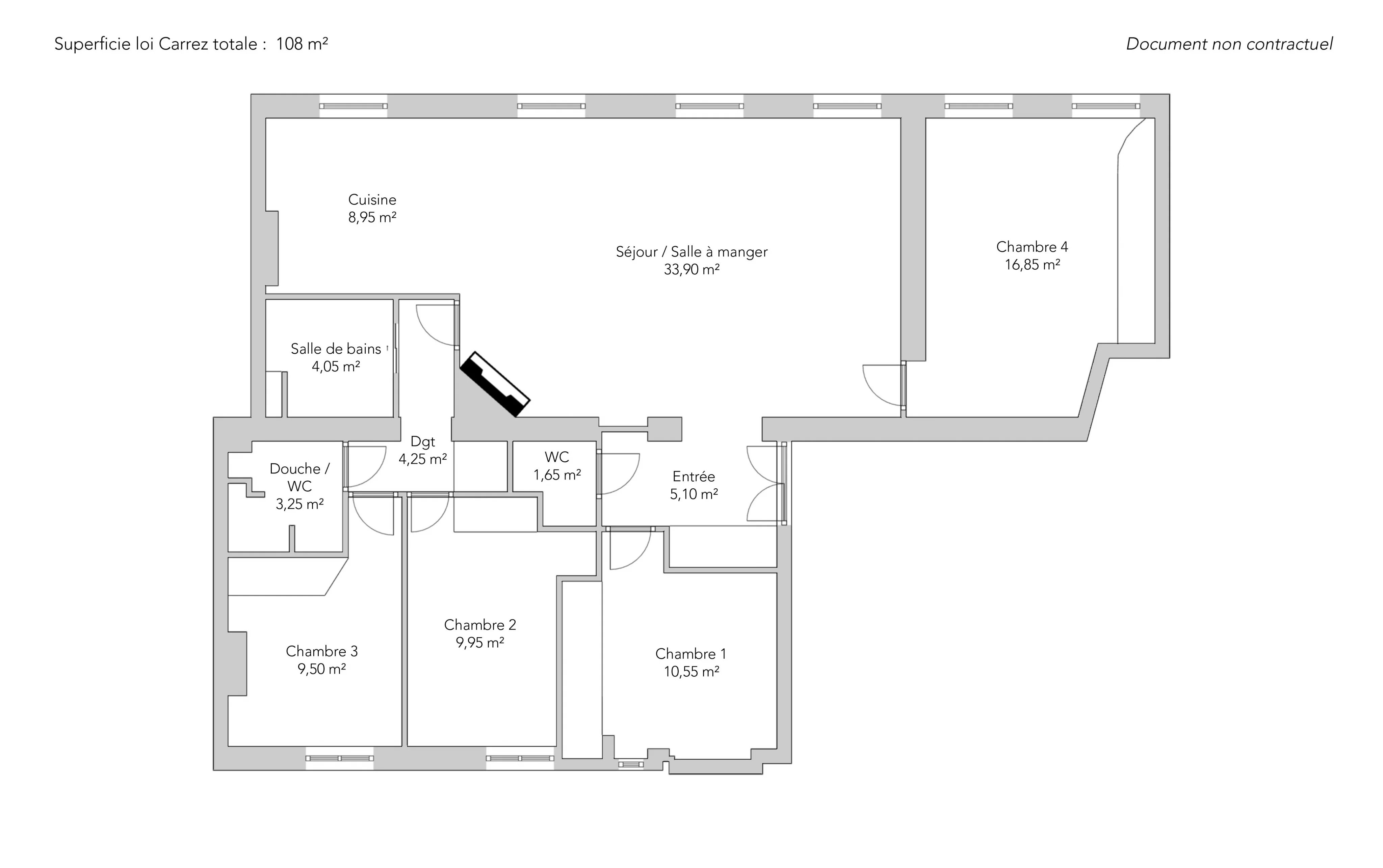
Au sein d’un bel immeuble en pierre de taille très bien entretenu, magnifique appartement familial traversant de 108m² loi Carrez.
Entièrement refait avec goût et élégance, il offre des prestations de qualité. Traversant, il comprend une entrée avec placards sur mesure, un vaste séjour de 45m² avec cinq fenêtres ainsi que deux cheminées fonctionnelles avec une cuisine ouverte, donnant sur un balcon, quatre chambres, une salle de bains, une salle de douche avec toilettes et des toilettes invités avec lave-mains.
Le charme de l’ancien a été préservé (parquet, jolies moulures et cheminées). Une cave de 20m² complète cette offre.
- Habitable : 108,00 m² Total : 110,00 m²
- 6 pièces
- 4 chambres
- 1 salle de bains
- 1 salle de douche
- Étage 1/6
- Cheminée
- Exposition Ouest
- Excellent état
Ce qui nous séduit
- Balcon/Terrasse
- Calme
- Traversant
- Ascenseur
- Cave
On vous en dit plus
Réglementations & éléments financiers
Les informations sur les risques auxquels ce bien est exposé sont disponibles sur le site Géorisques : www.georisques.gouv.fr
| Diagnostics |
|---|
Consommation énergie finale : C - 125.2 kWh/m²/an.
Montant estimé des dépenses annuelles d’énergie pour un usage standard : entre 2 360,00 € et 3 210,00 € /an (abonnement compris).
Prix moyen des énergies indexées au 01/01/2023.
| Éléments financiers |
|---|
Taxe foncière : 1 861,00 € /an
Détails de l’intérieur & de l’extérieur
| Pièce | Surface | Détail |
|---|---|---|
| 1x Cave | 10.8 m² |
Étage : Sous-sol Revêtement : Terre battue |
| 1x Entrée | 5.1 m² |
Étage : 1er Revêtement : Parquet |
| 1x Séjour | 33.9 m² |
Étage : 1er Exposition : Ouest Revêtement : Parquet Plafond : 2.8m |
| 1x Cuisine | 8.95 m² |
Étage : 1er Revêtement : Parquet |
| 1x Balcon | 1.45 m² | Étage : 1er |
| 1x Chambre | 10.55 m² |
Étage : 1er Revêtement : Parquet |
| 1x Chambre | 9.95 m² |
Étage : 1er Revêtement : Parquet |
| 1x Chambre | 9.5 m² |
Étage : 1er Revêtement : Parquet |
| 1x Chambre | 16.85 m² |
Étage : 1er Revêtement : Parquet |
| 1x Salle de douche / toilettes | 3.25 m² |
Étage : 1er Revêtement : Carrelage |
| 1x Salle de bains | 4.05 m² |
Étage : 1er Revêtement : Carrelage |
| 1x Dégagement | 4.25 m² |
Étage : 1er Revêtement : Parquet |
| 1x Toilettes | 1.65 m² |
Étage : 1er Revêtement : Carrelage |
Prestations
Bâtiment & Copropriété
| Bâtiment |
|---|
-
Construit en : 1870
-
Type : Pierre de taille
-
Nombre d'étages : 6
-
Niveau de qualité : Standing
| Copropriété |
|---|
53 lots d'habitation
Montant moyen annuel de la quote part de charges courantes : 3 000 €
Procédure en cours : Non
Rencontrez votre agence
Simulateur de financement
Calculez le montant des mensualités de votre prêt immobilier correspondant à l'emprunt que vous souhaitez effectuer.
Prix du bien HAI
1 295 000 €
€
par mois
Vous devez vendre pour acheter ?
Nos consultants immobiliers se tiennent à votre disposition pour réaliser une estimation de la valeur de votre bien. Toutes nos estimations sont offertes.
Je fais estimer mon bienUn lieu de vie à votre image
Junot vous fait visiter les quartiers dans lesquels nos agences vous accueillent, et vous présente les spécificités et bonnes adresses.
Parcourir les quartiers











