Faisons un tour d'horizon
Référence de l’annonce : 3321ABBBOI
Ancien atelier comme une maison donnant sur une terrasse privative en pleine propriété au calme absolu et à l'abri des regards, situé au cœur du village Ramey proche du métro et des commerces.
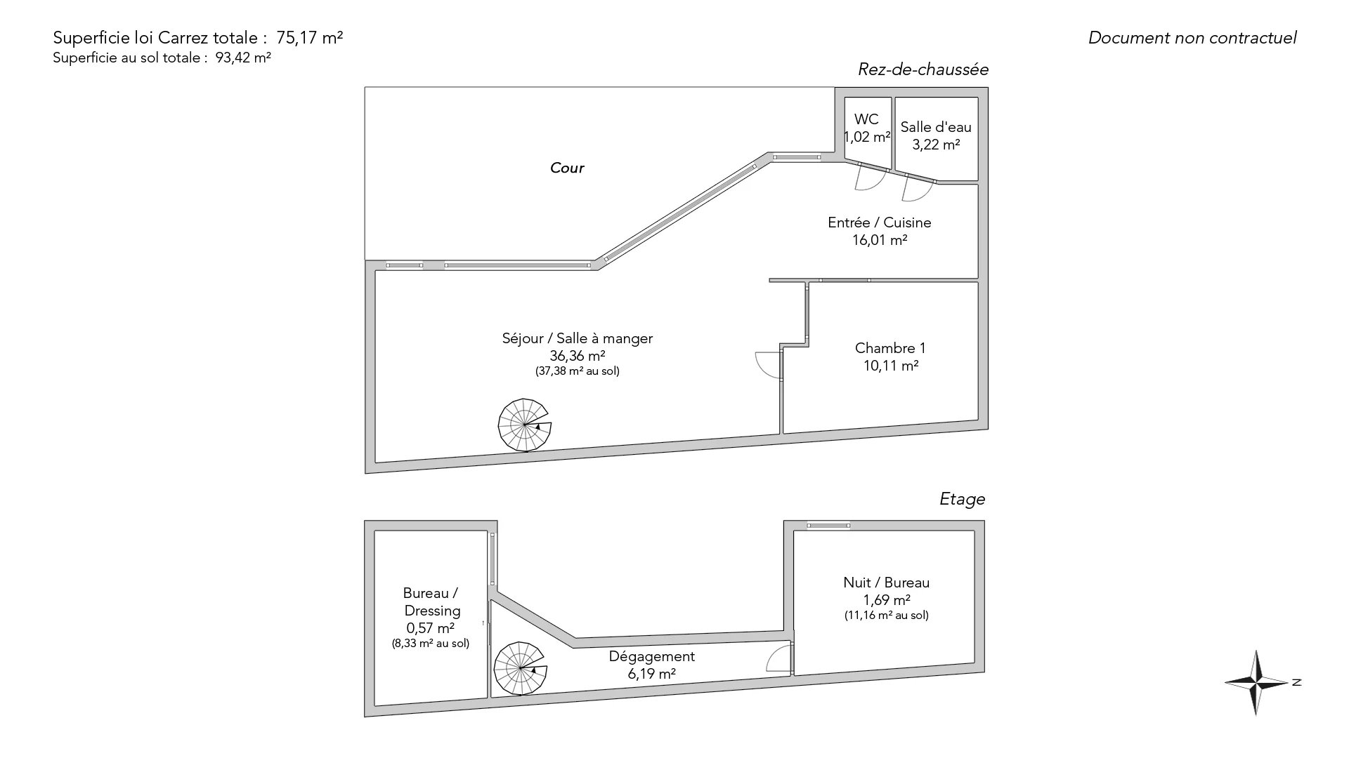
Ce bien très lumineux et bénéficiant d'une belle hauteur sous plafond d'environ 5 mètres est composé d'une entrée, d'une cuisine ouverte face à la terrasse, d'un séjour-salle à manger, d'une chambre et d'un bureau accessible par mezzanine, d'un espace bureau ou dressing, d'une salle de douche et de toilettes séparées.
Profession libérale possible
Une cave complète ce bien.
- Habitable : 75,17 m² Total : 93,42 m²
- 4 pièces
- 2 chambres
- 1 salle de douche
- Exposition Ouest
- À rafraîchir
Ce qui nous séduit
- Lumineux
- Calme
- Cave
On vous en dit plus
Réglementations & éléments financiers
Les informations sur les risques auxquels ce bien est exposé sont disponibles sur le site Géorisques : www.georisques.gouv.fr
| Diagnostics |
|---|
Consommation énergie finale : C - 147 kWh/m²/an.
Logement à consommation énergétique excessive : classe F
Montant estimé des dépenses annuelles d’énergie pour un usage standard : entre 1 450,00 € et 1 980,00 € /an (abonnement compris).
Prix moyen des énergies indexées au 01/01/2021.
| Éléments financiers |
|---|
Taxe foncière : 804,00 € /an
Détails de l’intérieur & de l’extérieur
| Pièce | Surface | Détail |
|---|---|---|
| 1x Cave | ||
| 1x Cuisine | 16.01 m² |
Étage : Rez-de-chaussée Revêtement : Carrelage |
| 1x Séjour | 36.36 m² |
Étage : Rez-de-chaussée Exposition : Ouest Revêtement : Carrelage |
| 1x Toilettes | 1.02 m² |
Étage : Rez-de-chaussée Revêtement : Carrelage |
| 1x Chambre | 10.11 m² |
Étage : Rez-de-chaussée Revêtement : Carrelage |
| 1x Salle de douche | 3.22 m² |
Étage : Rez-de-chaussée Revêtement : Carrelage |
| 1x Cour | Étage : Rez-de-chaussée | |
| 1x Mezzanine | 6.19 m² |
Étage : 1er Revêtement : Parquet |
| 1x Bureau | 0.57 m² |
Étage : 1er Revêtement : Parquet |
| 1x Chambre | 1.69 m² |
Étage : 1er Revêtement : Parquet |
Prestations
Bâtiment & Copropriété
| Bâtiment |
|---|
-
Construit en : 1900
-
Nombre d'étages : 6
-
Niveau de qualité : Normal
| Copropriété |
|---|
Montant moyen annuel de la quote part de charges courantes : 2 136 €
Procédure en cours : Non
Rencontrez votre agence
Simulateur de financement
Calculez le montant des mensualités de votre prêt immobilier correspondant à l'emprunt que vous souhaitez effectuer.
Prix du bien HAI
880 000 €
€
par mois
Vous devez vendre pour acheter ?
Nos consultants immobiliers se tiennent à votre disposition pour réaliser une estimation de la valeur de votre bien. Toutes nos estimations sont offertes.
Je fais estimer mon bienUn lieu de vie à votre image
Junot vous fait visiter les quartiers dans lesquels nos agences vous accueillent, et vous présente les spécificités et bonnes adresses.
Parcourir les quartiers










