Faisons un tour d'horizon
Référence de l’annonce : 2829TERLAL
Étage élevé. Charme et volumes sous les toits.
Situé au septième étage d’un immeuble haussmannien de grand standing, cet appartement atypique séduit par son charme, sa luminosité et ses beaux volumes.
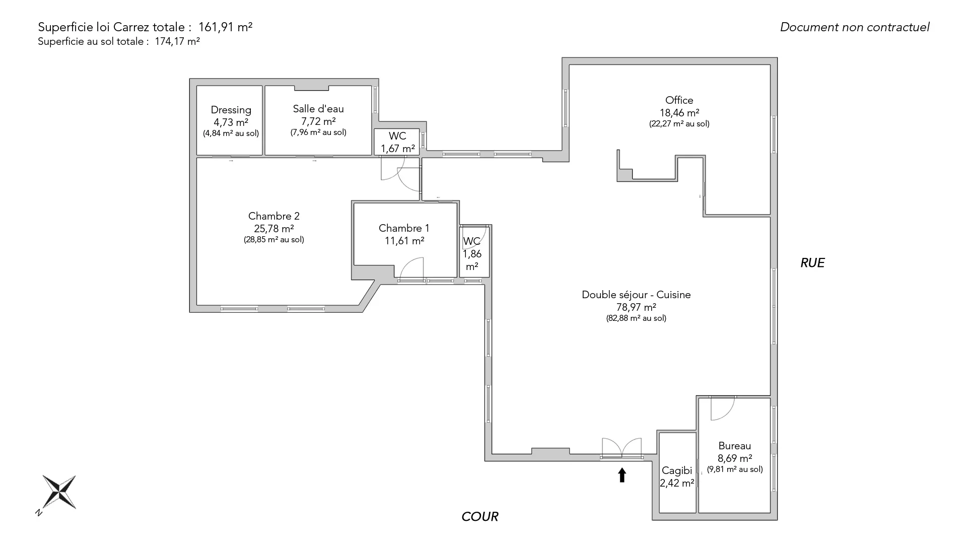
D’une surface de 161,91m² loi Carrez, il comporte un vaste double séjour avec cuisine ouverte de 78,97m², véritable pièce de vie conviviale et baignée de lumière, offrant une vue dégagée sur les toits de Paris.
L’espace nuit comprend trois chambres dont une master suite avec une grande salle de douche et deux toilettes séparées.
Le bien bénéficie d’une climatisation réversible et de prestations soignées. Il est prêt à vivre.
L’immeuble, parfaitement entretenu, dispose de belles parties communes, d’un gardien, d’un local à vélos et d’une cave.
Une adresse prisée, un cadre élégant et un bien rare en étage élevé, entre ciel et ville.
- Habitable : 161,91 m² Total : 174,85 m²
- 4 pièces
- 3 chambres
- 1 salle de douche
- Étage 7/8
- Exposition Sud-ouest
- Excellent état
Ce qui nous séduit
- Adresse très recherchée
- Gardien
- Vue monument historique
- Calme
- Ascenseur
- Cave
On vous en dit plus
Réglementations & éléments financiers
Les informations sur les risques auxquels ce bien est exposé sont disponibles sur le site Géorisques : www.georisques.gouv.fr
| Diagnostics |
|---|
Consommation énergie finale : B - 83.8 kWh/m²/an.
Montant estimé des dépenses annuelles d’énergie pour un usage standard : entre 1 520,00 € et 2 070,00 € /an (abonnement compris).
Prix moyen des énergies indexées au 01/01/2021.
| Éléments financiers |
|---|
Taxe foncière : 3 733,00 € /an
Détails de l’intérieur & de l’extérieur
| Pièce | Surface | Détail |
|---|---|---|
| 1x Séjour/cuisine | 78.97 m² | |
| 1x Chambre | 25.78 m² | |
| 1x Chambre | 11.61 m² | |
| 1x Chambre | 8.69 m² | |
| 1x Office | 18.46 m² | |
| 1x Dressing | 4.73 m² | |
| 1x Toilettes | 1.86 m² | |
| 1x Salle de douche | 7.72 m² | |
| 1x Toilettes | 1.67 m² | |
| 1x Dégagement | 2.42 m² | |
| 1x Cave |
Prestations
Bâtiment & Copropriété
| Bâtiment |
|---|
-
Construit en : 1911
-
Nombre d'étages : 8
| Copropriété |
|---|
Montant moyen annuel de la quote part de charges courantes : 6 000 €
Procédure en cours : Non
Rencontrez votre agence
Simulateur de financement
Calculez le montant des mensualités de votre prêt immobilier correspondant à l'emprunt que vous souhaitez effectuer.
Prix du bien HAI
1 990 000 €
€
par mois
Vous devez vendre pour acheter ?
Nos consultants immobiliers se tiennent à votre disposition pour réaliser une estimation de la valeur de votre bien. Toutes nos estimations sont offertes.
Je fais estimer mon bienUn lieu de vie à votre image
Junot vous fait visiter les quartiers dans lesquels nos agences vous accueillent, et vous présente les spécificités et bonnes adresses.
Parcourir les quartiers











