
Faisons un tour d'horizon
Référence de l’annonce : 5731JUNBEA
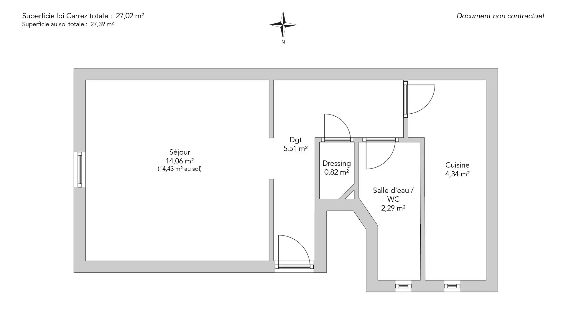
Au pied de la butte Montmartre, au sein d'un immeuble en pierre de taille bien entretenu, bel appartement de 27,02m² loi Carrez et 27,39m² au sol.
Il comprend une entrée, un séjour exposé est, un dressing, une cuisine séparée et une salle de douche avec toilettes. Cet appartement bénéficie de beaux volumes avec trois mètres de hauteur sous plafond.
Emplacement recherché à proximité immédiate du métro Jules Joffrin et des commerces de la rue du Poteau.
Une cave complète ce bien.
EXCLUSIVITÉ.
- Habitable : 27,02 m² Total : 27,39 m²
- 1 pièce
- suite
- 1 salle de douche
- Exposition Est
- À rafraîchir
Ce qui nous séduit
- Adresse très recherchée
- Calme
- Cave
On vous en dit plus
Réglementations & éléments financiers
Les informations sur les risques auxquels ce bien est exposé sont disponibles sur le site Géorisques : www.georisques.gouv.fr
Diagnostics |
---|
Consommation énergie finale : D - 215 kWh/m²/an.
Logement à consommation énergétique excessive : classe G
Montant estimé des dépenses annuelles d’énergie pour un usage standard : entre 1 070,00 € et 1 460,00 € /an (abonnement compris).
Prix moyen des énergies indexées au 01/01/2021.
Éléments financiers |
---|
Taxe foncière : 497,00 € /an
Détails de l’intérieur & de l’extérieur
Pièce | Surface | Détail |
---|---|---|
1x Cave | ||
1x Entrée | 5.51 m² | Étage : Rez-de-chaussée |
1x Dressing | 0.82 m² | Étage : Rez-de-chaussée |
1x Séjour | 14.06 m² |
Étage : Rez-de-chaussée Exposition : Est |
1x Salle de douche / toilettes | 2.29 m² | Étage : Rez-de-chaussée |
1x Cuisine | 4.34 m² | Étage : Rez-de-chaussée |
Prestations
Bâtiment & Copropriété
Bâtiment |
---|
-
Construit en : 1912
-
Type : Pierre de taille
-
Nombre d'étages : 6
Copropriété |
---|
Montant moyen annuel de la quote part de charges courantes : 933 €
Procédure en cours : Non
Rencontrez votre agence

Simulateur de financement
Calculez le montant des mensualités de votre prêt immobilier correspondant à l'emprunt que vous souhaitez effectuer.
Prix du bien HAI
220 000 €
€
par mois
Vous devez vendre pour acheter ?
Nos consultants immobiliers se tiennent à votre disposition pour réaliser une estimation de la valeur de votre bien. Toutes nos estimations sont offertes.
Je fais estimer mon bienUn lieu de vie à votre image
Junot vous fait visiter les quartiers dans lesquels nos agences vous accueillent, et vous présente les spécificités et bonnes adresses.
Parcourir les quartiers