Faisons un tour d'horizon
Référence de l’annonce : 2830MONVIQ
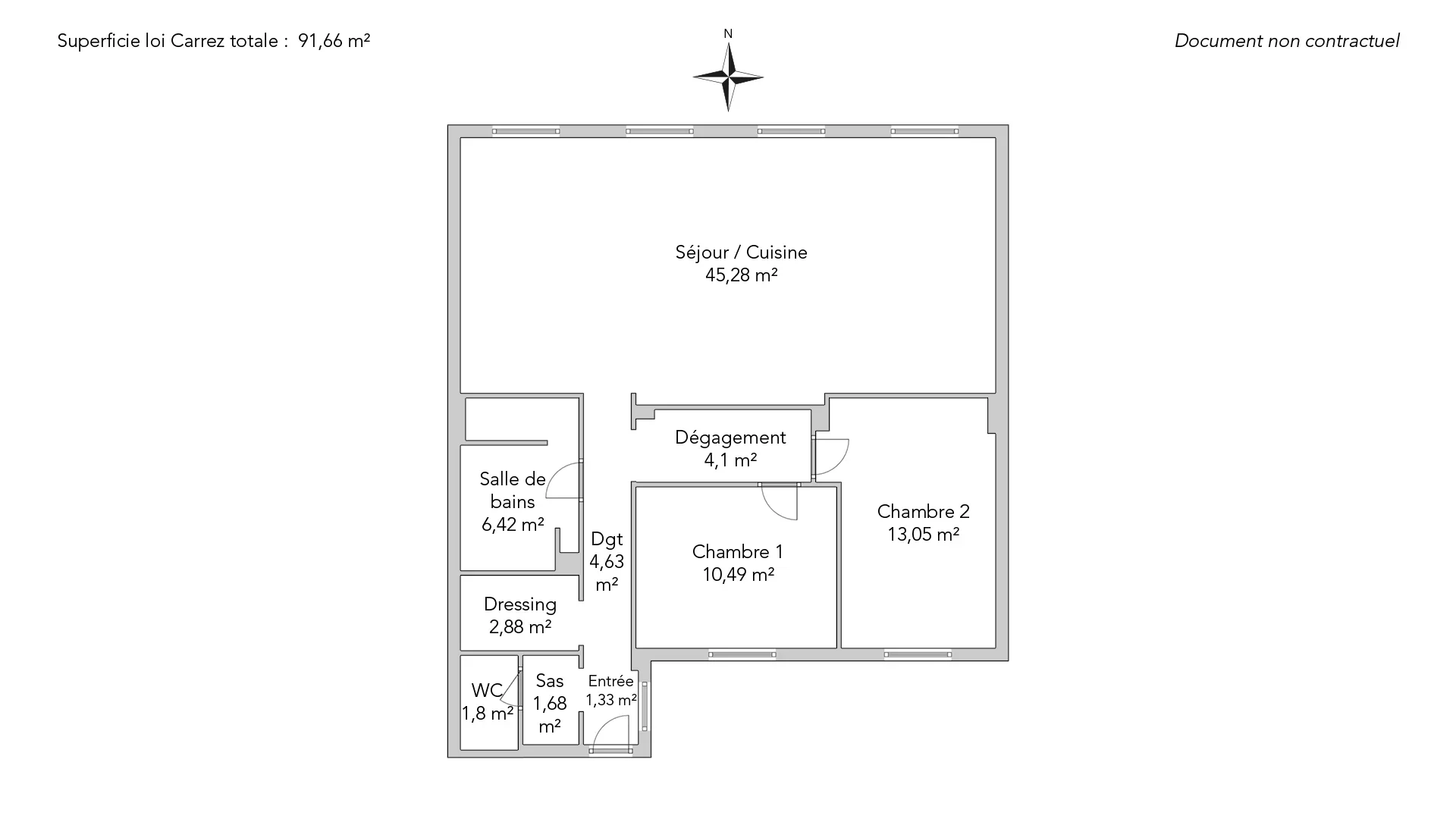
Idéalement situé rue Jean Mermoz, entre la rue du Faubourg Saint-Honoré et l’avenue des Champs-Élysées, cet appartement de 91,66m² entièrement rénové se situe au premier étage avec ascenseur d’un immeuble en pierre de taille au cœur du 8e arrondissement.
Il se compose d'une entrée avec rangements sur-mesure menant à une très belle pièce de vie de 45 m², lumineuse grâce à ses quatre grandes fenêtres, ainsi qu’une cuisine ouverte et entièrement équipée.
L’espace nuit sur cour propose deux chambres avec rangements intégrés, une salle de bains avec baignoire et douche à l’italienne, un dressing séparé et des toilettes invités.
Une cave complète ce bien.
- Habitable : 91,66 m²
- 3 pièces
- 2 chambres
- 1 salle de bains
- Étage 1/5
- Exposition Nord
- Neuf
Ce qui nous séduit
- Adresse très recherchée
- Gardien
- Ascenseur
- Cave
On vous en dit plus
Réglementations & éléments financiers
Les informations sur les risques auxquels ce bien est exposé sont disponibles sur le site Géorisques : www.georisques.gouv.fr
| Diagnostics |
|---|
Consommation énergie finale : B - 89 kWh/m²/an.
Montant estimé des dépenses annuelles d’énergie pour un usage standard : entre 1 460,00 € et 2 010,00 € /an (abonnement compris).
Prix moyen des énergies indexées au 01/01/2023.
| Éléments financiers |
|---|
Taxe foncière : 2 265,00 € /an
Détails de l’intérieur & de l’extérieur
| Pièce | Surface | Détail |
|---|---|---|
| 1x Cave | Étage : 1 | |
| 1x Séjour/cuisine | 45.28 m² |
Étage : 1er Exposition : Nord Revêtement : Parquet |
| 1x Chambre | 1049 m² |
Étage : 1er Exposition : Sud Revêtement : Moquette |
| 1x Chambre | 13.05 m² |
Étage : 1er Exposition : Sud Revêtement : Moquette |
| 1x Salle de bains | 6.42 m² | Étage : 1er |
| 1x Toilettes | 1.8 m² | Étage : 1er |
| 1x Dégagement | 4.63 m² |
Étage : 1er Revêtement : Parquet |
| 1x Entrée | 1.33 m² | Étage : 1er |
| 1x Dressing | 2.88 m² | Étage : 1er |
| 1x Dégagement | 4.1 m² |
Étage : 1er Revêtement : Parquet |
| 1x Entrée | 1.68 m² | Étage : 1er |
Prestations
Bâtiment & Copropriété
| Bâtiment |
|---|
-
Construit en : 1900
-
Nombre d'étages : 5
| Copropriété |
|---|
29 lots d'habitation
Montant moyen annuel de la quote part de charges courantes : 3 480 €
Procédure en cours : Non
Rencontrez votre agence
Simulateur de financement
Calculez le montant des mensualités de votre prêt immobilier correspondant à l'emprunt que vous souhaitez effectuer.
Prix du bien HAI
1 230 000 €
€
par mois
Vous devez vendre pour acheter ?
Nos consultants immobiliers se tiennent à votre disposition pour réaliser une estimation de la valeur de votre bien. Toutes nos estimations sont offertes.
Je fais estimer mon bienUn lieu de vie à votre image
Junot vous fait visiter les quartiers dans lesquels nos agences vous accueillent, et vous présente les spécificités et bonnes adresses.
Parcourir les quartiers











