Faisons un tour d'horizon
Référence de l’annonce : 3300ABBLEV-2
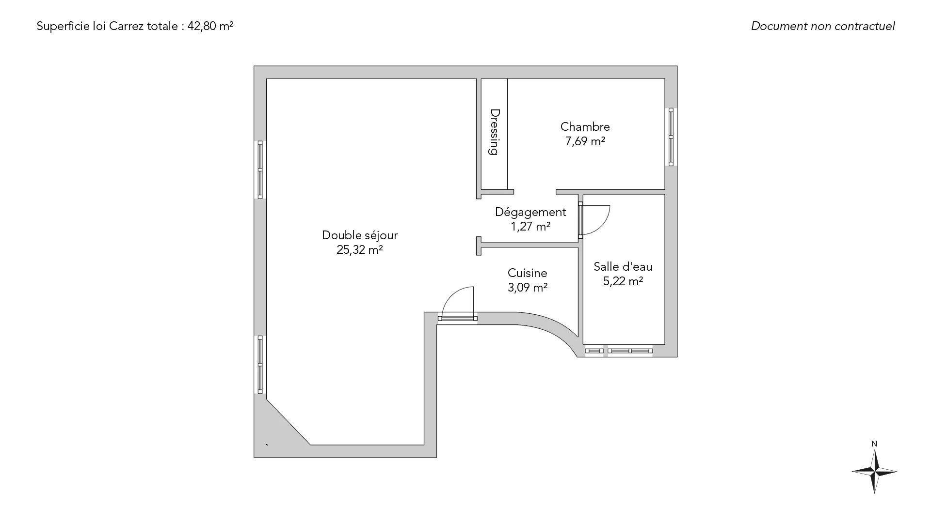
Au pied de la butte Montmartre, à quelques pas de la rue des Martyrs, cet appartement de 42,80m² loi Carrez au calme absolu, bénéficie d'un plan parfait et d'une belle lumière grâce à son exposition OUEST.
Situé au cinquième étage par escalier d'un immeuble très bien tenu avec gardien. Charme parisien : parquet d'origine, grandes fenêtres, hauteur sous plafond. Ce bien se compose d'une entrée, un double séjour, une cuisine ouverte équipée, une chambre avec rangement et une salle de douche avec toilettes.
Une cave complète ce bien rare.
- Habitable : 42,80 m² Total : 42,97 m²
- 2 pièces
- 1 chambre
- 1 salle de douche
- Exposition Ouest
- Bon état
Ce qui nous séduit
- Gardien
- Lumineux
- Calme
- Traversant
- Cave
On vous en dit plus
Réglementations & éléments financiers
Les informations sur les risques auxquels ce bien est exposé sont disponibles sur le site Géorisques : www.georisques.gouv.fr
| Diagnostics |
|---|
Consommation énergie finale : C - 143.4 kWh/m²/an.
Montant estimé des dépenses annuelles d’énergie pour un usage standard : entre 1 130,00 € et 1 530,00 € /an (abonnement compris).
Prix moyen des énergies indexées au 01/01/2021.
| Éléments financiers |
|---|
Taxe foncière : 497,00 € /an
Détails de l’intérieur & de l’extérieur
| Pièce | Surface | Détail |
|---|---|---|
| 1x Cave | ||
| 1x Entrée | 1.27 m² |
Étage : 5ème Revêtement : Parquet |
| 1x Séjour | 25.53 m² |
Étage : 5ème Exposition : Ouest Revêtement : Parquet |
| 1x Cuisine | 3.09 m² |
Étage : 5ème Revêtement : Parquet |
| 1x Salle de douche / toilettes | 5.22 m² |
Étage : 5ème Revêtement : Carrelage |
| 1x Chambre | 7.69 m² |
Étage : 5ème Revêtement : Parquet |
Prestations
Bâtiment & Copropriété
| Bâtiment |
|---|
-
Construit en : 1880
| Copropriété |
|---|
Montant moyen annuel de la quote part de charges courantes : 1 532 €
Procédure en cours : Non
Rencontrez votre agence
Simulateur de financement
Calculez le montant des mensualités de votre prêt immobilier correspondant à l'emprunt que vous souhaitez effectuer.
Prix du bien HAI
480 000 €
€
par mois
Vous devez vendre pour acheter ?
Nos consultants immobiliers se tiennent à votre disposition pour réaliser une estimation de la valeur de votre bien. Toutes nos estimations sont offertes.
Je fais estimer mon bienUn lieu de vie à votre image
Junot vous fait visiter les quartiers dans lesquels nos agences vous accueillent, et vous présente les spécificités et bonnes adresses.
Parcourir les quartiers










