Faisons un tour d'horizon
Référence de l’annonce : 3346GREGEN
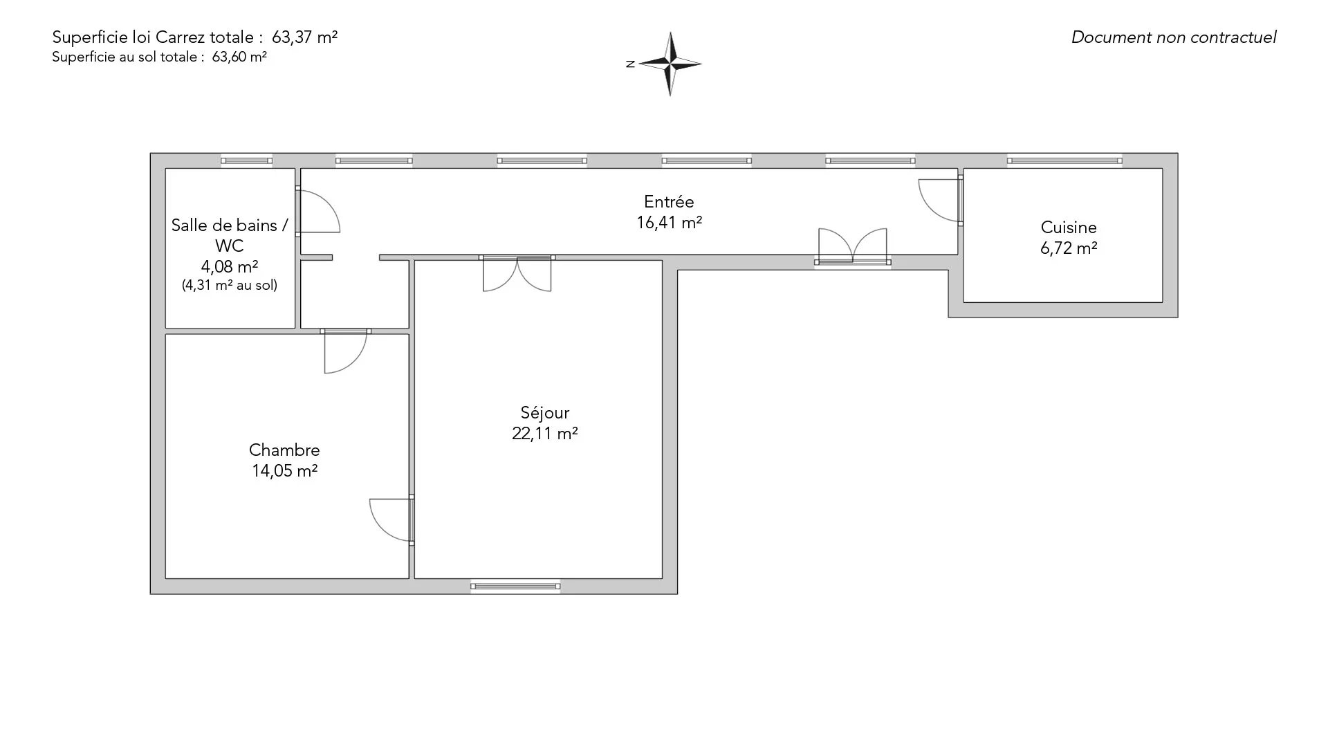
Rue de l’Université, au troisième étage d’un somptueux immeuble en pierre de taille avec gardien, cet appartement de 63,37m² loi Carrez séduit par sa belle hauteur sous plafond de 3,64m et ses vues dégagées sur la tour Eiffel.
Il comprend une entrée, un salon, une cuisine indépendante prolongée par un balcon, une confortable chambre, une salle de bains et des toilettes séparées.
Les larges fenêtres et la hauteur sous plafond confèrent à l’ensemble une agréable sensation d’espace.
Une cave complète cette offre rare, idéalement située à proximité des quais de Seine et des commerces.
EXCLUSIVITÉ.
- Habitable : 63,37 m²
- 2 pièces
- 1 chambre
- 1 salle de bains
- Étage 3/4
- Exposition Est, Ouest
- Bon état
Ce qui nous séduit
- Balcon/Terrasse
- Adresse très recherchée
- Gardien
- Vue monument historique
- Lumineux
- Calme
- Cave
- Vue dégagée
On vous en dit plus
Réglementations & éléments financiers
Les informations sur les risques auxquels ce bien est exposé sont disponibles sur le site Géorisques : www.georisques.gouv.fr
| Diagnostics |
|---|
Consommation énergie finale : F - 411 kWh/m²/an.
Logement à consommation énergétique excessive : classe F
Montant estimé des dépenses annuelles d’énergie pour un usage standard : entre 2 310,00 € et 3 180,00 € /an (abonnement compris).
Prix moyen des énergies indexées au 01/01/2023.
| Éléments financiers |
|---|
Taxe foncière : 1 349,00 € /an
Détails de l’intérieur & de l’extérieur
| Pièce | Surface | Détail |
|---|---|---|
| 1x Cave | Étage : Sous-sol | |
| 1x Entrée | 16.41 m² | Étage : 3ème |
| 1x Cuisine | 6.72 m² |
Étage : 3ème Exposition : Ouest |
| 1x Balcon |
Étage : 3ème Exposition : Ouest |
|
| 1x Séjour | 22.11 m² |
Étage : 3ème Exposition : Est |
| 1x Chambre | 14.05 m² | Étage : 3ème |
| 1x Salle de bains / toilettes | 4.08 m² | Étage : 3ème |
Prestations
Bâtiment & Copropriété
| Bâtiment |
|---|
-
Construit en : 1850
-
Type : Pierre de taille
-
Nombre d'étages : 4
| Copropriété |
|---|
45 lots d'habitation
Montant moyen annuel de la quote part de charges courantes : 2 124 €
Procédure en cours : Non
Rencontrez votre agence
Simulateur de financement
Calculez le montant des mensualités de votre prêt immobilier correspondant à l'emprunt que vous souhaitez effectuer.
Prix du bien HAI
1 100 000 €
€
par mois
Vous devez vendre pour acheter ?
Nos consultants immobiliers se tiennent à votre disposition pour réaliser une estimation de la valeur de votre bien. Toutes nos estimations sont offertes.
Je fais estimer mon bienUn lieu de vie à votre image
Junot vous fait visiter les quartiers dans lesquels nos agences vous accueillent, et vous présente les spécificités et bonnes adresses.
Parcourir les quartiers











