Faisons un tour d'horizon
Référence de l’annonce : 3405BREPRI
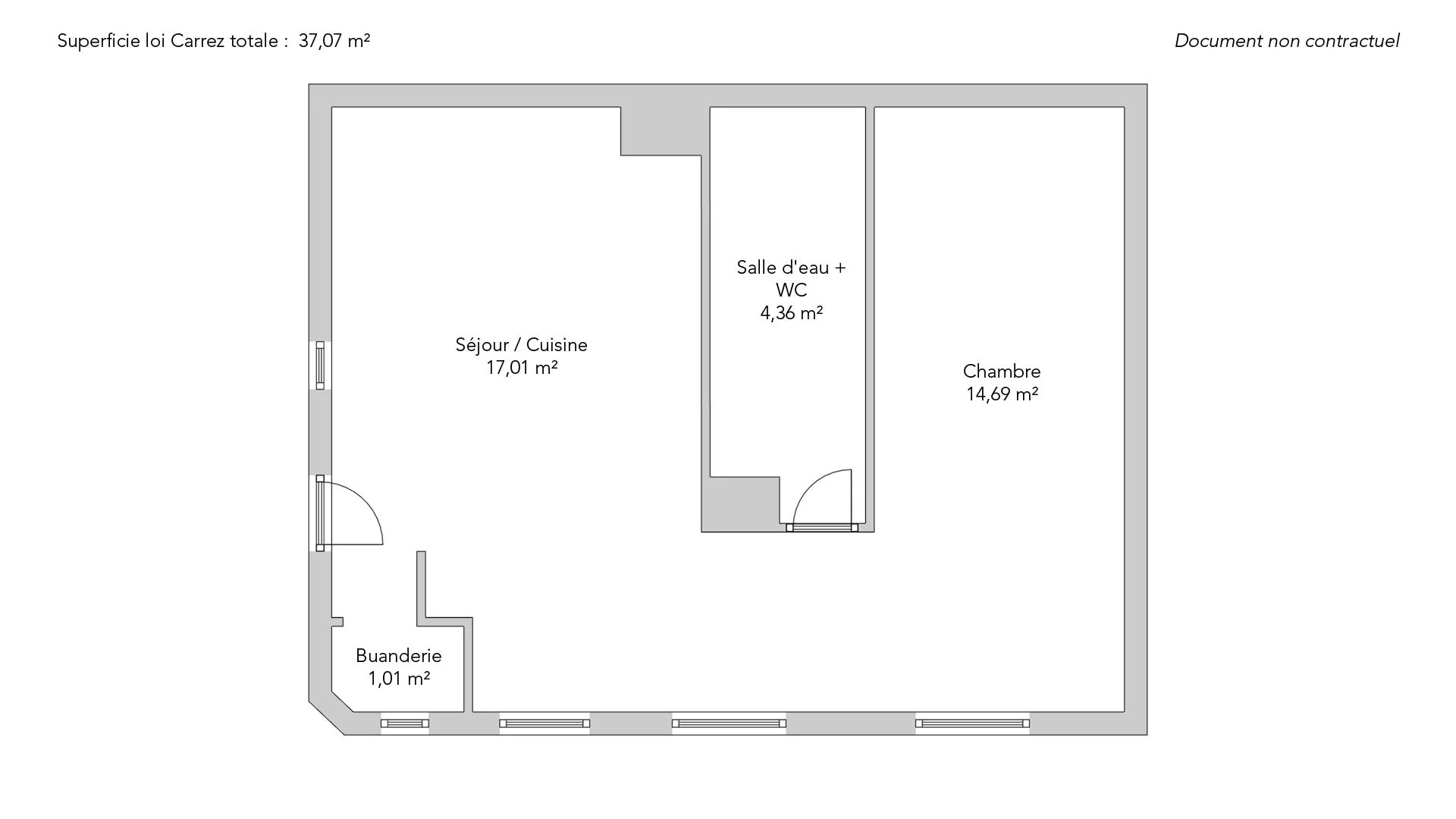
À proximité immédiate du marché de Lévis, dans un bel immeuble ancien parfaitement entretenu, au deuxième étage par escalier, un appartement en parfait état de 37,07m². Au calme sur cour (ravalée), il se compose d'une agréable pièce à vivre avec cuisine ouverte entièrement équipée, d'une chambre avec nombreux rangements, d'une salle de douche et d'une buanderie. Bénéficiant d'une exposition sud-est, ce bien bénéficie d'un plan compact, de beaux volumes et d'un emplacement recherché.
- Habitable : 37,07 m²
- 2 pièces
- 1 chambre
- 1 salle de douche
- Étage 2/6
- Exposition Sud-est
- Excellent état
Ce qui nous séduit
- Gardien
- Calme
- Ascenseur
- Cave
On vous en dit plus
Réglementations & éléments financiers
Les informations sur les risques auxquels ce bien est exposé sont disponibles sur le site Géorisques : www.georisques.gouv.fr
| Diagnostics |
|---|
Consommation énergie finale : C - 118 kWh/m²/an.
Montant estimé des dépenses annuelles d’énergie pour un usage standard : entre 830,00 € et 1 150,00 € /an (abonnement compris).
Prix moyen des énergies indexées au 01/01/2021.
| Éléments financiers |
|---|
Taxe foncière : 625,00 € /an
Détails de l’intérieur & de l’extérieur
| Pièce | Surface | Détail |
|---|---|---|
| 1x Cave | Étage : Sous-sol | |
| 1x Séjour/cuisine | 17.01 m² |
Étage : 2ème Revêtement : Parquet |
| 1x Buanderie | 1.01 m² |
Étage : 2ème Revêtement : Parquet |
| 1x Chambre | 14.69 m² |
Étage : 2ème Revêtement : Parquet |
| 1x Salle de douche / toilettes | 4.36 m² |
Étage : 2ème Revêtement : Carrelage |
Prestations
Bâtiment & Copropriété
| Bâtiment |
|---|
-
Construit en : 1880
-
Nombre d'étages : 6
| Copropriété |
|---|
71 lots d'habitation
Montant moyen annuel de la quote part de charges courantes : 1 096 €
Procédure en cours : Non
Rencontrez votre agence
Simulateur de financement
Calculez le montant des mensualités de votre prêt immobilier correspondant à l'emprunt que vous souhaitez effectuer.
Prix du bien HAI
495 000 €
€
par mois
Vous devez vendre pour acheter ?
Nos consultants immobiliers se tiennent à votre disposition pour réaliser une estimation de la valeur de votre bien. Toutes nos estimations sont offertes.
Je fais estimer mon bienUn lieu de vie à votre image
Junot vous fait visiter les quartiers dans lesquels nos agences vous accueillent, et vous présente les spécificités et bonnes adresses.
Parcourir les quartiers












