Faisons un tour d'horizon
Référence de l’annonce : 2922TERPAR
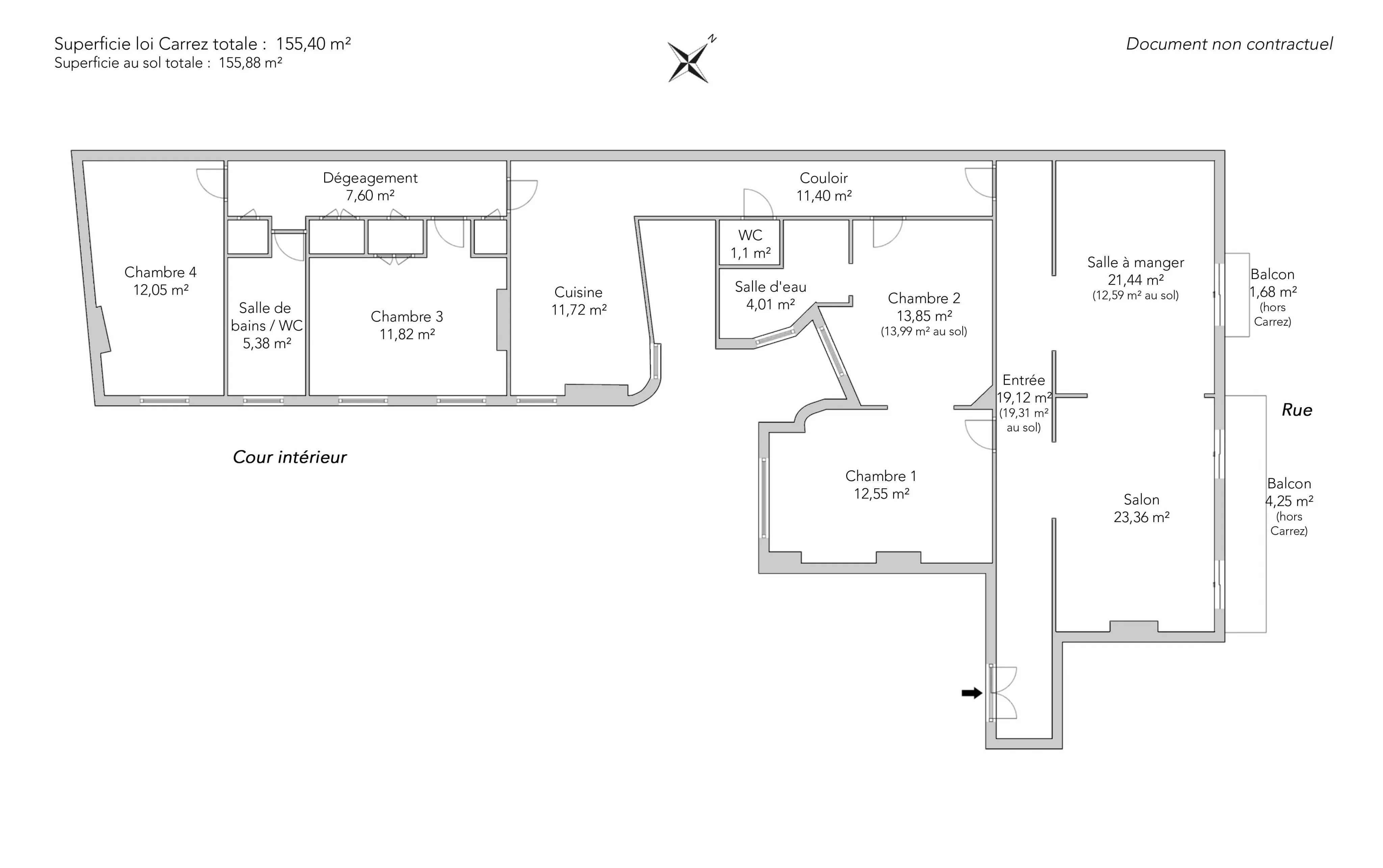
Rare. Dans immeuble en pierre de taille et entretenu, au cinquième étage par ascenseur, très bel appartement familial et de réception de 155.40sqm.
Traversant, son plan modulable comprend une belle galerie d'entrée, un spacieux double séjour de 45sqm souligné par un joli balcon en exposition nord-est, quatre chambres au calme dont une avec salle de douche attenante, une agréable cuisine intégrée dinatoire, une salle de bains avec toilettes et des toilettes invités.
Cet appartement bénéficie de belles prestations soignées, de nombreux rangements et de beaux volumes avec une hauteur sous plafond de 2.95m.
Le charme de l'ancien a été préservé : parquet en point de Hongrie, jolies cheminées en marbre et délicates moulures.
Gardienne à demeure.
Une cave complète ce bien.
- Habitable : 155,40 m² Total : 161,00 m²
- 6 pièces
- 4 chambres
- 1 salle de bains
- 1 salle de douche
- Étage 5/7
- Cheminée
- Exposition Nord-est
- Bon état
Ce qui nous séduit
- Balcon/Terrasse
- Adresse très recherchée
- Gardien
- Calme
- Traversant
- Ascenseur
- Cave
On vous en dit plus
Réglementations & éléments financiers
Les informations sur les risques auxquels ce bien est exposé sont disponibles sur le site Géorisques : www.georisques.gouv.fr
| Diagnostics |
|---|
Consommation énergie finale : D - 208.9 kWh/m²/an.
Montant estimé des dépenses annuelles d’énergie pour un usage standard : entre 3 040,00 € et 4 120,00 € /an (abonnement compris).
Prix moyen des énergies indexées au 01/01/2021.
| Éléments financiers |
|---|
Taxe foncière : 3 080,00 € /an
Détails de l’intérieur & de l’extérieur
| Pièce | Surface | Détail |
|---|---|---|
| 1x Cave | 12.53 m² | Étage : Sous-sol |
| 1x Entrée | 19.12 m² | Étage : 5ème |
| 1x Salon | 23.36 m² |
Étage : 5ème Exposition : Nord-est Plafond : 2.95m |
| 1x Salle à manger | 21.44 m² |
Étage : 5ème Exposition : Nord-est Plafond : 2.95m |
| 1x Chambre | 13.85 m² | Étage : 5ème |
| 1x Chambre | 12.55 m² | Étage : 5ème |
| 1x Chambre | 12.05 m² | Étage : 5ème |
| 1x Chambre | 11.82 m² | Étage : 5ème |
| 1x Cuisine | 11.72 m² | Étage : 5ème |
| 1x Salle de douche | 4.01 m² | Étage : 5ème |
| 1x Salle de bains / toilettes | 5.38 m² | Étage : 5ème |
| 1x Toilettes | 1.1 m² | Étage : 5ème |
| 1x Couloir | 11.4 m² | Étage : 5ème |
| 1x Dégagement | 7.6 m² | Étage : 5ème |
| 1x Balcon | 4.25 m² | Étage : 5ème |
| 1x Balcon | 1.68 m² | Étage : 5ème |
Prestations
Bâtiment & Copropriété
| Bâtiment |
|---|
-
Construit en : 1911
-
Nombre d'étages : 7
| Copropriété |
|---|
Montant moyen annuel de la quote part de charges courantes : 8 000 €
Procédure en cours : Non
Rencontrez votre agence
Simulateur de financement
Calculez le montant des mensualités de votre prêt immobilier correspondant à l'emprunt que vous souhaitez effectuer.
Prix du bien HAI
2 150 000 €
€
par mois
Vous devez vendre pour acheter ?
Nos consultants immobiliers se tiennent à votre disposition pour réaliser une estimation de la valeur de votre bien. Toutes nos estimations sont offertes.
Je fais estimer mon bienUn lieu de vie à votre image
Junot vous fait visiter les quartiers dans lesquels nos agences vous accueillent, et vous présente les spécificités et bonnes adresses.
Parcourir les quartiers












