Faisons un tour d'horizon
Référence de l’annonce : 3451MARLAC
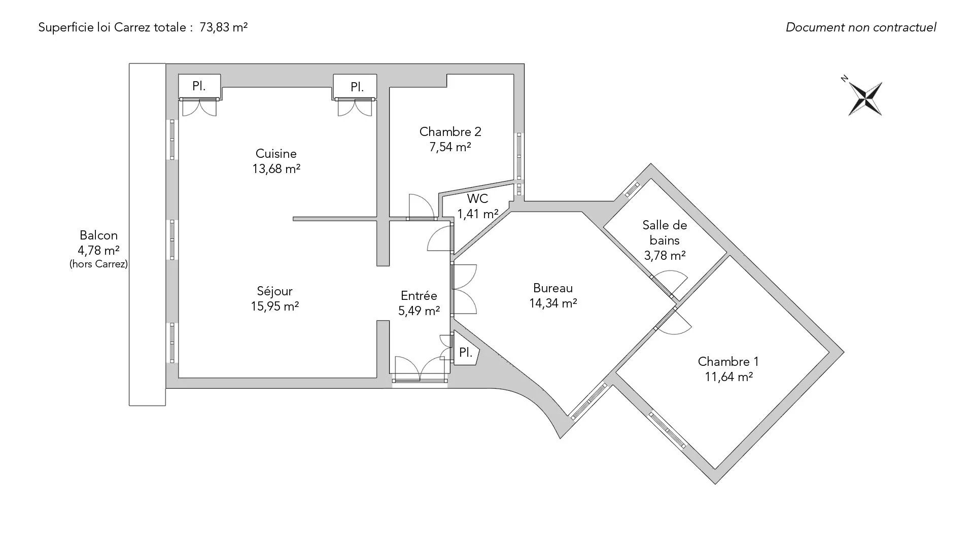
Au cinquième étage par ascenseur d’un immeuble en pierre de taille, appartement familial et traversant de 73,83m² loi Carrez.
Il propose un plan optimisé et comporte une entrée avec placards, un séjour avec une cuisine ouverte donnant sur un balcon filant offrant une vue sur la tour Eiffel, deux chambres, une chambre enfant, une salle de bains et des toilettes séparées.
Le charme de l'ancien a été préservé : parquet et moulures.
Une cave complète ce bien. Local poussettes.
EXCLUSIVITÉ
- Habitable : 73,83 m² Total : 78,61 m²
- 4 pièces
- 3 chambres
- 1 salle de bains
- Étage 5/6
- Exposition Nord-ouest
- Bon état
Ce qui nous séduit
- Balcon/Terrasse
- Lumineux
- Calme
- Traversant
- Ascenseur
- Cave
- Vue dégagée
On vous en dit plus
Réglementations & éléments financiers
Les informations sur les risques auxquels ce bien est exposé sont disponibles sur le site Géorisques : www.georisques.gouv.fr
| Diagnostics |
|---|
Consommation énergie finale : D - 186 kWh/m²/an.
Montant estimé des dépenses annuelles d’énergie pour un usage standard : entre 1 320,00 € et 1 830,00 € /an (abonnement compris).
Prix moyen des énergies indexées au 01/01/2021.
| Éléments financiers |
|---|
Taxe foncière : 1 979,00 € /an
Détails de l’intérieur & de l’extérieur
| Pièce | Surface | Détail |
|---|---|---|
| 1x Cave | ||
| 1x Entrée | 5.49 m² |
Étage : 5ème Revêtement : Parquet |
| 1x Séjour/cuisine | 29.63 m² |
Étage : 5ème Exposition : Nord-ouest Revêtement : Parquet Plafond : 2.6m |
| 1x Balcon | 4.78 m² | Étage : 5ème |
| 1x Chambre | 14.34 m² |
Étage : 5ème Revêtement : Parquet |
| 1x Chambre | 11.64 m² |
Étage : 5ème Revêtement : Parquet |
| 1x Chambre d'enfants | 7.54 m² |
Étage : 5ème Revêtement : Béton |
| 1x Toilettes | 1.41 m² |
Étage : 5ème Revêtement : Carrelage |
| 1x Salle de bains | 3.78 m² |
Étage : 5ème Revêtement : Carrelage |
Prestations
Bâtiment & Copropriété
| Bâtiment |
|---|
-
Construit en : 1910
-
Nombre d'étages : 6
| Copropriété |
|---|
43 lots d'habitation
Montant moyen annuel de la quote part de charges courantes : 3 480 €
Procédure en cours : Oui
Rencontrez votre agence
Simulateur de financement
Calculez le montant des mensualités de votre prêt immobilier correspondant à l'emprunt que vous souhaitez effectuer.
Prix du bien HAI
900 000 €
€
par mois
Vous devez vendre pour acheter ?
Nos consultants immobiliers se tiennent à votre disposition pour réaliser une estimation de la valeur de votre bien. Toutes nos estimations sont offertes.
Je fais estimer mon bienUn lieu de vie à votre image
Junot vous fait visiter les quartiers dans lesquels nos agences vous accueillent, et vous présente les spécificités et bonnes adresses.
Parcourir les quartiers













