Faisons un tour d'horizon
Référence de l’annonce : 1138POIFAS
Situé dans un quartier recherché, à la lisière des 10e, 9e et 2e arrondissements, au cinquième étage par ascenseur d’une belle copropriété de standing parfaitement entretenue, rue d'Hauteville, charmant deux pièces de 34,17m² loi Carrez entièrement rénové en 2025.
il se compose d’un séjour, d’une chambre avec sa salle de douche attenante ainsi que de toilettes séparées.
Au calme absolu, donnant sur une large cour, cet appartement au plan fonctionnel bénéficie d'une vue dégagée sur le ciel et d'une belle luminosité. EXCLUSIVITÉ.
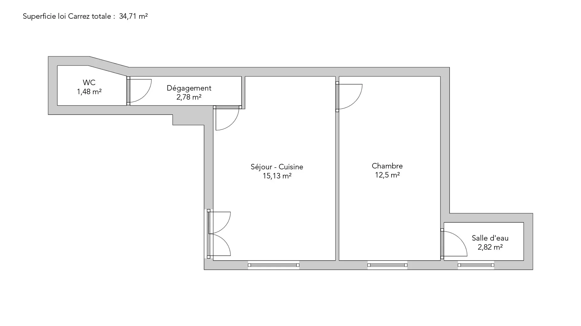
- Habitable : 34,17 m² Total : 34,71 m²
- 2 pièces
- 1 chambre
- 1 salle de douche
- Étage 5/6
- Exposition Nord
- Neuf
Ce qui nous séduit
- Calme
- Ascenseur
On vous en dit plus
Réglementations & éléments financiers
Les informations sur les risques auxquels ce bien est exposé sont disponibles sur le site Géorisques : www.georisques.gouv.fr
| Diagnostics |
|---|
Consommation énergie finale : B - 108 kWh/m²/an.
Montant estimé des dépenses annuelles d’énergie pour un usage standard : entre 730,00 € et 1 020,00 € /an (abonnement compris).
Prix moyen des énergies indexées au 01/01/2021.
| Éléments financiers |
|---|
Taxe foncière : 861,00 € /an
Détails de l’intérieur & de l’extérieur
| Pièce | Surface | Détail |
|---|---|---|
| 1x Séjour/cuisine | 15.13 m² |
Étage : 5ème Exposition : Nord Revêtement : Parquet |
| 1x Dégagement | 2.78 m² |
Étage : 5ème Revêtement : Parquet |
| 1x Toilettes | 1.48 m² |
Étage : 5ème Revêtement : Carrelage |
| 1x Chambre | 12.5 m² |
Étage : 5ème Revêtement : Parquet |
| 1x Salle de douche | 2.82 m² |
Étage : 5ème Revêtement : Carrelage |
Prestations
Bâtiment & Copropriété
| Bâtiment |
|---|
-
Construit en : 1890
-
Nombre d'étages : 6
| Copropriété |
|---|
56 lots d'habitation
Montant moyen annuel de la quote part de charges courantes : 1 052 €
Procédure en cours : Non
Rencontrez votre agence
Simulateur de financement
Calculez le montant des mensualités de votre prêt immobilier correspondant à l'emprunt que vous souhaitez effectuer.
Prix du bien HAI
430 000 €
€
par mois
Vous devez vendre pour acheter ?
Nos consultants immobiliers se tiennent à votre disposition pour réaliser une estimation de la valeur de votre bien. Toutes nos estimations sont offertes.
Je fais estimer mon bienUn lieu de vie à votre image
Junot vous fait visiter les quartiers dans lesquels nos agences vous accueillent, et vous présente les spécificités et bonnes adresses.
Parcourir les quartiers












