Faisons un tour d'horizon
Référence de l’annonce : 5754JASVAN
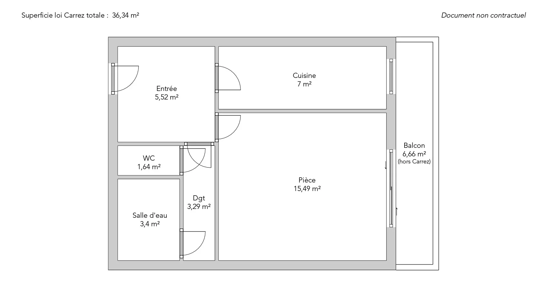
Situé au quatrième étage par ascenseur d’un immeuble datant de 1967 gardienné et sécurisé, grand studio de 36,34m² loi Carrez à rénover.
Il comprend une entrée qui dessert une cuisine, une pièce principale ouvrant sur un large balcon de plus de 6m² avec vue sur jardin, une salle de douche et des toilettes séparées. Nombreux rangements.
Une cave complète ce bien au plan optimisé.
Possibilité d'acquérir une place de parking dans l'immeuble.
Idéal investissement.
EXCLUSIVITÉ
- Habitable : 36,34 m² Total : 43,00 m²
- 1 pièce
- suite
- 1 salle de douche
- Étage 4/10
- Exposition Nord-ouest
- À rénover
Ce qui nous séduit
- Balcon/Terrasse
- Gardien
- Ascenseur
- Cave
- Vue dégagée
On vous en dit plus
Réglementations & éléments financiers
Les informations sur les risques auxquels ce bien est exposé sont disponibles sur le site Géorisques : www.georisques.gouv.fr
| Diagnostics |
|---|
Consommation énergie finale : D - 252 kWh/m²/an.
Montant estimé des dépenses annuelles d’énergie pour un usage standard : entre 750,00 € et 1 030,00 € /an (abonnement compris).
Prix moyen des énergies indexées au 01/01/2021.
| Éléments financiers |
|---|
Détails de l’intérieur & de l’extérieur
| Pièce | Surface | Détail |
|---|---|---|
| 1x Cave | ||
| 1x Entrée | 5.52 m² | Étage : 4ème |
| 1x Pièce de vie | 15.49 m² | Étage : 4ème |
| 1x Balcon | 6.66 m² | Étage : 4ème |
| 1x Cuisine | 7 m² | Étage : 4ème |
| 1x Salle de douche | 3.4 m² | Étage : 4ème |
| 1x Toilettes | 1.64 m² | Étage : 4ème |
| 1x Dégagement | 3.29 m² | Étage : 4ème |
Prestations
Bâtiment & Copropriété
| Bâtiment |
|---|
-
Construit en : 1967
-
Nombre d'étages : 10
| Copropriété |
|---|
205 lots d'habitation
Montant moyen annuel de la quote part de charges courantes : 1 920 €
Procédure en cours : Non
Rencontrez votre agence
Simulateur de financement
Calculez le montant des mensualités de votre prêt immobilier correspondant à l'emprunt que vous souhaitez effectuer.
Prix du bien HAI
320 000 €
€
par mois
Vous devez vendre pour acheter ?
Nos consultants immobiliers se tiennent à votre disposition pour réaliser une estimation de la valeur de votre bien. Toutes nos estimations sont offertes.
Je fais estimer mon bienUn lieu de vie à votre image
Junot vous fait visiter les quartiers dans lesquels nos agences vous accueillent, et vous présente les spécificités et bonnes adresses.
Parcourir les quartiers












