Faisons un tour d'horizon
Référence de l’annonce : 3433BREHUC / 5772JUN
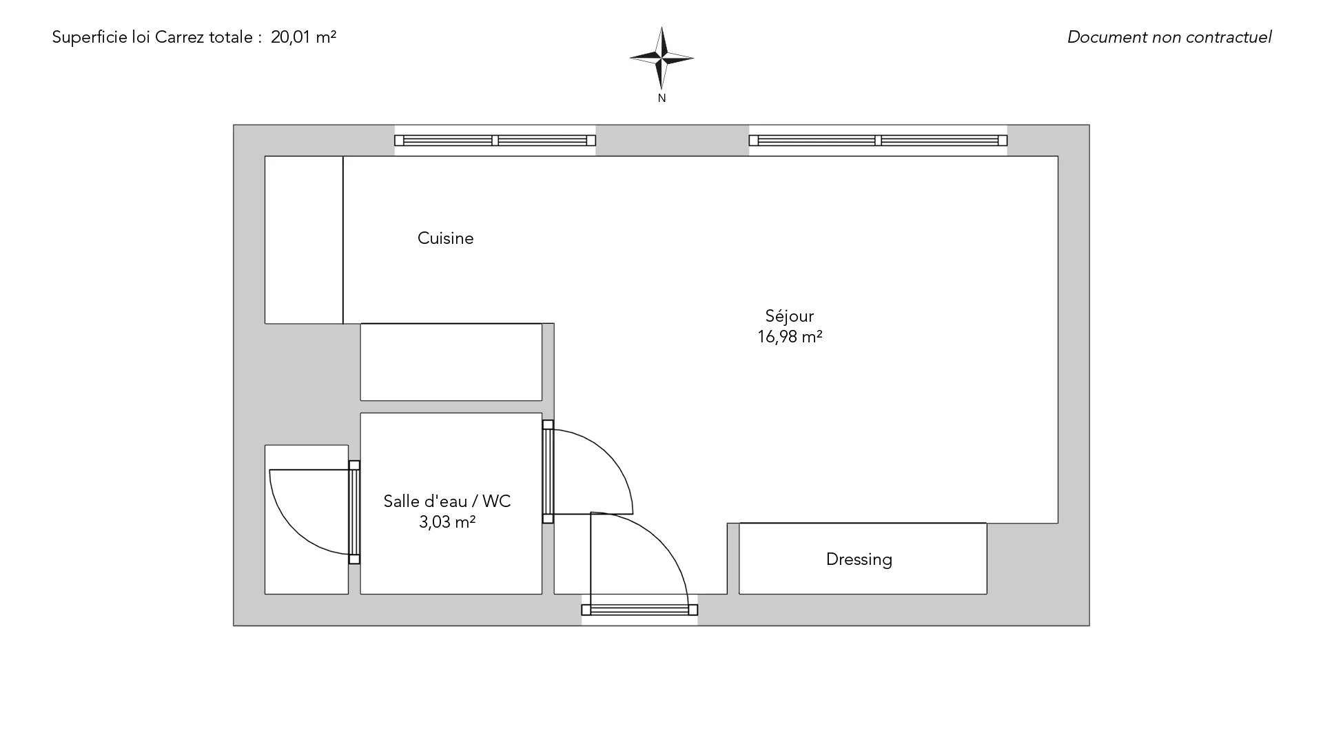
Au premier étage par ascenseur d’un immeuble récent, studio de 20,01m² loi Carrez, rénové par architecte.
En excellent état, il comprend une pièce de vie de 16,98m² avec un grand rangement, une cuisine aménagée et équipée ainsi qu’une salle de douche avec toilettes et machine à laver.
Situé dans une rue calme, il est très lumineux grâce à ses grandes ouvertures exposées sud.
Une cave complète ce bien.
- Habitable : 20,01 m²
- 1 pièce
- suite
- 1 salle de douche
- Étage 1/5
- Exposition Sud
- Excellent état
Ce qui nous séduit
- Calme
- Ascenseur
- Cave
On vous en dit plus
Réglementations & éléments financiers
Les informations sur les risques auxquels ce bien est exposé sont disponibles sur le site Géorisques : www.georisques.gouv.fr
| Diagnostics |
|---|
Consommation énergie finale : D - 245 kWh/m²/an.
Montant estimé des dépenses annuelles d’énergie pour un usage standard : entre 410,00 € et 600,00 € /an (abonnement compris).
Prix moyen des énergies indexées au 01/01/2021.
| Éléments financiers |
|---|
Taxe foncière : 737,00 € /an
Détails de l’intérieur & de l’extérieur
| Pièce | Surface | Détail |
|---|---|---|
| 1x Cave | Étage : Sous-sol | |
| 1x Séjour/cuisine | 16.98 m² |
Étage : 1er Exposition : Sud Revêtement : Parquet Plafond : 2.5m |
| 1x Salle de douche / toilettes | 3.03 m² |
Étage : 1er Revêtement : Carrelage |
Prestations
Bâtiment & Copropriété
| Bâtiment |
|---|
-
Construit en : 1962
-
Type : Béton
-
Nombre d'étages : 5
-
Niveau de qualité : Standing
| Copropriété |
|---|
37 lots d'habitation
Montant moyen annuel de la quote part de charges courantes : 1 040 €
Procédure en cours : Non
Rencontrez votre agence
Simulateur de financement
Calculez le montant des mensualités de votre prêt immobilier correspondant à l'emprunt que vous souhaitez effectuer.
Prix du bien HAI
247 000 €
€
par mois
Vous devez vendre pour acheter ?
Nos consultants immobiliers se tiennent à votre disposition pour réaliser une estimation de la valeur de votre bien. Toutes nos estimations sont offertes.
Je fais estimer mon bienUn lieu de vie à votre image
Junot vous fait visiter les quartiers dans lesquels nos agences vous accueillent, et vous présente les spécificités et bonnes adresses.
Parcourir les quartiers












