Faisons un tour d'horizon
Référence de l’annonce : 2232PASCAS
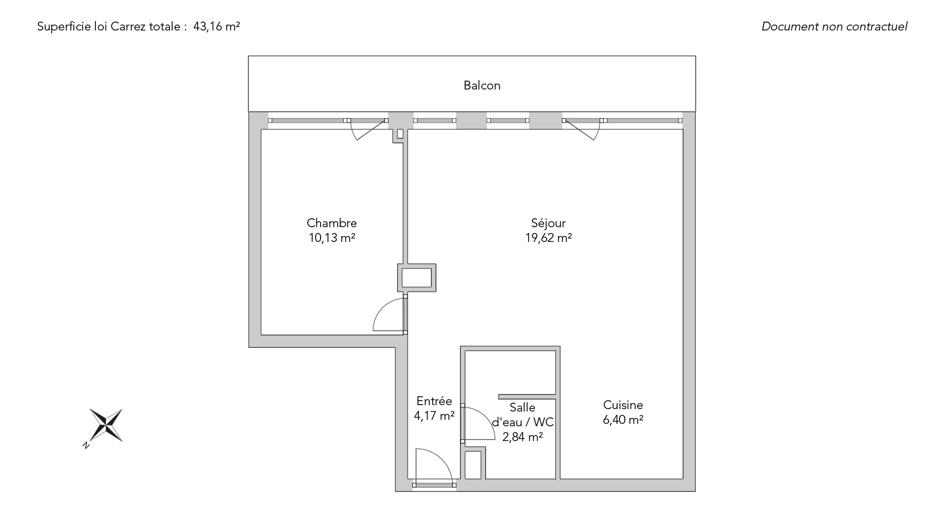
Idéalement situé dans une rue calme, à proximité immédiate des commerces et transports, cet appartement de 43,16m² loi Carrez niché au sixième étage par ascenseur offre un balcon et une vue dégagée sur la tour Eiffel.
Refait à neuf, il comprend une entrée, un séjour baigné de lumière avec une grande baie vitrée qui ouvre sur le balcon, une cuisine ouverte, une chambre qui bénéficie également d'un accès au balcon, une salle de douche avec toilettes.
EXCLUSIVITÉ
- Habitable : 43,16 m²
- 2 pièces
- 1 chambre
- 1 salle de douche
- Étage 6/8
- Exposition Sud-est
- Neuf
Ce qui nous séduit
- Balcon/Terrasse
- Ascenseur
On vous en dit plus
Réglementations & éléments financiers
Les informations sur les risques auxquels ce bien est exposé sont disponibles sur le site Géorisques : www.georisques.gouv.fr
| Diagnostics |
|---|
Consommation énergie finale : C - 154 kWh/m²/an.
Montant estimé des dépenses annuelles d’énergie pour un usage standard : entre 820,00 € et 1 160,00 € /an (abonnement compris).
Prix moyen des énergies indexées au 01/01/2021.
| Éléments financiers |
|---|
Détails de l’intérieur & de l’extérieur
| Pièce | Surface | Détail |
|---|---|---|
| 1x Entrée | 4.17 m² | Étage : 6ème |
| 1x Séjour | 19.62 m² | Étage : 6ème |
| 1x Balcon | Étage : 6ème | |
| 1x Cuisine américaine | 6.4 m² | Étage : 6ème |
| 1x Chambre | 10.13 m² | Étage : 6ème |
| 1x Salle de douche / toilettes | 2.84 m² | Étage : 6ème |
Prestations
Bâtiment & Copropriété
| Bâtiment |
|---|
-
Construit en : 1973
-
Nombre d'étages : 8
-
Niveau de qualité : Standing
| Copropriété |
|---|
171 lots d'habitation
Montant moyen annuel de la quote part de charges courantes : 2 340 €
Procédure en cours : Non
Rencontrez votre agence
Simulateur de financement
Calculez le montant des mensualités de votre prêt immobilier correspondant à l'emprunt que vous souhaitez effectuer.
Prix du bien HAI
690 000 €
€
par mois
Vous devez vendre pour acheter ?
Nos consultants immobiliers se tiennent à votre disposition pour réaliser une estimation de la valeur de votre bien. Toutes nos estimations sont offertes.
Je fais estimer mon bienUn lieu de vie à votre image
Junot vous fait visiter les quartiers dans lesquels nos agences vous accueillent, et vous présente les spécificités et bonnes adresses.
Parcourir les quartiers












