Faisons un tour d'horizon
Référence de l’annonce : 5766JUNORM
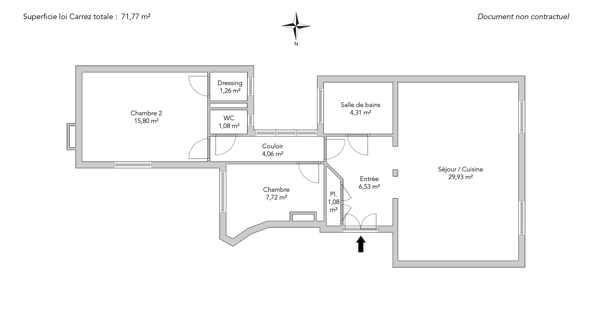
Idéalement situé rue Damrémont, au pied des commerces, au troisième étage par ascenseur d’un bel immeuble ancien, superbe appartement de 71,77m² loi Carrez en très bon état.
Rénové en 2019, l’appartement, lumineux et doté d’une hauteur sous plafond de 3,10m, a su conserver tout le charme de l’ancien. Il propose une entrée avec rangements, un séjour exposé ouest qui bénéficie d’une agréable vue, une cuisine ouverte, des toilettes séparées, une chambre principale avec son dressing, une seconde chambre, parfaite pour un enfant ou un bureau et une salle de douche.
Une cave et un local à vélos complètent l’ensemble.
EXCLUSIVITÉ.
- Habitable : 71,77 m²
- 3 pièces
- 2 chambres
- 1 salle de bains
- Exposition Ouest
- Bon état
Ce qui nous séduit
- Ascenseur
- Cave
- Vue dégagée
On vous en dit plus
Réglementations & éléments financiers
Les informations sur les risques auxquels ce bien est exposé sont disponibles sur le site Géorisques : www.georisques.gouv.fr
| Diagnostics |
|---|
Consommation énergie finale : E - 311 kWh/m²/an.
Montant estimé des dépenses annuelles d’énergie pour un usage standard : entre 1 510,00 € et 2 050,00 € /an (abonnement compris).
Prix moyen des énergies indexées au 01/01/2021.
| Éléments financiers |
|---|
Taxe foncière : 1 108,00 € /an
Détails de l’intérieur & de l’extérieur
| Pièce | Surface | Détail |
|---|---|---|
| 1x Cave | Étage : Sous-sol | |
| 1x Local à vélos | Étage : Rez-de-chaussée | |
| 1x Séjour/cuisine | 29.93 m² |
Étage : 3ème Plafond : 3.1m |
| 1x Chambre d'enfants | 7.72 m² | Étage : 3ème |
| 1x Chambre | 15.8 m² | Étage : 3ème |
| 1x Salle de bains | 4.31 m² | Étage : 3ème |
| 1x Toilettes | 1.08 m² | Étage : 3ème |
| 1x Dressing | 1.26 m² | Étage : 3ème |
| 1x Entrée | 6.53 m² | Étage : 3ème |
| 1x Placard | 1.08 m² | Étage : 3ème |
| 1x Couloir | 4.06 m² | Étage : 3ème |
Prestations
Bâtiment & Copropriété
| Bâtiment |
|---|
-
Construit en : 1860
| Copropriété |
|---|
Montant moyen annuel de la quote part de charges courantes : 2 520 €
Procédure en cours : Non
Rencontrez votre agence
Simulateur de financement
Calculez le montant des mensualités de votre prêt immobilier correspondant à l'emprunt que vous souhaitez effectuer.
Prix du bien HAI
870 000 €
€
par mois
Vous devez vendre pour acheter ?
Nos consultants immobiliers se tiennent à votre disposition pour réaliser une estimation de la valeur de votre bien. Toutes nos estimations sont offertes.
Je fais estimer mon bienUn lieu de vie à votre image
Junot vous fait visiter les quartiers dans lesquels nos agences vous accueillent, et vous présente les spécificités et bonnes adresses.
Parcourir les quartiers













