Faisons un tour d'horizon
Référence de l’annonce : 3489MARGON
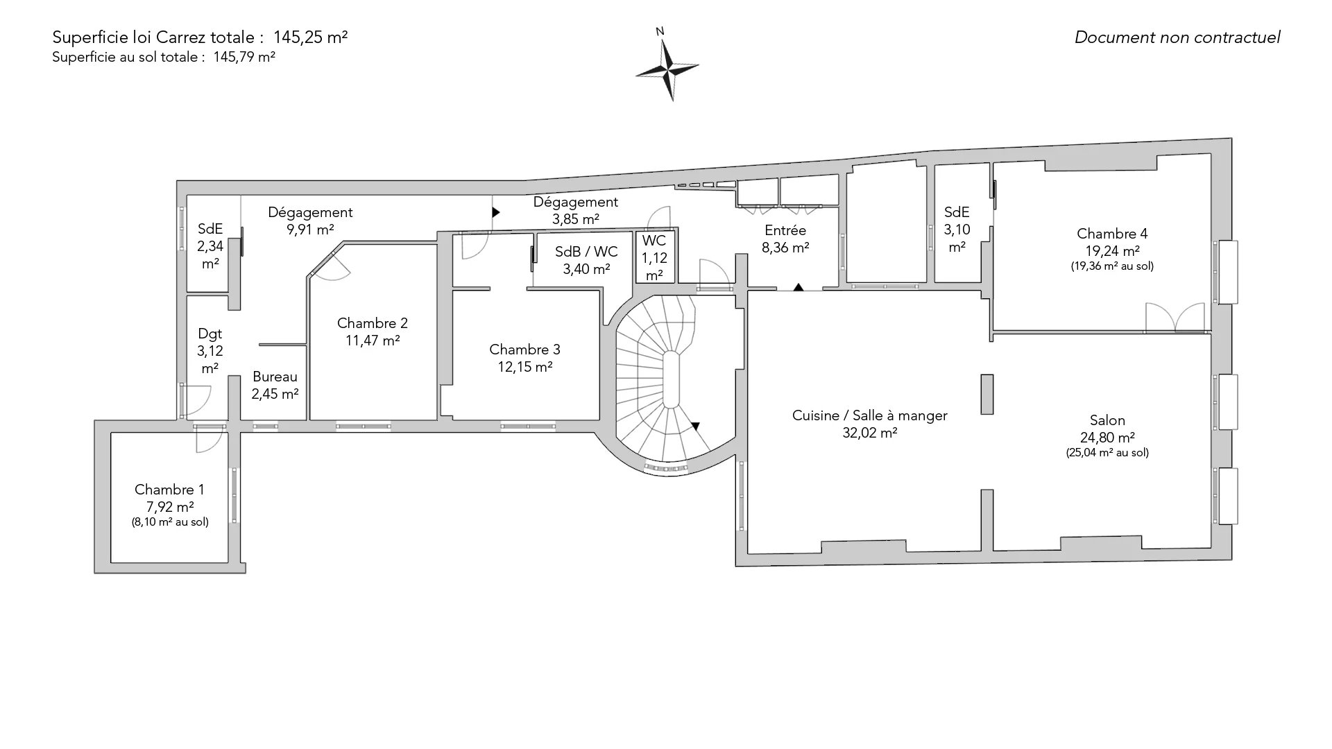
Idéalement situé à deux pas de la rue des Martyrs, dans un bel immeuble en pierre de taille, au quatrième étage avec ascenseur, superbe appartement familial et de réception, traversant et lumineux de 145,25m² loi Carrez en très bon état.
Il comprend une entrée avec de nombreux rangements, une double réception traversante avec sa cuisine ouverte et aménagée et une belle perspective sur la rue Thimonnier pour le salon. Côté nuit, quatre chambres dont deux en suite avec leur salle de douche/bains et toilettes, une salle de douche et des toilettes séparées.
Une grande cave de 10m² complète ce bien.
Son plan modulable permet la création d'un studio ou deux pièces indépendant.
L'appartement a préservé son charme de l'ancien: parquet, moulures et cheminées et il profite d'un bel ensoleillement grâce à ses expositions est/ouest et sud.
Il saura séduire par son emplacement recherché, son étage élevé et ses volumes parfaitement distribués.
- Habitable : 145,25 m² Total : 145,79 m²
- 6 pièces
- 4 chambres
- 1 salle de bains
- 2 salles de douche
- Étage 4/6
- Cheminée
- Exposition Est, Ouest, Sud
- Bon état
Ce qui nous séduit
- Lumineux
- Calme
- Traversant
- Ascenseur
- Vue dégagée
On vous en dit plus
Réglementations & éléments financiers
Les informations sur les risques auxquels ce bien est exposé sont disponibles sur le site Géorisques : www.georisques.gouv.fr
| Diagnostics |
|---|
Consommation énergie finale : a - 172 kWh/m²/an.
Montant estimé des dépenses annuelles d’énergie pour un usage standard : entre 2 924,00 € et 3 956,00 € /an (abonnement compris).
Prix moyen des énergies indexées au 01/01/2023.
| Éléments financiers |
|---|
Taxe foncière : 2 643,00 € /an
Détails de l’intérieur & de l’extérieur
| Pièce | Surface | Détail |
|---|---|---|
| 1x Entrée | 8.36 m² |
Étage : 4ème Exposition : Est Revêtement : Parquet |
| 1x Séjour/cuisine | 32.02 m² |
Étage : 4ème Exposition : Ouest Revêtement : Parquet |
| 1x Salon | 24.8 m² |
Étage : 4ème Exposition : Est Revêtement : Parquet |
| 1x Chambre | 19.24 m² |
Étage : 4ème Exposition : Est Revêtement : Parquet |
| 1x Salle de douche | 3.1 m² |
Étage : 4ème Exposition : Ouest Revêtement : Carrelage |
| 1x Dégagement | 3.85 m² |
Étage : 4ème Revêtement : Parquet |
| 1x Toilettes | 1.12 m² |
Étage : 4ème Revêtement : Carrelage |
| 1x Chambre | 12.15 m² |
Étage : 4ème Exposition : Sud Revêtement : Parquet |
| 1x Salle de bains / toilettes | 3.4 m² | Étage : 4ème |
| 1x Chambre | 11.47 m² |
Étage : 4ème Exposition : Sud Revêtement : Parquet |
| 1x Salle de douche | 2.34 m² |
Étage : 4ème Exposition : Ouest Revêtement : Carrelage |
| 1x Dégagement | 9.91 m² |
Étage : 4ème Revêtement : Fibre végétale |
| 1x Bureau | 2.45 m² |
Étage : 4ème Exposition : Sud Revêtement : Fibre végétale |
| 1x Chambre | 7.92 m² |
Étage : 4ème Exposition : Est Revêtement : Moquette |
| 1x Dégagement | 3.12 m² |
Étage : 4ème Revêtement : Fibre végétale |
Prestations
Bâtiment & Copropriété
| Bâtiment |
|---|
-
Construit en : 1920
-
Nombre d'étages : 6
| Copropriété |
|---|
17 lots d'habitation
Montant moyen annuel de la quote part de charges courantes : 4 800 €
Procédure en cours : Non
Rencontrez votre agence
Simulateur de financement
Calculez le montant des mensualités de votre prêt immobilier correspondant à l'emprunt que vous souhaitez effectuer.
Prix du bien HAI
1 698 000 €
€
par mois
Vous devez vendre pour acheter ?
Nos consultants immobiliers se tiennent à votre disposition pour réaliser une estimation de la valeur de votre bien. Toutes nos estimations sont offertes.
Je fais estimer mon bienUn lieu de vie à votre image
Junot vous fait visiter les quartiers dans lesquels nos agences vous accueillent, et vous présente les spécificités et bonnes adresses.
Parcourir les quartiers









