Faisons un tour d'horizon
Référence de l’annonce : 2258PASSIS
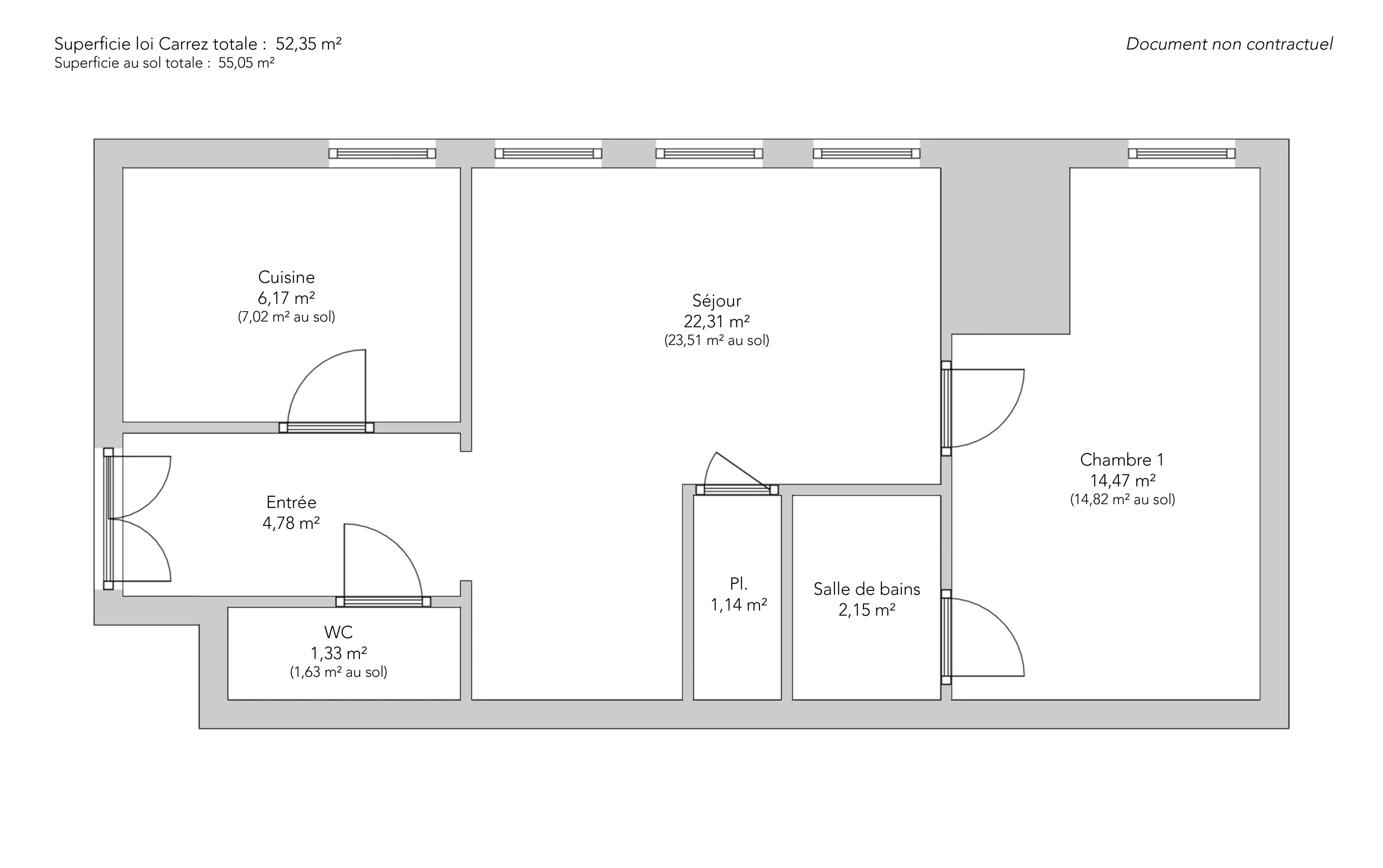
Avenue Georges Mandel, au sein d'un magnifique immeuble en pierre de taille de haut standing, appartement à rénover de 55m2 au sol (52,35m² loi Carrez) situé au dernier étage par ascenseur.
Son plan comporte un séjour avec rangements, une cuisine indépendante, une "master bedroom" avec sa salle de bains et des toilettes séparées.
Un petit grenier et une cave complète ce bien.
Copropriété sécurisée et gardiennée.
Idéal pied-à-terre ou investisseur. Belle opportunité au cœur d'une adresse de premier choix à proximité immédiate du Trocadéro et de la tour Eiffel.
EXCLUSIVITÉ
- Habitable : 52,35 m² Total : 55,05 m²
- 2 pièces
- 1 chambre
- 1 salle de bains
- Étage 6/7
- Exposition Ouest
- À rénover
Ce qui nous séduit
- Adresse très recherchée
- Dernier étage
- Gardien
- Calme
- Ascenseur
- Cave
On vous en dit plus
Réglementations & éléments financiers
Les informations sur les risques auxquels ce bien est exposé sont disponibles sur le site Géorisques : www.georisques.gouv.fr
| Diagnostics |
|---|
Consommation énergie finale : G - 541 kWh/m²/an.
Logement à consommation énergétique excessive : classe G
Montant estimé des dépenses annuelles d’énergie pour un usage standard : entre 3 580,00 € et 4 880,00 € /an (abonnement compris).
Prix moyen des énergies indexées au 01/01/2023.
| Éléments financiers |
|---|
Taxe foncière : 1 879,00 € /an
Détails de l’intérieur & de l’extérieur
| Pièce | Surface | Détail |
|---|---|---|
| 1x Cave | ||
| 1x Débarras | ||
| 1x Entrée | 4.78 m² | Étage : 6ème |
| 1x Séjour | 22.31 m² | Étage : 6ème |
| 1x Cuisine | 6.17 m² | Étage : 6ème |
| 1x Chambre | 14.47 m² | Étage : 6ème |
| 1x Salle de bains | 2.15 m² | Étage : 6ème |
| 1x Toilettes | 1.33 m² | Étage : 6ème |
| 1x Placard | 1.14 m² | Étage : 6ème |
Prestations
Bâtiment & Copropriété
| Bâtiment |
|---|
-
Construit en : 1977
-
Nombre d'étages : 7
| Copropriété |
|---|
31 lots d'habitation
Montant moyen annuel de la quote part de charges courantes : 3 912 €
Procédure en cours : Non
Rencontrez votre agence
Simulateur de financement
Calculez le montant des mensualités de votre prêt immobilier correspondant à l'emprunt que vous souhaitez effectuer.
Prix du bien HAI
750 000 €
€
par mois
Vous devez vendre pour acheter ?
Nos consultants immobiliers se tiennent à votre disposition pour réaliser une estimation de la valeur de votre bien. Toutes nos estimations sont offertes.
Je fais estimer mon bienUn lieu de vie à votre image
Junot vous fait visiter les quartiers dans lesquels nos agences vous accueillent, et vous présente les spécificités et bonnes adresses.
Parcourir les quartiers













