Faisons un tour d'horizon
Référence de l’annonce : 232COMDHA/2920MON
Dans une rue calme du quartier Villiers au sein d'un bel immeuble très bien tenu et gardianne, au quatrième étage avec ascenseur, charmant appartement familial et de réception de 129,5m² loi Carrez.
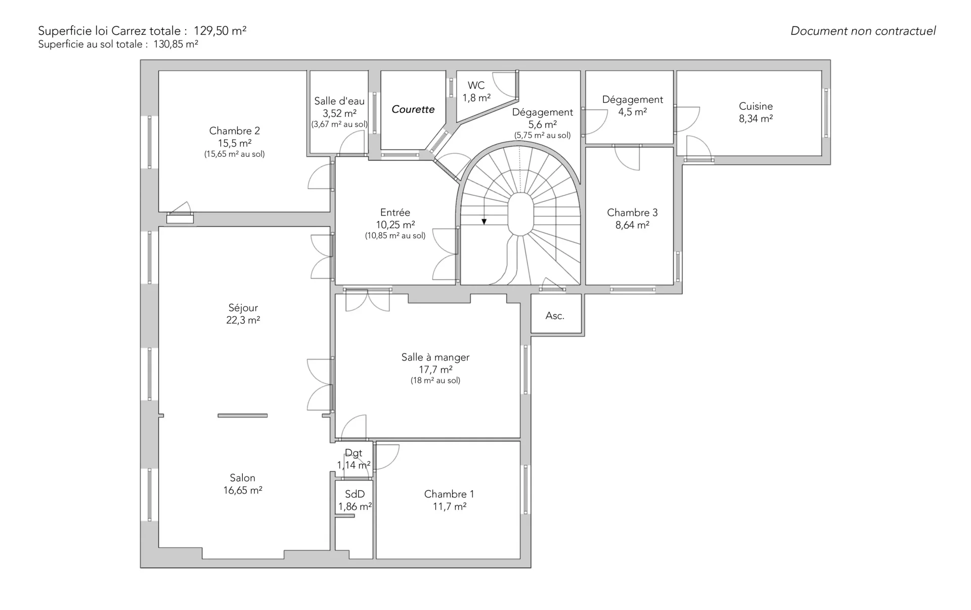
Composé de six pièces, il offre une entrée desservant un espace de réception généreux et lumineux, une cuisine indépendante, trois ou quatre chambres, une salle de bains, une salle de douche et des toilettes indépendantes.
L'appartement a conservé ses éléments d'origines, parquet, moulures et cheminées. Au calme absolu, plan modulable et vue dégagée.
Une cave complète ce bien.
- Habitable : 129,50 m² Total : 130,85 m²
- 5 pièces
- 3 chambres
- 2 salles de douche
- Étage 4/6
- Cheminée
- Exposition Nord-est
- À rafraîchir
Ce qui nous séduit
- Adresse très recherchée
- Gardien
- Lumineux
- Calme
- Ascenseur
- Cave
- Vue dégagée
On vous en dit plus
Réglementations & éléments financiers
Les informations sur les risques auxquels ce bien est exposé sont disponibles sur le site Géorisques : www.georisques.gouv.fr
| Diagnostics |
|---|
Consommation énergie finale : E - 252 kWh/m²/an.
Montant estimé des dépenses annuelles d’énergie pour un usage standard : entre 2 880,00 € et 3 940,00 € /an (abonnement compris).
Prix moyen des énergies indexées au 01/01/2023.
| Éléments financiers |
|---|
Taxe foncière : 2 900,00 € /an
Détails de l’intérieur & de l’extérieur
| Pièce | Surface | Détail |
|---|---|---|
| 1x Cave | Étage : Sous-sol | |
| 1x Entrée | 10.25 m² | Étage : 4ème |
| 1x Salle à manger | 17.7 m² | Étage : 4ème |
| 1x Dégagement | 1.14 m² | Étage : 4ème |
| 1x Chambre | 11.7 m² | Étage : 4ème |
| 1x Salle de douche | 1.86 m² | Étage : 4ème |
| 1x Séjour | 22.3 m² | Étage : 4ème |
| 1x Salon | 16.65 m² | Étage : 4ème |
| 1x Chambre | 15.5 m² | Étage : 4ème |
| 1x Salle de douche | 3.52 m² | Étage : 4ème |
| 1x Toilettes | 1.8 m² | Étage : 4ème |
| 1x Dégagement | 5.6 m² | Étage : 4ème |
| 1x Dégagement | 4.5 m² | Étage : 4ème |
| 1x Cuisine | 8.34 m² | Étage : 4ème |
| 1x Chambre | 8.64 m² | Étage : 4ème |
Prestations
Bâtiment & Copropriété
| Bâtiment |
|---|
-
Construit en : 1880
-
Type : Pierre de taille
-
Nombre d'étages : 6
-
Niveau de qualité : Standing
| Copropriété |
|---|
21 lots d'habitation
Montant moyen annuel de la quote part de charges courantes : 5 892 €
Procédure en cours : Non
Rencontrez votre agence
Simulateur de financement
Calculez le montant des mensualités de votre prêt immobilier correspondant à l'emprunt que vous souhaitez effectuer.
Prix du bien HAI
1 774 500 €
€
par mois
Vous devez vendre pour acheter ?
Nos consultants immobiliers se tiennent à votre disposition pour réaliser une estimation de la valeur de votre bien. Toutes nos estimations sont offertes.
Je fais estimer mon bienUn lieu de vie à votre image
Junot vous fait visiter les quartiers dans lesquels nos agences vous accueillent, et vous présente les spécificités et bonnes adresses.
Parcourir les quartiers










