Faisons un tour d'horizon
Référence de l’annonce : 2277NEUBAR
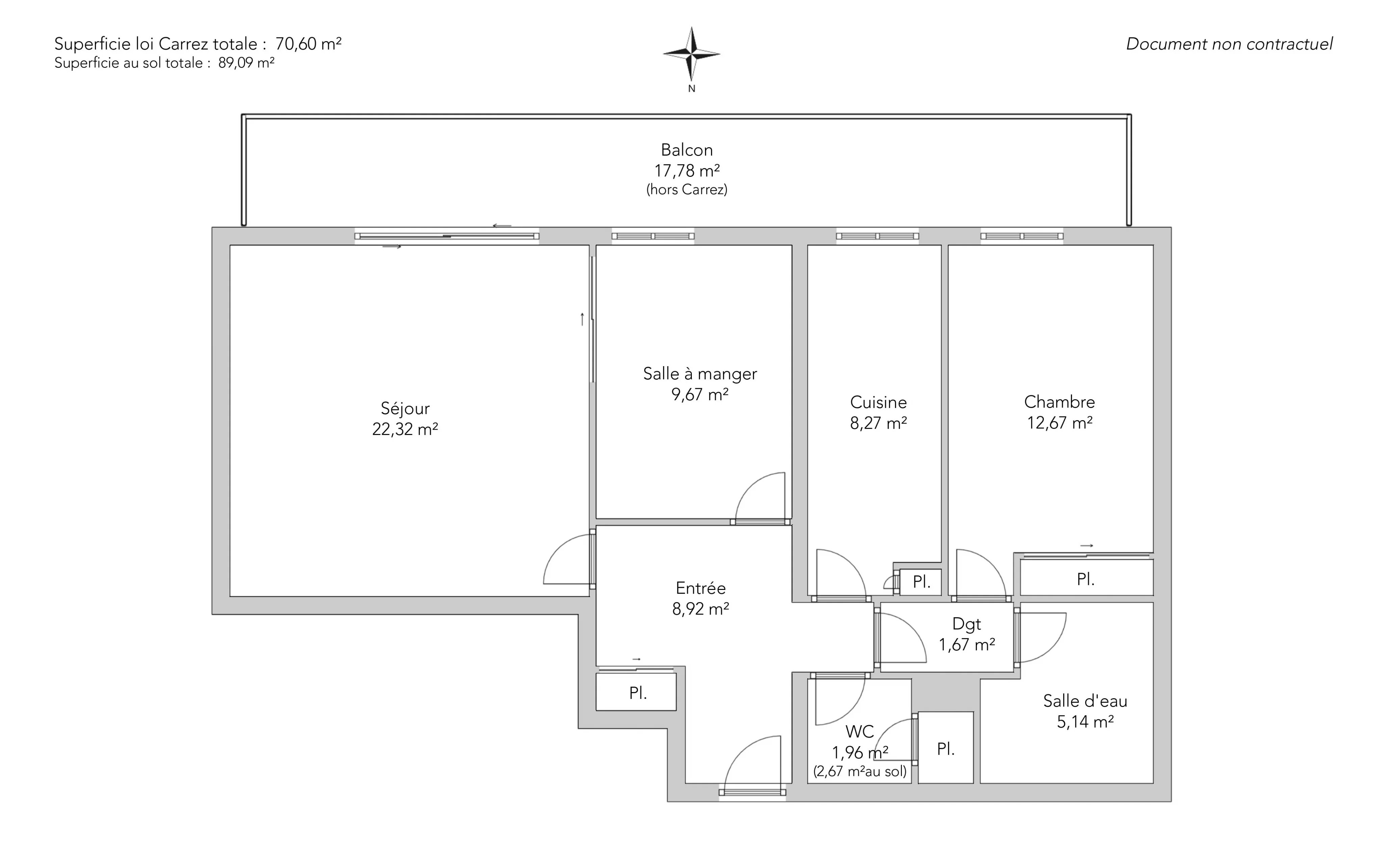
Situé au huitième et dernier étage d’un immeuble récent avec gardien, cet appartement de 70.6m² loi Carrez bénéficie d’un balcon filant de 18 m², plein sud, offrant une vue totalement dégagée sur la Tour Eiffel, la Fondation Louis Vuitton et La Défense.
L’appartement se compose d’une entrée, d’une cuisine séparée, d’un double séjour lumineux, d’une chambre, d’une salle de douche, ainsi que de nombreux rangements.
La configuration actuelle permet la création d’une seconde chambre.
Ce bien séduit par sa luminosité exceptionnelle, son ensoleillement optimal, son calme en hauteur et son très beau potentiel, offrant de multiples possibilités d’aménagement.
A proximité immédiate du métro, des commerces, des écoles et de toutes les commodités.
Une cave complète ce bien. Possibilité d'acquérir une place de parking.
- Habitable : 70,60 m²
- 3 pièces
- 2 chambres
- 1 salle de douche
- Étage 8/8
- Exposition Sud
- À rénover
Ce qui nous séduit
- Balcon/Terrasse
- Gardien
- Vue monument historique
- Lumineux
- Calme
- Ascenseur
- Vue dégagée
On vous en dit plus
Réglementations & éléments financiers
Les informations sur les risques auxquels ce bien est exposé sont disponibles sur le site Géorisques : www.georisques.gouv.fr
| Diagnostics |
|---|
Consommation énergie finale : D - 195 kWh/m²/an.
Logement à consommation énergétique excessive : classe F
Montant estimé des dépenses annuelles d’énergie pour un usage standard : entre 2 410,00 € et 3 270,00 € /an (abonnement compris).
Prix moyen des énergies indexées au 01/01/2021.
| Éléments financiers |
|---|
Détails de l’intérieur & de l’extérieur
| Pièce | Surface | Détail |
|---|---|---|
| 1x Entrée | 8.92 m² | |
| 1x Séjour | 22.32 m² | |
| 1x Salle à manger | 9.67 m² | |
| 1x Toilettes | 1.96 m² | |
| 1x Cuisine | 8.25 m² | |
| 1x Dégagement | 1.67 m² | |
| 1x Salle de douche | 5.14 m² | |
| 1x Chambre | 12.67 m² | |
| 1x Chambre | 18 m² | |
| 1x Balcon |
Prestations
Bâtiment & Copropriété
| Bâtiment |
|---|
-
Construit en : 1975
-
Nombre d'étages : 8
| Copropriété |
|---|
Montant moyen annuel de la quote part de charges courantes : 4 800 €
Procédure en cours : Non
Rencontrez votre agence
Simulateur de financement
Calculez le montant des mensualités de votre prêt immobilier correspondant à l'emprunt que vous souhaitez effectuer.
Prix du bien HAI
840 000 €
€
par mois
Vous devez vendre pour acheter ?
Nos consultants immobiliers se tiennent à votre disposition pour réaliser une estimation de la valeur de votre bien. Toutes nos estimations sont offertes.
Je fais estimer mon bienUn lieu de vie à votre image
Junot vous fait visiter les quartiers dans lesquels nos agences vous accueillent, et vous présente les spécificités et bonnes adresses.
Parcourir les quartiers











