Faisons un tour d'horizon
Référence de l’annonce : 1117POIBON
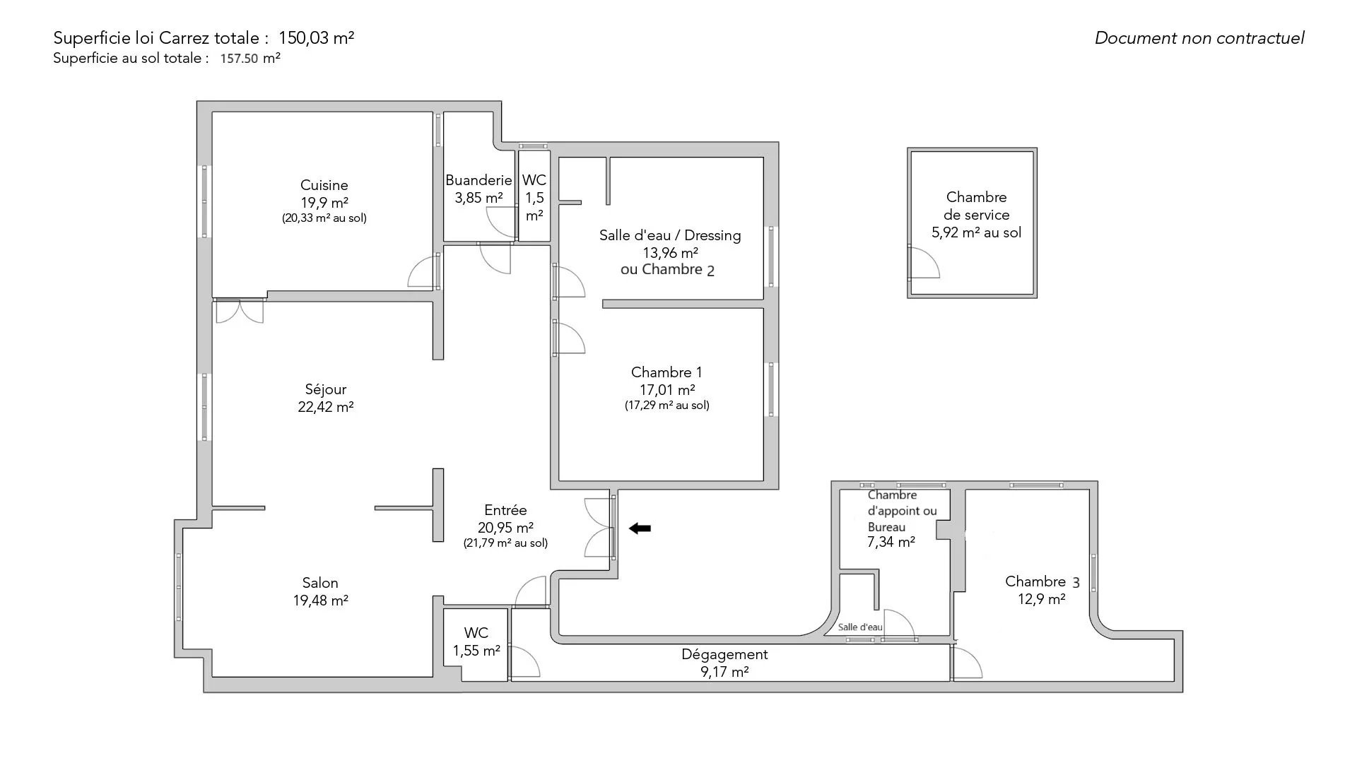
À la lisière du 9ᵉ arrondissement, dans une rue calme et recherchée du 10ᵉ, au sein d’un bel immeuble en pierre de taille avec ascenseur, seul sur le palier, superbe appartement traversant de 150,03m² loi Carrez (157,50m² au sol). Situé au troisième étage, il a été entièrement rénové par architecte avec des matériaux de grande qualité.
Il s’ouvre sur une somptueuse réception de 63m², aux volumes remarquables avec 3m de hauteur sous plafond, sublimée par parquets, moulures et cheminées.
Une cuisine dînatoire parfaitement équipée, une buanderie ainsi que des toilettes invitées complètent cette partie de réception.
L’espace nuit, donnant exclusivement sur cour, comprend une suite parentale au calme avec cheminée, un dressing attenant avec salle de douche (pouvant être aménagé en seconde chambre), une troisième chambre disposant également de son dressing et de sa salle de douche ainsi qu’un bureau pouvant faire office de chambre d’appoint.
Des toilettes indépendantes vient compléter l’ensemble.
En annexes, une chambre de service, une cave double ainsi qu’un espace de stationnement vélo.
- Habitable : 157,50 m²
- 6 pièces
- 4 chambres
- Étage 3/6
- Cheminée
- Exposition Nord, Sud
- Excellent état
Ce qui nous séduit
- Prestations exceptionnelles
- Calme
- Traversant
- Ascenseur
- Cave
On vous en dit plus
Réglementations & éléments financiers
Les informations sur les risques auxquels ce bien est exposé sont disponibles sur le site Géorisques : www.georisques.gouv.fr
| Diagnostics |
|---|
Consommation énergie finale : C - 167 kWh/m²/an.
Prix moyen des énergies indexées au 01/01/2021.
| Éléments financiers |
|---|
Taxe foncière : 1 962,00 € /an
Détails de l’intérieur & de l’extérieur
| Pièce | Surface | Détail |
|---|---|---|
| 2x Cave |
Étage : Sous-sol Revêtement : Terre battue |
|
| 1x Toilettes | 1.5 m² |
Étage : 3ème Revêtement : Parquet Plafond : 3m |
| 1x Toilettes | 1.55 m² |
Étage : 3ème Revêtement : Parquet Plafond : 3m |
| 1x Entrée | 20.95 m² |
Étage : 3ème Revêtement : Parquet Plafond : 3m |
| 1x Séjour | 22.42 m² |
Étage : 3ème Revêtement : Parquet Plafond : 3m |
| 1x Salon | 19.48 m² |
Étage : 3ème Revêtement : Parquet Plafond : 3m |
| 1x Cuisine équipée | 19.9 m² |
Étage : 3ème Revêtement : Parquet Plafond : 3m |
| 1x Buanderie | 3.85 m² |
Étage : 3ème Revêtement : Parquet Plafond : 3m |
| 1x Chambre | 17.01 m² |
Étage : 3ème Revêtement : Parquet Plafond : 3m |
| 1x Dressing | 13.96 m² |
Étage : 3ème Revêtement : Parquet Plafond : 3m |
| 1x Chambre | 7.34 m² |
Étage : 3ème Revêtement : Parquet Plafond : 3m |
| 2x Chambre | 12.9 m² |
Étage : 3ème Revêtement : Parquet Plafond : 3m |
| 1x Dégagement | 9.17 m² |
Étage : 3ème Revêtement : Parquet Plafond : 3m |
| 1x Autre | 1.55 m² |
Étage : 3ème Plafond : 3m |
| 1x Chambre de service | 5.92 m² |
Étage : 6ème Revêtement : Parquet Plafond : 3m |
Prestations
Bâtiment & Copropriété
| Bâtiment |
|---|
-
Construit en : 1890
-
Type : Pierre de taille
-
Nombre d'étages : 6
-
Niveau de qualité : Standing
| Copropriété |
|---|
27 lots d'habitation
Montant moyen annuel de la quote part de charges courantes : 3 660 €
Procédure en cours : Non
Rencontrez votre agence
Simulateur de financement
Calculez le montant des mensualités de votre prêt immobilier correspondant à l'emprunt que vous souhaitez effectuer.
Prix du bien HAI
1 790 000 €
€
par mois
Vous devez vendre pour acheter ?
Nos consultants immobiliers se tiennent à votre disposition pour réaliser une estimation de la valeur de votre bien. Toutes nos estimations sont offertes.
Je fais estimer mon bienUn lieu de vie à votre image
Junot vous fait visiter les quartiers dans lesquels nos agences vous accueillent, et vous présente les spécificités et bonnes adresses.
Parcourir les quartiers











