Faisons un tour d'horizon
Référence de l’annonce : 3549MARGON
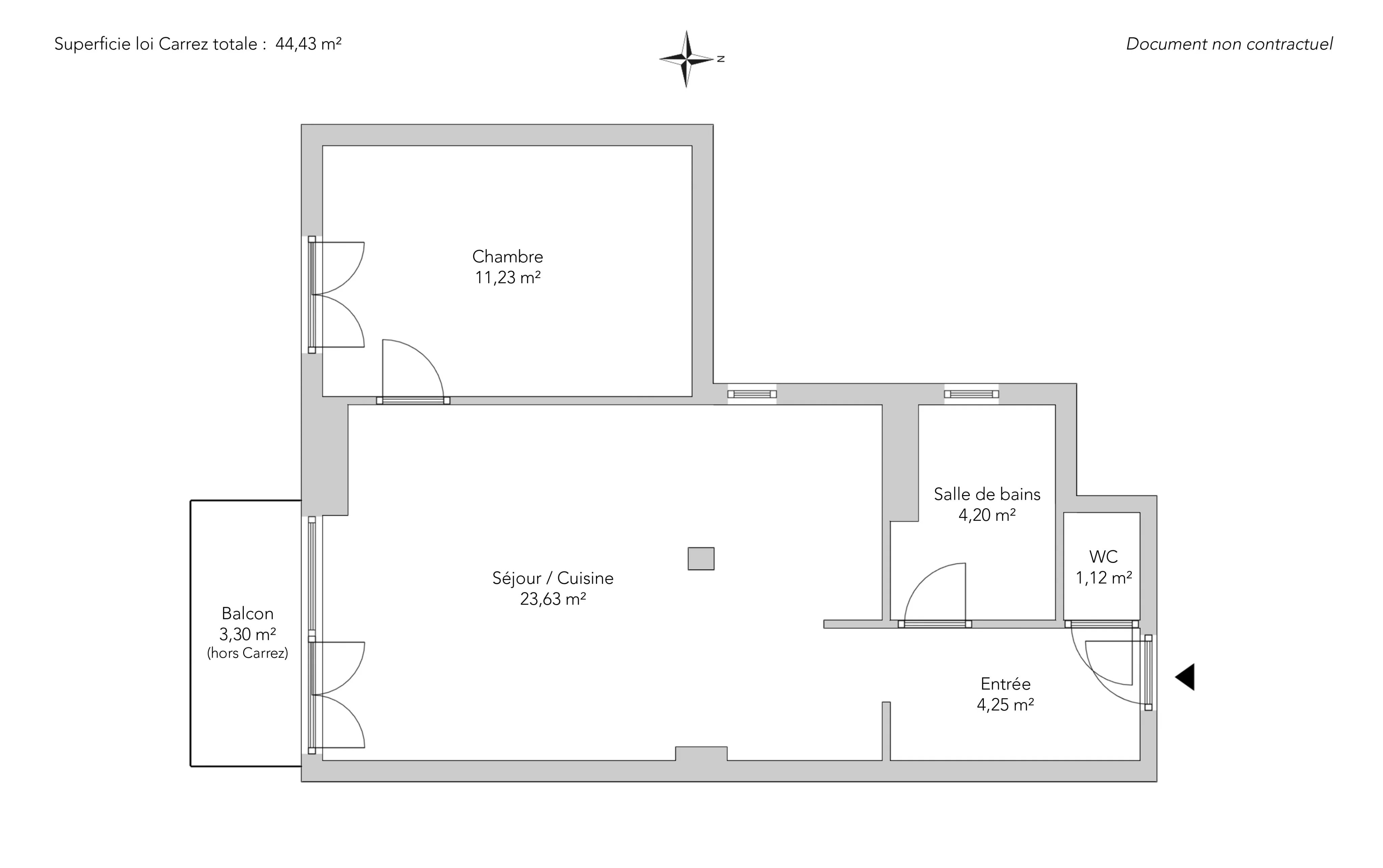
Au calme de la rue de la Tour d'Auvergne et à deux pas de la rue des Martyrs, au sein d'un immeuble récent, bel appartement de 44,43m² loi Carrez situé au premier étage par ascenseur.
Son plan compact comprend : une entrée, un séjour avec cuisine ouverte aménagée et ouvrant sur un balcon terrasse de 3,30m², une chambre, une salle de bains et des toilettes séparées. Au sous-sol, une cave complète ce bien.
L'appartement profite d'une exposition plein sud et de grand calme. Il saura séduire par sa localisation recherchée et ses beaux volumes.
EXCLUSIVITÉ
- Habitable : 44,43 m² Total : 47,73 m²
- 2 pièces
- 1 chambre
- 1 salle de bains
- Étage 1/9
- Exposition Sud
- Bon état
Ce qui nous séduit
- Balcon/Terrasse
- Adresse très recherchée
- Lumineux
- Ascenseur
- Cave
On vous en dit plus
Réglementations & éléments financiers
Les informations sur les risques auxquels ce bien est exposé sont disponibles sur le site Géorisques : www.georisques.gouv.fr
| Diagnostics |
|---|
Consommation énergie finale : D - 226.3 kWh/m²/an.
Montant estimé des dépenses annuelles d’énergie pour un usage standard : entre 850,00 € et 1 170,00 € /an (abonnement compris).
Prix moyen des énergies indexées au 01/01/2023.
| Éléments financiers |
|---|
Taxe foncière : 1 035,00 € /an
Détails de l’intérieur & de l’extérieur
| Pièce | Surface | Détail |
|---|---|---|
| 1x Cave | ||
| 1x Entrée | 4.25 m² |
Étage : 1er Revêtement : Parquet |
| 1x Séjour/cuisine | 23.63 m² |
Étage : 1er Revêtement : Parquet |
| 1x Terrasse | 3.3 m² |
Étage : 1er Revêtement : Béton |
| 1x Chambre | 11.23 m² |
Étage : 1er Revêtement : Parquet |
| 1x Salle de bains | 4.2 m² |
Étage : 1er Revêtement : Carrelage |
| 1x Toilettes | 1.12 m² |
Étage : 1er Revêtement : Parquet |
Prestations
Bâtiment & Copropriété
| Bâtiment |
|---|
-
Construit en : 1976
-
Type : Béton
-
Nombre d'étages : 9
-
Niveau de qualité : Normal
| Copropriété |
|---|
Montant moyen annuel de la quote part de charges courantes : 2 484 €
Procédure en cours : Non
Rencontrez votre agence
Simulateur de financement
Calculez le montant des mensualités de votre prêt immobilier correspondant à l'emprunt que vous souhaitez effectuer.
Prix du bien HAI
530 000 €
€
par mois
Vous devez vendre pour acheter ?
Nos consultants immobiliers se tiennent à votre disposition pour réaliser une estimation de la valeur de votre bien. Toutes nos estimations sont offertes.
Je fais estimer mon bienUn lieu de vie à votre image
Junot vous fait visiter les quartiers dans lesquels nos agences vous accueillent, et vous présente les spécificités et bonnes adresses.
Parcourir les quartiers











