Faisons un tour d'horizon
Référence de l’annonce : 1172POIFAS/2969MON
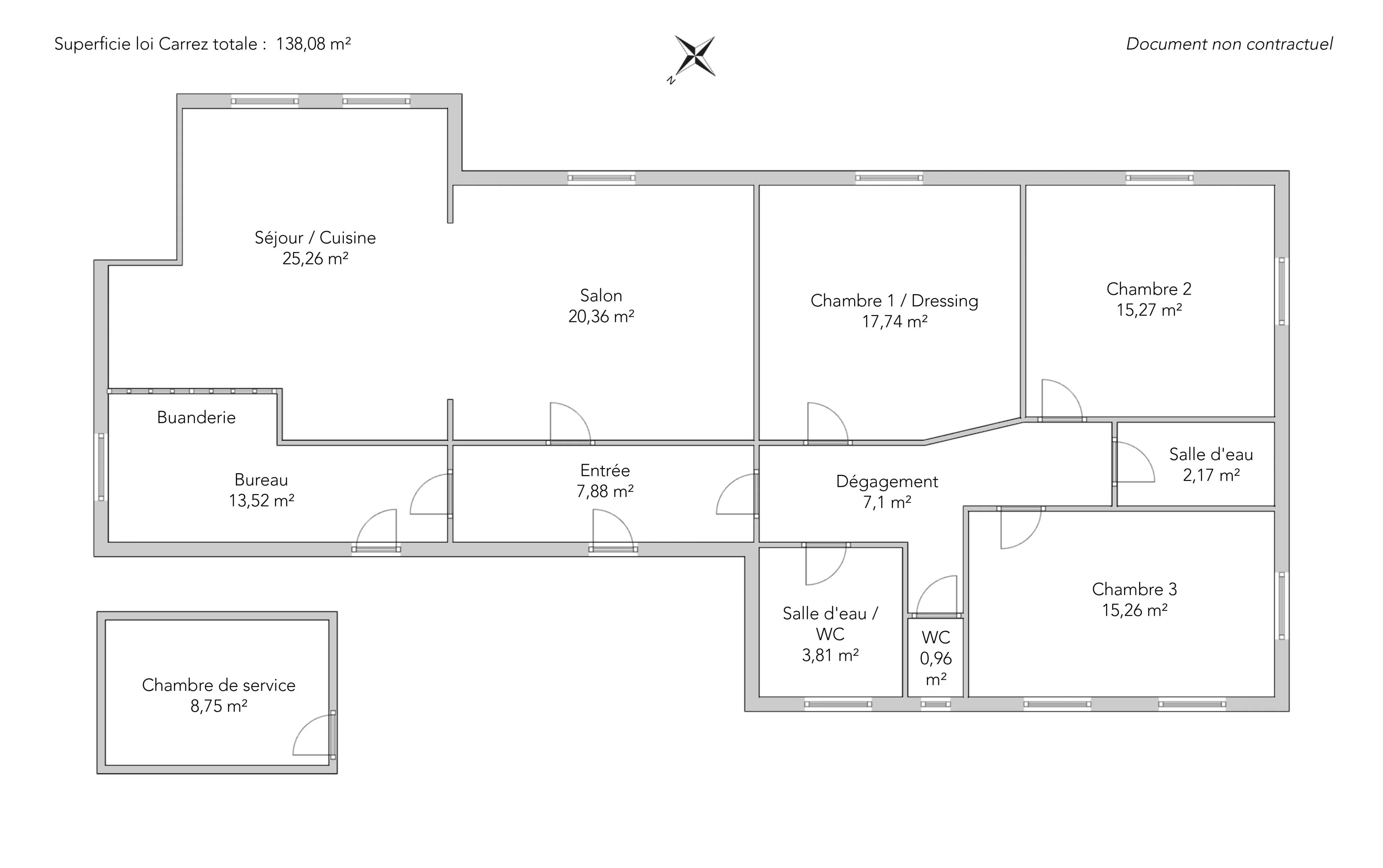
Dans le quartier recherché de la rue de Tocqueville, au cœur du 17e arrondissement de Paris, appartement familial de 138,08m² loi Carrez situé au quatrième étage avec ascenseur d’un bel immeuble de 1923 avec gardien.
En parfait état, il comporte une entrée, ne réception de plus de 45m² avec séjour, salle à manger et cuisine ouverte, trois chambres (dont une avec dressing), une salle de douche avec toilettes, une seconde salle de douche, des toilettes séparées ainsi qu’un grand bureau avec buanderie.
Au calme absolu, ce bien avec une belle hauteur sous plafond a bénéficié d'une jolie rénovation et a conservé le charme de l’ancien: parquet, moulures et cheminée).
Une chambre de service et une cave complètent cette offre.
- Habitable : 138,08 m² Total : 146,72 m²
- 5 pièces
- 3 chambres
- 2 salles de douche
- Étage 4/8
- Exposition Sud-est, Nord-ouest
- Bon état
Ce qui nous séduit
- Gardien
- Calme
- Traversant
- Ascenseur
- Cave
On vous en dit plus
Réglementations & éléments financiers
Les informations sur les risques auxquels ce bien est exposé sont disponibles sur le site Géorisques : www.georisques.gouv.fr
| Diagnostics |
|---|
Consommation énergie finale : D - 222 kWh/m²/an.
Montant estimé des dépenses annuelles d’énergie pour un usage standard : entre 2 340,00 € et 3 180,00 € /an (abonnement compris).
Prix moyen des énergies indexées au 01/01/2021.
| Éléments financiers |
|---|
Taxe foncière : 2 741,00 € /an
Détails de l’intérieur & de l’extérieur
| Pièce | Surface | Détail |
|---|---|---|
| 1x Entrée | 7.88 m² | |
| 1x Bureau | 13.52 m² | |
| 1x Séjour | 20.36 m² | |
| 1x Salle à manger/Cuisine | 25.26 m² | |
| 1x Chambre | 17.74 m² | |
| 1x Chambre | 15.27 m² | |
| 1x Chambre | 15.26 m² | |
| 1x Salle de douche / toilettes | 3.81 m² | |
| 1x Salle de douche | 2.17 m² | |
| 1x Toilettes | 9.6 m² | |
| 1x Dégagement | 7.1 m² | |
| 1x Cave | ||
| 1x Chambre de service | 8.75 m² | Étage : 7ème |
Prestations
Bâtiment & Copropriété
| Bâtiment |
|---|
-
Construit en : 1913
-
Nombre d'étages : 8
| Copropriété |
|---|
22 lots d'habitation
Montant moyen annuel de la quote part de charges courantes : 5 316 €
Procédure en cours : Non
Rencontrez votre agence
Simulateur de financement
Calculez le montant des mensualités de votre prêt immobilier correspondant à l'emprunt que vous souhaitez effectuer.
Prix du bien HAI
1 790 000 €
€
par mois
Vous devez vendre pour acheter ?
Nos consultants immobiliers se tiennent à votre disposition pour réaliser une estimation de la valeur de votre bien. Toutes nos estimations sont offertes.
Je fais estimer mon bienUn lieu de vie à votre image
Junot vous fait visiter les quartiers dans lesquels nos agences vous accueillent, et vous présente les spécificités et bonnes adresses.
Parcourir les quartiers










