Faisons un tour d'horizon
Référence de l’annonce : 5846JUNVAG
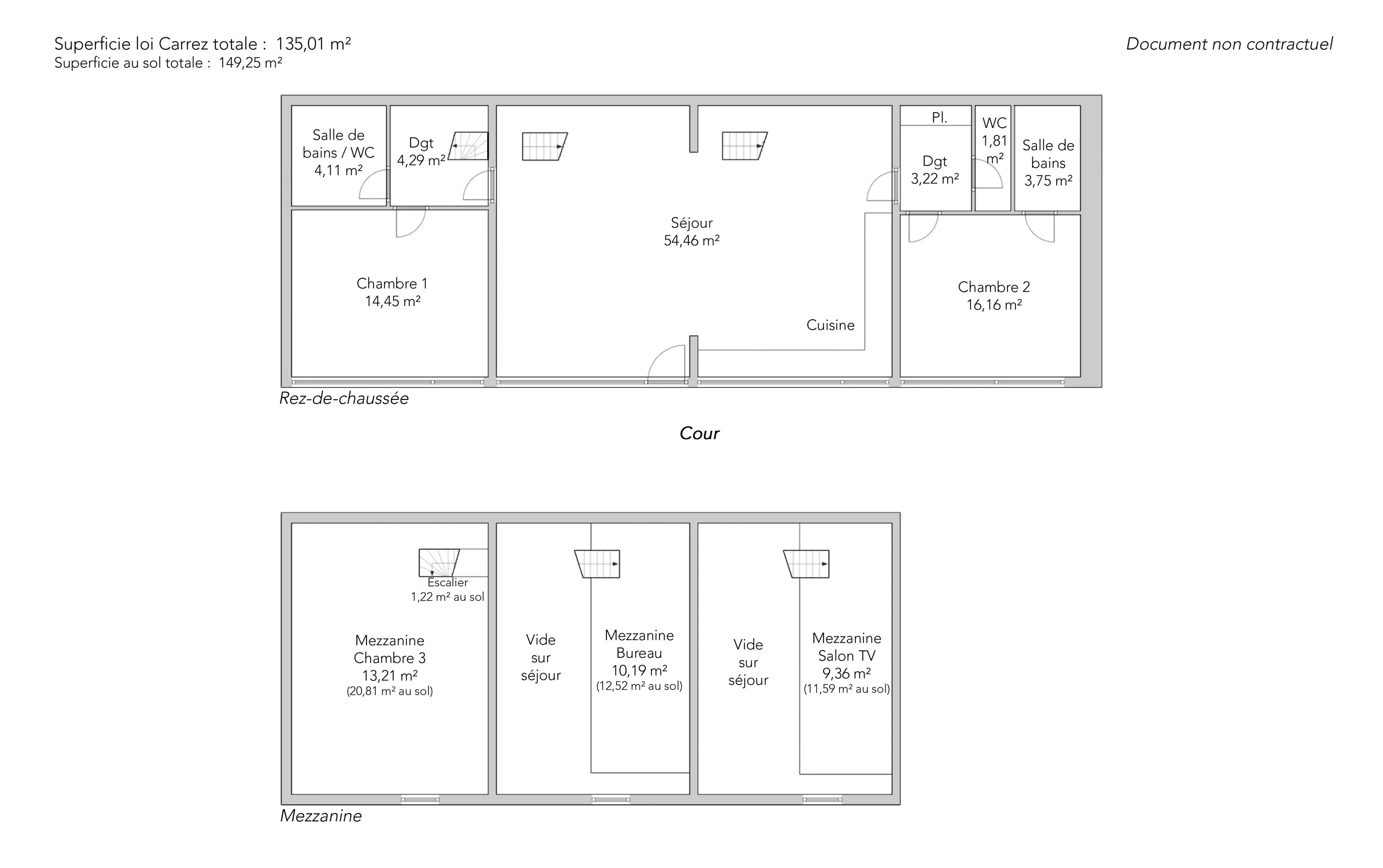
Situé au fond d'une allée verdoyante, dans un cadre de vie unique et préservé, cet ancien atelier de sculpteur de 149,25m² habitables (135,01m² loi Carrez) à destination commerciale et à usage d'habitation, conçu comme une maison séduit par son caractère et son atmosphère confidentielle.
Dès l'entrée, la pièce de vie séduit immédiatement par son incroyable volume et sa luminosité remarquable sublimée par de larges verrières esprit atelier.
L'espace s'organise harmonieusement avec sa cuisine ouverte. Ce niveau accueille deux chambres avec salles de bains et toilettes pour chacune d'entre elles. A l'étage, l'espace nuit offre une chambre et deux mezzanines faisant office de bureau et de salon télé. Nombreux placards intégrés.
En option possibilité d'acquérir un local à usage de bureaux d'une superficie de 46m² loi Carrez.
A l'extérieur, la cour arborée de la copropriété prolonge la sensation de maison, un havre discret au calme absolu à deux pas des commerces, des écoles et transports.
- Habitable : 135,01 m² Total : 149,25 m²
- 6 pièces
- 3 chambres
- 2 salles de bains
- Exposition Sud-est
- Excellent état
Ce qui nous séduit
- Prestations exceptionnelles
- Dernier étage
- Lumineux
- Calme
- Traversant
On vous en dit plus
Réglementations & éléments financiers
Les informations sur les risques auxquels ce bien est exposé sont disponibles sur le site Géorisques : www.georisques.gouv.fr
| Diagnostics |
|---|
Consommation énergie finale : G - 26168 kWh/m²/an.
| Éléments financiers |
|---|
Taxe foncière : 2 894,00 € /an
Détails de l’intérieur & de l’extérieur
| Pièce | Surface | Détail |
|---|---|---|
| 1x Escalier | ||
| 1x Séjour/cuisine | 54.46 m² |
Étage : Rez-de-chaussée Exposition : Est Revêtement : Béton |
| 1x Chambre | 14.45 m² |
Étage : Rez-de-chaussée Exposition : Est Revêtement : Coco |
| 1x Salle de bains / toilettes | 4.11 m² |
Étage : Rez-de-chaussée Revêtement : Pierre |
| 1x Dégagement | 4.29 m² |
Étage : Rez-de-chaussée Revêtement : Béton |
| 1x Dégagement | 3.22 m² |
Étage : Rez-de-chaussée Revêtement : Béton |
| 1x Toilettes | 1.81 m² | Étage : Rez-de-chaussée |
| 1x Chambre | 16.16 m² |
Étage : Rez-de-chaussée Exposition : Est Revêtement : Béton |
| 1x Salle de bains / toilettes | 3.75 m² |
Étage : Rez-de-chaussée Revêtement : Carrelage |
| 1x Escalier | Étage : Rez-de-chaussée | |
| 1x Escalier | Étage : Rez-de-chaussée | |
| 1x Débarras | Étage : Rez-de-chaussée | |
| 1x Mezzanine | 9.36 m² |
Étage : 1er Revêtement : Coco |
| 1x Mezzanine | 10.19 m² |
Étage : 1er Revêtement : Coco |
| 1x Chambre | 13.21 m² |
Étage : 1er Exposition : Sud-est Revêtement : Coco |
Prestations
Bâtiment & Copropriété
| Bâtiment |
|---|
-
Construit en : 1880
-
Type : Bois, Brique
-
Nombre d'étages : 1
-
Niveau de qualité : Standing
| Copropriété |
|---|
Montant moyen annuel de la quote part de charges courantes : 3 752 €
Procédure en cours : Non
Rencontrez votre agence
Simulateur de financement
Calculez le montant des mensualités de votre prêt immobilier correspondant à l'emprunt que vous souhaitez effectuer.
Prix du bien HAI
1 850 000 €
€
par mois
Vous devez vendre pour acheter ?
Nos consultants immobiliers se tiennent à votre disposition pour réaliser une estimation de la valeur de votre bien. Toutes nos estimations sont offertes.
Je fais estimer mon bienUn lieu de vie à votre image
Junot vous fait visiter les quartiers dans lesquels nos agences vous accueillent, et vous présente les spécificités et bonnes adresses.
Parcourir les quartiers












