Faisons un tour d'horizon
Référence de l’annonce : 5875JASVAN
A proximité des établissements scolaires renommés et des commerces, à proximité du Bois de Boulogne, découvrez ce bel appartement traversant de 110 m² situé dans résidence de grand standing entièrement sécurisée, avec service de gardiennage et d’intervention 24h/24 ainsi qu’un ascenseur. Cet appartement disposant d’une belle hauteur sous plafond se compose d’un vaste salon / salle à manger, d’une chambre parentale avec sa salle de bain attenante, de deux autres chambres dont l’une avec salle de douche, d’une cuisine américaine, de grands placards de rangements dans les chambres, l’entrée et la cuisine. Orienté sud, il séduit par une belle luminosité grâce à de grandes baies vitrées ouvrant sur un balcon filant, donnant sur un jardin de verdure.
Au calme absolu, sans aucun vis-à-vis, cet appartement ne nécessite aucuns travaux, et se présente en très bon état, idéal pour une famille visant le confort, l’élégance et la fonctionnalité.
Une cave complète ce bien.
Il est possible d'acquérir une studette équipée et meublée au rez-de-chaussée de 13m² ainsi qu'un box fermé en supplément.
.
EXCLUSIVITÉ
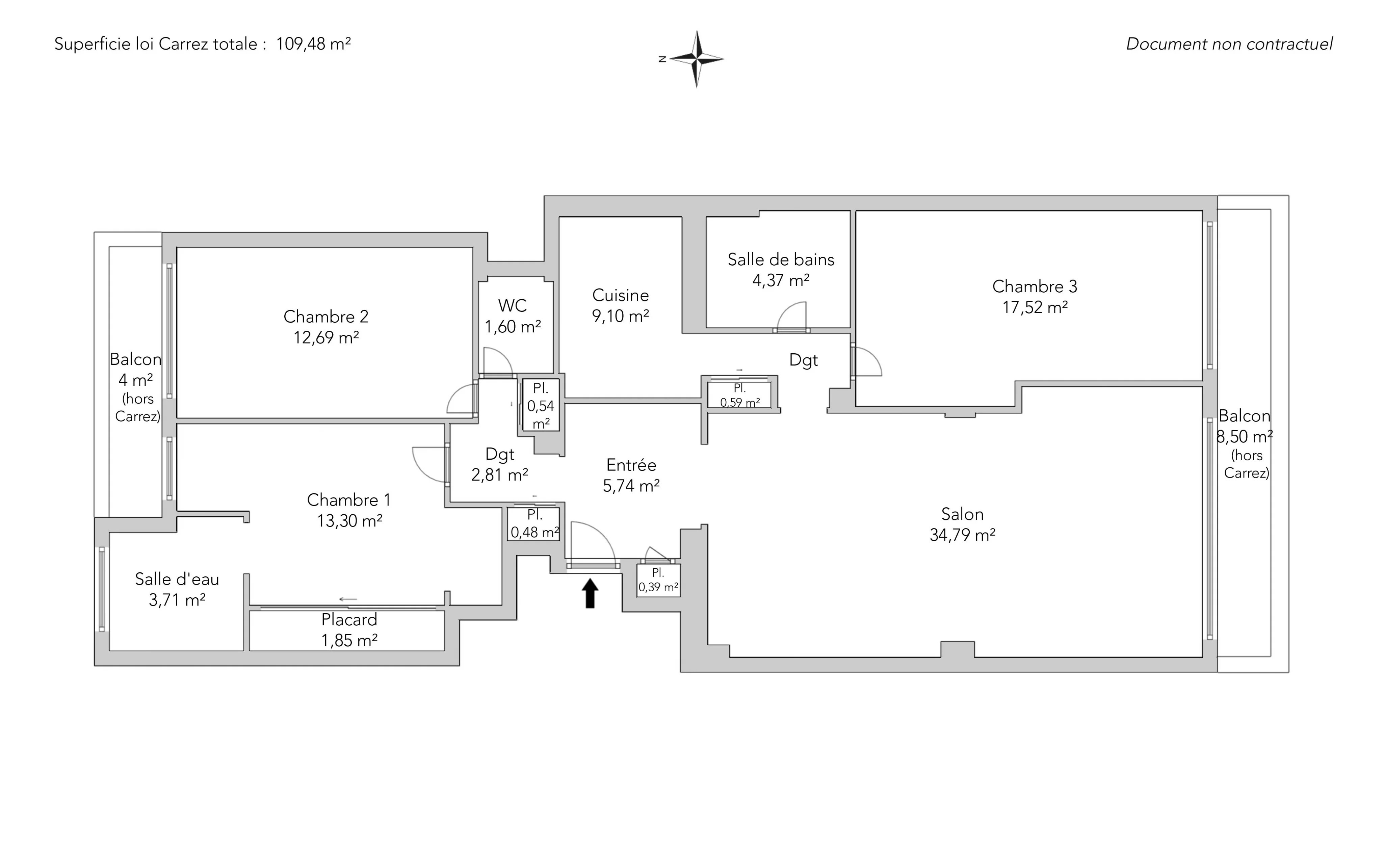
- Habitable : 109,48 m²
- 5 pièces
- 3 chambres
- 1 salle de bains
- 1 salle de douche
- Étage 6/9
- Exposition Sud
- Bon état
Ce qui nous séduit
- Balcon/Terrasse
- Gardien
- Lumineux
- Ascenseur
- Cave
On vous en dit plus
Réglementations & éléments financiers
Les informations sur les risques auxquels ce bien est exposé sont disponibles sur le site Géorisques : www.georisques.gouv.fr
| Diagnostics |
|---|
Consommation énergie finale : a - 111 kWh/m²/an.
Montant estimé des dépenses annuelles d’énergie pour un usage standard : entre 990,00 € et 1 350,00 € /an (abonnement compris).
Prix moyen des énergies indexées au 01/01/2021.
| Éléments financiers |
|---|
Détails de l’intérieur & de l’extérieur
| Pièce | Surface | Détail |
|---|---|---|
| 1x Box | Étage : -1 | |
| 1x Chambre de service | Étage : -1 | |
| 1x Cave | Étage : -2 | |
| 1x Balcon | Étage : 6ème | |
| 1x Balcon | Étage : 6ème | |
| 1x Entrée | 5.74 m² | Étage : 6ème |
| 1x Séjour | 34.79 m² |
Étage : 6ème Exposition : Sud |
| 1x Cuisine américaine | 9.1 m² | Étage : 6ème |
| 1x Chambre | 17.52 m² | Étage : 6ème |
| 1x Chambre | 13.3 m² | Étage : 6ème |
| 1x Chambre | 12.69 m² | Étage : 6ème |
| 1x Salle de bains | 4.37 m² | Étage : 6ème |
| 1x Salle de douche | 3.71 m² | Étage : 6ème |
| 1x Toilettes | 1.6 m² | Étage : 6ème |
| 1x Dégagement | 2.81 m² | Étage : 6ème |
| 1x Placard | 0.39 m² | Étage : 6ème |
| 1x Placard | 0.54 m² | Étage : 6ème |
| 1x Placard | 0.48 m² | Étage : 6ème |
| 1x Placard | 1.85 m² | Étage : 6ème |
| 1x Placard | 0.59 m² | Étage : 6ème |
Prestations
Bâtiment & Copropriété
| Bâtiment |
|---|
-
Construit en : 1957
-
Nombre d'étages : 9
| Copropriété |
|---|
46 lots d'habitation
Montant moyen annuel de la quote part de charges courantes : 12 000 €
Procédure en cours : Non
Rencontrez votre agence
Simulateur de financement
Calculez le montant des mensualités de votre prêt immobilier correspondant à l'emprunt que vous souhaitez effectuer.
Prix du bien HAI
1 360 000 €
€
par mois
Vous devez vendre pour acheter ?
Nos consultants immobiliers se tiennent à votre disposition pour réaliser une estimation de la valeur de votre bien. Toutes nos estimations sont offertes.
Je fais estimer mon bienUn lieu de vie à votre image
Junot vous fait visiter les quartiers dans lesquels nos agences vous accueillent, et vous présente les spécificités et bonnes adresses.
Parcourir les quartiers












